Ulubione projekty

Twoja lista jest pusta

Dodano projekt

Usunięto projekt

W roli głównej - dom Tiago G1 (wersja A)!


Nowoczesny design i funkcjonalne wnętrze!

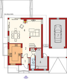
Dom Tiago G1 (wersja A) imponuje swoim atrakcyjnym wyglądem zewnętrznym – będzie wyglądał znakomicie w każdym otoczeniu – zarówno na miejskim osiedlu domów jednorodzinnych, jak i poza miastem. Lekkości całej konstrukcji nadają duże przeszklenia od strony ogrodu, a wpadające promienie słoneczne doświetlą wnętrza strefy dziennej. 

  arch. Anna Prokopowicz, Pracownia Projektowa ARCHIPELAG


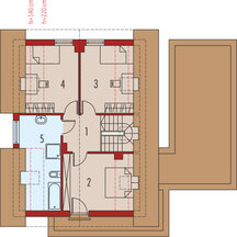
Układ funkcjonalny:


Strefa dzienna: pokój dzienny z jadalnią, kuchnia, łazienka oraz watrołap prowadzący do holu. 


Strefa nocna: trzy sypialnie, przestronna wspólna łazienka.


+ dodatkowo:

kotłownia

garaż


Dom dla:

3-4 osobowej rodziny


Opis:

Dom Tiago G1 (wersja A) imponuje swoim atrakcyjnym wyglądem zewnętrznym. Interesująca bryła budynku z ciekawie zaakcentowaną strefą wejściową harmonijnie łączy się z ascetyczną bielą tynku, tworząc elegancką kompozycję całości. Elewację ogrodową wzbogacono okładziną drewnianą, która podkreśla przytulny charakter rekreacyjnej strefy tarasu. Charakterystycznym elementem architektury budynku jest zadaszony łącznik, który w oryginalny sposób integruje dom z garażem. We wnętrzu czeka na domowników przestronny układ pomieszczeń z czytelnym podziałem stref. Tiago G1 (wersja A) spełni oczekiwania rodziny, która ceni nowoczesne połączenia i wygodne rozwiązania funkcjonalne.


Atuty projektu okiem architekta:


  • Prosta i nowoczesna bryła budynku
  • Ekonomiczny w realizacji dach dwuspadowy
  • Duże przeszklenia
  • Wyraźne rozdzielenie stref budynku – dziennej, nocnej i gospodarczej
  • Przestronny salon z kominkiem
  • Nowoczesne wykończenie elewacji
  • Atrakcyjny taras
  • Zadaszony łącznik między budynkiem a garażem 
  • Możliwość podpiwniczenia budynku
  • Możliwość zbliźniaczenia


Dom Tiago G1 (wersja A) dostępny jest także w wersjach:

- Tiago – wersja bez garażu

- Tiago (wersja B) – z innym wykończeniem elewacji, bez garażu, z garażem jedno lub dwustanowiskowym

- Tiago G2 – wersja z garażem dwustanowiskowym


W celu uzyskania szczegółowych informacji o projekcie zapraszamy do kontaktu z architektem dyżurnym Pracowni Projektowej ARCHIPELAG:


Tel.: 71 798 38 52

e-mail: architekt@archipelag.pl


Bezpłatna pomoc architekta

Wypełnij formularz, skontaktujemy się z Tobą.

Zamawiając usługi forum i dzienników budowy, przyjmujesz do wiadomości i wyrażasz zgodę na świadczenie tych usług i przetwarzanie przez Usługodawcę, którym jest Pracownia Projektowa ARCHIPELAG A. Wójciak, R. Wójciak Sp. J., jako Administratora danych, podanych w formularzu danych osobowych, na zasadach wskazanych w Regulaminie i Polityce Prywatności serwisu ARCHIPELAG.pl.

Jeśli chcesz także otrzymywać bonusy i informacje dotyczące akcji promocyjnych naszych i naszych Partnerów, wyraź zgodę dodatkową i zaznacz odpowiednie pole. Wyrażam zgodę na przetwarzanie moich danych osobowych przez administratora, którym jest Pracownia Projektowa ARCHIPELAG A. Wójciak, R. Wójciak Sp. J. z siedzibą: ul. M. Smoluchowskiego 56/3, 50-372 Wrocław, nr KRS 0000123673, NIP: 897-16-05-744, REGON: 931987209:

Na podstawie art. 13 Rozporządzenia Parlamentu Europejskiego i Rady (UE) 2016/679 z dnia 27 kwietnia 2016 r. w sprawie ochrony osób fizycznych w związku z przetwarzaniem danych osobowych i w sprawie swobodnego przepływu takich danych oraz uchylenia dyrektywy 95/46/WE (RODO) informujemy Cię, że (przeczytaj klauzulę informacyjną):

czytaj całość ›
Pola oznaczone gwiazdką (*) są obowiązkowe do wypełnienia