Ulubione projekty

Twoja lista jest pusta

Dodano projekt

Usunięto projekt

W roli głównej - dom Basia G1!

Basia jest przykładem wyjątkowo pięknego domu z użytkowym poddaszem, który może pełnić funkcję zarówno domu całorocznego, jak i letniskowego. 

Projekt Basia jest jednym z niewielkich, kompaktowych domów, które stanowią znakomitą alternatywę dla mieszkań w mieście. Dzięki charakterystycznie zaprojektowanym kominom pokrytym efektowną okładziną kamienną ten urokliwy dom w każdym otoczeniu będzie zauważalny.

arch. Wojciech Szczepański, Pracownia Projektowa ARCHIPELAG


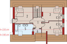
Układ funkcjonalny:


Strefa dzienna: przestronny salon z kominkiem, jadalnia, kuchnia, toaleta

Strefa nocna: trzy sypialnie, łazienka


+ dodatkowo: spiżarnia, garderoba, kotłownia, schowek, garaż



Dom dla: 3-4-osobowej rodziny


Opis:

Basia spełnia wszystkie warunki, aby 3-4-osobowa rodzina czuła się w nim doskonale. Na parterze znajduje się strefa dzienna z ciekawie zaprojektowanym przejściem na taras, na którym zaplanowano zewnętrzny kominek. Ażurowe, nieobudowane schody wewnętrzne na parterze dają wrażenie większej przestrzeni w pokoju dziennym. W strefie dziennej wydzielono również miejsce na spiżarnię, kotłownię i niedużą łazienkę dla gości. W strefie nocnej znajdziemy trzy wygodne sypialnie, łazienkę oraz przydatny schowek. Elewacje tego domu utrzymane są w ciepłych, przyjaznych kolorach. 


Atuty projektu okiem architekta:

  • Na niewielkiej powierzchni przemyślnie rozplanowane funkcje pomieszczeń
  • Wyraźne oddzielenie strefy nocnej od dziennej
  • Wygodny, jasny pokój dzienny 
  • Mała łazienka na parterze
  • Trzy wygodne sypialnie na poddaszu
  • Prosta bryła i nieskomplikowana konstrukcja
  • Praktyczne pomieszczenia gospodarcze: spiżarnia, kotłownia i nieduża łazienka dla gości
  • Jednostanowiskowy garaż

Gorąco polecam!

arch. Wojciech Szczepański, Pracownia Projektowa ARCHIPELAG


Dom Basia G1 dostępny jest także w wersji odbicia lustrzanego.

W przypadku szczegółowych pytań, dotyczących projektu i jego wersji, zapraszamy do kontaktu z architektem dyżurnym:

Tel.: 71 798 38 52

e-mail: architekt@archipelag.pl

Więcej informacji o projekcie Basia G1

Bezpłatna pomoc architekta

Wypełnij formularz, skontaktujemy się z Tobą.

Zamawiając usługi forum i dzienników budowy, przyjmujesz do wiadomości i wyrażasz zgodę na świadczenie tych usług i przetwarzanie przez Usługodawcę, którym jest Pracownia Projektowa ARCHIPELAG A. Wójciak, R. Wójciak Sp. J., jako Administratora danych, podanych w formularzu danych osobowych, na zasadach wskazanych w Regulaminie i Polityce Prywatności serwisu ARCHIPELAG.pl.

Jeśli chcesz także otrzymywać bonusy i informacje dotyczące akcji promocyjnych naszych i naszych Partnerów, wyraź zgodę dodatkową i zaznacz odpowiednie pole. Wyrażam zgodę na przetwarzanie moich danych osobowych przez administratora, którym jest Pracownia Projektowa ARCHIPELAG A. Wójciak, R. Wójciak Sp. J. z siedzibą: ul. M. Smoluchowskiego 56/3, 50-372 Wrocław, nr KRS 0000123673, NIP: 897-16-05-744, REGON: 931987209:

Na podstawie art. 13 Rozporządzenia Parlamentu Europejskiego i Rady (UE) 2016/679 z dnia 27 kwietnia 2016 r. w sprawie ochrony osób fizycznych w związku z przetwarzaniem danych osobowych i w sprawie swobodnego przepływu takich danych oraz uchylenia dyrektywy 95/46/WE (RODO) informujemy Cię, że (przeczytaj klauzulę informacyjną):

czytaj całość ›
Pola oznaczone gwiazdką (*) są obowiązkowe do wypełnienia