Ulubione projekty

Twoja lista jest pusta

Dodano projekt

Usunięto projekt

Bezpłatne rysunki elektroniczne przy projektach ARCHIPELAGU

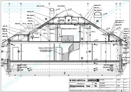
Do projektów z oferty Pracowni Projektowej ARCHIPELAG, prezentowanych na stronie internetowej Pracowni, dołączone są bezpłatne rysunki elektroniczne w formacie PDF, które zawierają, m.in. rzuty poszczególnych kondygnacji i przekroje pionowe budynku. Dodatkowe rysunki są bardzo przydatne na etapie wyboru projektu i planowania wystroju wnętrz. Ułatwiają również pracę architektom adaptującym i geodetom.

Przed zakupem projektu

Rysunki elektroniczne są pomocne inwestorowi już przed zakupem projektu – przydadzą się np. na etapie rozmów z architektem o wybranym domu, o jego funkcji i rozmieszczeniu poszczególnych pomieszczeń. 

Etap wyboru projektu

Na etapie wyboru projektu, dzięki PDF’om pokazującym zakres, skalę i stopień szczegółowości projektu, można odczytać:

  • wymiary poszczególnych pomieszczeń,
  • wymiary ogólne,
  • powierzchnie,
  • rozmieszczenie elementów konstrukcji – podciągów.

Rysunki elektroniczne przedstawiają także szereg danych technicznych na przekrojach: wysokości poszczególnych kondygnacji, okapów, parapetów, stolarki, elementy i rodzaj konstrukcji dachowej (więźby), sposób montażu rolet oraz pozwalają odczytać rodzaj użytych materiałów do budowy ścian. Pozwoli to w przybliżeniu zaplanować przebieg inwestycji i budżet kosztów.

Etap adaptacji

Po zakupie wybranego projektu rysunki elektroniczne ułatwią pracę architektom adaptującym, geodetom i innym projektantom branżowym. Znajdą również zastosowanie przy opracowywaniu wystroju wnętrz i umeblowaniu poszczególnych pomieszczeń.

KONTAKT 

telefon: 71 798 38 00
e-mail: biuro@archipelag.pl

Biuro jest czynne:


  • Poniedziałek - piątek: od 8:00 do 16:00
Bezpłatna pomoc architekta

Wypełnij formularz, skontaktujemy się z Tobą.

Zamawiając usługi forum i dzienników budowy, przyjmujesz do wiadomości i wyrażasz zgodę na świadczenie tych usług i przetwarzanie przez Usługodawcę, którym jest Pracownia Projektowa ARCHIPELAG A. Wójciak, R. Wójciak Sp. J., jako Administratora danych, podanych w formularzu danych osobowych, na zasadach wskazanych w Regulaminie i Polityce Prywatności serwisu ARCHIPELAG.pl.

Jeśli chcesz także otrzymywać bonusy i informacje dotyczące akcji promocyjnych naszych i naszych Partnerów, wyraź zgodę dodatkową i zaznacz odpowiednie pole. Wyrażam zgodę na przetwarzanie moich danych osobowych przez administratora, którym jest Pracownia Projektowa ARCHIPELAG A. Wójciak, R. Wójciak Sp. J. z siedzibą: ul. M. Smoluchowskiego 56/3, 50-372 Wrocław, nr KRS 0000123673, NIP: 897-16-05-744, REGON: 931987209:

Na podstawie art. 13 Rozporządzenia Parlamentu Europejskiego i Rady (UE) 2016/679 z dnia 27 kwietnia 2016 r. w sprawie ochrony osób fizycznych w związku z przetwarzaniem danych osobowych i w sprawie swobodnego przepływu takich danych oraz uchylenia dyrektywy 95/46/WE (RODO) informujemy Cię, że (przeczytaj klauzulę informacyjną):

czytaj całość ›
Pola oznaczone gwiazdką (*) są obowiązkowe do wypełnienia