Ulubione projekty
Twoja lista jest pusta
Dodano projekt
Usunięto projekt
- Powierzchnia użytkowa 146.14 m²
- Dodatkowo:
- pom. techniczne 8.12 m²
- garaż 28.70 m²
- Powierzchnia zabudowy 228.30 m²
- Pow. netto 191.47 m²
- Kubatura 561.00 m³
- Wymiary budynku 21.34 × 12.74 m
- Wysokość budynku 7.08 m
- Kąt nachylenia dachu 25o (2°)
- Powierzchnia dachu 161 m²
- Minimalne wymiary działki 29.34 x 19.74 m
Cena projektu
6 720 pln
8 400 pln
- Katalogowa karta projektu (711 KB)
- EX 11 G2 (wersja D) ENERGO PLUS - charakterystyka energetyczna (wersja domu z wentylacją mechaniczną)Budynek spełnia wymagania WT2021 (518 KB)
- EX 11 G2 (wersja D) ENERGO PLUS - zestawienie materiałów ociepleniowych w kompletnym systemie TERMO ORGANIKA (768 KB)
- ProDeck - system tarasowy TERRA (2189 KB)
- Dom energooszczędny - instalacje i termoizolacja – schemat (584 KB)
- Dom energooszczędny - współczynnik przenikania ciepła przez przegrody (523 KB)
- Deimic - system inteligentnego domu (564 KB)
Zadaj pytanie do projektu EX 11 G2 (wersja D) ENERGO PLUS
Jesteś zainteresowany/a tym projektem? Architekt dyżurny przygotuje dla Ciebie materiały z projektu technicznego. Zostaw nam swoje dane, powiadomimy Cię, gdy pliki będą dostępne.
Zamawiając usługi forum i dzienników budowy, przyjmujesz do wiadomości i wyrażasz zgodę na świadczenie tych usług i przetwarzanie przez Usługodawcę, którym jest Pracownia Projektowa ARCHIPELAG A. Wójciak, R. Wójciak Sp. J., jako Administratora danych, podanych w formularzu danych osobowych, na zasadach wskazanych w Regulaminie i Polityce Prywatności serwisu ARCHIPELAG.pl.
Jeśli chcesz także otrzymywać bonusy i informacje dotyczące akcji promocyjnych naszych i naszych Partnerów, wyraź zgodę dodatkową i zaznacz odpowiednie pole. Wyrażam zgodę na przetwarzanie moich danych osobowych przez administratora, którym jest Pracownia Projektowa ARCHIPELAG A. Wójciak, R. Wójciak Sp. J. z siedzibą: ul. M. Smoluchowskiego 56/3, 50-372 Wrocław, nr KRS 0000123673, NIP: 897-16-05-744, REGON: 931987209:
Na podstawie art. 13 Rozporządzenia Parlamentu Europejskiego i Rady (UE) 2016/679 z dnia 27 kwietnia 2016 r. w sprawie ochrony osób fizycznych w związku z przetwarzaniem danych osobowych i w sprawie swobodnego przepływu takich danych oraz uchylenia dyrektywy 95/46/WE (RODO) informujemy Cię, że (przeczytaj klauzulę informacyjną):
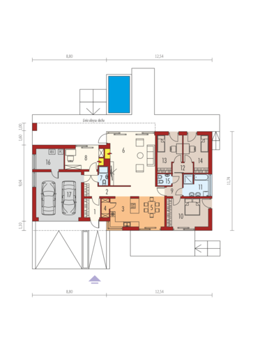
czytaj całość ›Parter
- 1. Wiatrołap 4.54 m²
- 2. Hol 9.24 m²
- 3. Kuchnia 11.87 m²
- 4. Spiżarnia 2.11 m²
- 5. Jadalnia 11.08 m²
- 6. Pokój dzienny 37.40 m²
- 7. Łazienka 2.38 m²
- 8. Gabinet 11.31 m²
- 9. Korytarz 3.93 m²
- 10. Sypialnia 16.68 m²
- 11. Łazienka 7.61 m²
- 12. Korytarz 2.87 m²
- 13. Sypialnia 11.42 m²
- 14. Sypialnia 11.47 m²
- 15. Toaleta 2.23 m²
- 16. Pom. techniczne 8.12 m²
- 17. Garaż 28.70 m²
Zużycie energii - domy z kolekcji ENERGO PLUS
Wskaźnik EP dla domu z wentylacją mechaniczną, pompą ciepła oraz kolektorami słonecznymi (szczegółowe dane w charakterystyce energetycznej)
Pobierz charakterystykę energetyczną:
Wskaźnik EP określa roczne zapotrzebowanie domu na nieodnawialną energię pierwotną do ogrzewania, wentylacji oraz przygotowania ciepłej wody użytkowej.
Szacunkowy koszt budowy
| STANDARDOWE (uśrednione) [zł] |
||
|---|---|---|
| Stan surowy otwarty: | 248 911 (1) | |
| Stan surowy zamknięty: | 306 352 (1) | |
| Stan deweloperski: | 507 395 (1) | |
|
(1) Wyliczone według współczynników (2) Wyliczone według kosztorysu |
||
Opinia eksperta
Forum (2)
Ostatnie tematy:
- jasiu44 [2] gość, 2017-07-04 13:50
- dach wiązarowy [2] gość, 2015-10-16 08:22
Dzienniki budowy
Archipelag dla Ciebie
Polecane technologie
Wypełnij formularz, skontaktujemy się z Tobą.
Zamawiając usługi forum i dzienników budowy, przyjmujesz do wiadomości i wyrażasz zgodę na świadczenie tych usług i przetwarzanie przez Usługodawcę, którym jest Pracownia Projektowa ARCHIPELAG A. Wójciak, R. Wójciak Sp. J., jako Administratora danych, podanych w formularzu danych osobowych, na zasadach wskazanych w Regulaminie i Polityce Prywatności serwisu ARCHIPELAG.pl.
Jeśli chcesz także otrzymywać bonusy i informacje dotyczące akcji promocyjnych naszych i naszych Partnerów, wyraź zgodę dodatkową i zaznacz odpowiednie pole. Wyrażam zgodę na przetwarzanie moich danych osobowych przez administratora, którym jest Pracownia Projektowa ARCHIPELAG A. Wójciak, R. Wójciak Sp. J. z siedzibą: ul. M. Smoluchowskiego 56/3, 50-372 Wrocław, nr KRS 0000123673, NIP: 897-16-05-744, REGON: 931987209:
Na podstawie art. 13 Rozporządzenia Parlamentu Europejskiego i Rady (UE) 2016/679 z dnia 27 kwietnia 2016 r. w sprawie ochrony osób fizycznych w związku z przetwarzaniem danych osobowych i w sprawie swobodnego przepływu takich danych oraz uchylenia dyrektywy 95/46/WE (RODO) informujemy Cię, że (przeczytaj klauzulę informacyjną):
czytaj całość ›





Garaż usytuowany w bryle budynku wymaga dobrej izolacji ścian i sufitu, które przylegają do części mieszkalnej oraz ciepłych drzwi łączących go z domem. Musimy ograniczyć też straty energii, do których dochodzi przez płytę bramy. Najlepszym rozwiązaniem będzie tu brama LPU 67 Thermo zbudowana z izolowanych termicznie segmentów o grubości 67 mm i wyposażona w podwójne uszczelki wargowe na ich łączeniach oraz w podwójną uszczelkę progową. Ucieczce ciepła z domu zapobiegną natomiast energooszczędne drzwi wejściowe Thermo 65. Te stalowe drzwi z płytą o grubości 65 mm wypełnioną pianką PU to nie tylko wysoka termoizolacyjność, ale też dobre wyposażenie przeciwwłamaniowe oraz bogaty wybór eleganckich wzorów.
czytaj więcej