Ulubione projekty
Twoja lista jest pusta
Dodano projekt
Usunięto projekt
- Powierzchnia użytkowa 136.93 m²
- Dodatkowo:
- pom. techniczne 9.12 m²
- garaż 36.97 m²
- Powierzchnia zabudowy 142.10 m²
- Pow. netto 219.89 m²
- Kubatura 584.27 m³
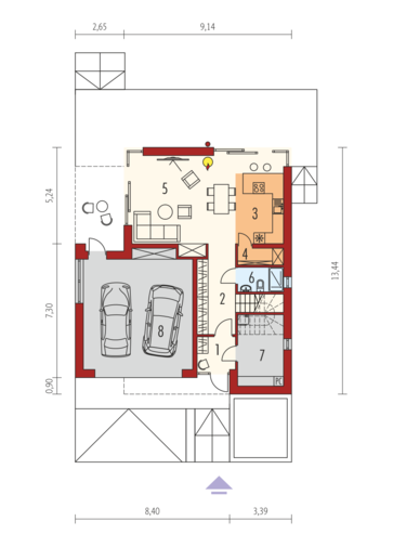
- Wymiary budynku 11.79 × 13.44 m
- Wysokość budynku 9.29 m
- Kąt nachylenia dachu 45o (4°)
- Powierzchnia dachu 153 m²
- Minimalne wymiary działki 19.79 x 21.44 m
Cena projektu
5 280 pln
6 600 pln
- Katalogowa karta projektu (728 KB)
- Adam G2 ENERGO PLUS - charakterystyka energetyczna (wersja domu z wentylacją mechaniczną)Budynek spełnia wymagania WT2021 (527 KB)
- Adam G2 ENERGO PLUS - materiały z projektu technicznego (1032 KB)
- Adam G2 ENERGO PLUS - materiały z projektu technicznego (odbicie lustrzane) (1026 KB)
- ProDeck - system tarasowy TERRA (2189 KB)
- Dom energooszczędny - współczynnik przenikania ciepła przez przegrody (523 KB)
- Dom energooszczędny - instalacje i termoizolacja - schemat (584 KB)
- Deimic - system inteligentnego domu (564 KB)
Zadaj pytanie do projektu Adam G2 ENERGO PLUS
Jesteś zainteresowany/a tym projektem? Architekt dyżurny przygotuje dla Ciebie materiały z projektu technicznego. Zostaw nam swoje dane, powiadomimy Cię, gdy pliki będą dostępne.
Zamawiając usługi forum i dzienników budowy, przyjmujesz do wiadomości i wyrażasz zgodę na świadczenie tych usług i przetwarzanie przez Usługodawcę, którym jest Pracownia Projektowa ARCHIPELAG A. Wójciak, R. Wójciak Sp. J., jako Administratora danych, podanych w formularzu danych osobowych, na zasadach wskazanych w Regulaminie i Polityce Prywatności serwisu ARCHIPELAG.pl.
Jeśli chcesz także otrzymywać bonusy i informacje dotyczące akcji promocyjnych naszych i naszych Partnerów, wyraź zgodę dodatkową i zaznacz odpowiednie pole. Wyrażam zgodę na przetwarzanie moich danych osobowych przez administratora, którym jest Pracownia Projektowa ARCHIPELAG A. Wójciak, R. Wójciak Sp. J. z siedzibą: ul. M. Smoluchowskiego 56/3, 50-372 Wrocław, nr KRS 0000123673, NIP: 897-16-05-744, REGON: 931987209:
Na podstawie art. 13 Rozporządzenia Parlamentu Europejskiego i Rady (UE) 2016/679 z dnia 27 kwietnia 2016 r. w sprawie ochrony osób fizycznych w związku z przetwarzaniem danych osobowych i w sprawie swobodnego przepływu takich danych oraz uchylenia dyrektywy 95/46/WE (RODO) informujemy Cię, że (przeczytaj klauzulę informacyjną):
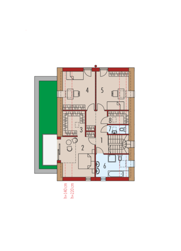
czytaj całość ›Parter
- 1. Wiatrołap 3.65 m²
- 2. Hol + schody 12.73 m²
- 3. Kuchnia 12.48 m²
- 4. Spiżarnia 2.22 m²
- 5. Pokój dzienny 28.01 m²
- 6. Łazienka 3.26 m²
- 7. Pom. techniczne 9.12 m²
- 8. Garaż 36.97 m²
Zużycie energii - domy z kolekcji ENERGO PLUS
Wskaźnik EP dla domu z wentylacją mechaniczną, pompą ciepła oraz kolektorami słonecznymi (szczegółowe dane w charakterystyce energetycznej)
Pobierz charakterystykę energetyczną:
Wskaźnik EP określa roczne zapotrzebowanie domu na nieodnawialną energię pierwotną do ogrzewania, wentylacji oraz przygotowania ciepłej wody użytkowej.
Szacunkowy koszt budowy
| STANDARDOWE (uśrednione) [zł] |
||
|---|---|---|
| Stan surowy otwarty: | 285 857 (1) | |
| Stan surowy zamknięty: | 351 824 (1) | |
| Stan deweloperski: | 582 708 (1) | |
|
(1) Wyliczone według współczynników (2) Wyliczone według kosztorysu |
||
Opinia eksperta
Forum
Dzienniki budowy
Archipelag dla Ciebie
Polecane technologie
Wypełnij formularz, skontaktujemy się z Tobą.
Zamawiając usługi forum i dzienników budowy, przyjmujesz do wiadomości i wyrażasz zgodę na świadczenie tych usług i przetwarzanie przez Usługodawcę, którym jest Pracownia Projektowa ARCHIPELAG A. Wójciak, R. Wójciak Sp. J., jako Administratora danych, podanych w formularzu danych osobowych, na zasadach wskazanych w Regulaminie i Polityce Prywatności serwisu ARCHIPELAG.pl.
Jeśli chcesz także otrzymywać bonusy i informacje dotyczące akcji promocyjnych naszych i naszych Partnerów, wyraź zgodę dodatkową i zaznacz odpowiednie pole. Wyrażam zgodę na przetwarzanie moich danych osobowych przez administratora, którym jest Pracownia Projektowa ARCHIPELAG A. Wójciak, R. Wójciak Sp. J. z siedzibą: ul. M. Smoluchowskiego 56/3, 50-372 Wrocław, nr KRS 0000123673, NIP: 897-16-05-744, REGON: 931987209:
Na podstawie art. 13 Rozporządzenia Parlamentu Europejskiego i Rady (UE) 2016/679 z dnia 27 kwietnia 2016 r. w sprawie ochrony osób fizycznych w związku z przetwarzaniem danych osobowych i w sprawie swobodnego przepływu takich danych oraz uchylenia dyrektywy 95/46/WE (RODO) informujemy Cię, że (przeczytaj klauzulę informacyjną):
czytaj całość ›





Adam G2 ENERGO PLUS to nowatorski i oryginalny projekt domu, którego największymi atutami są duże przeszklenia oraz dwa tarasy. Dzięki intensywnemu powiązaniu domu z otaczającą go przestrzenią, świetnie sprawdzi się na działce leśnej lub z licznymi nasadzeniami. Aby podkreślić połączenie domu z ogrodem, na dwóch tarasach można wykorzystać trwałą, betonową deskę Madera, wiernie oddającą fakturę naturalnego drewna. Aby nadać całości charakteru i podkreślić styl domu proponujemy wykorzystać kompozycję z dwóch kontrastowych kolorów deski: bianco i grigio.
czytaj więcej