Ulubione projekty
Twoja lista jest pusta
Dodano projekt
Usunięto projekt
- Powierzchnia użytkowa 147.59 m²
- Dodatkowo:
- pom. techniczne 10.54 m²
- garaż 35.55 m²
- Powierzchnia zabudowy 158.48 m²
- Pow. netto 247.23 m²
- Kubatura 588.58 m³
- Wymiary budynku 14.84 × 13.74 m
- Wysokość budynku 8.71 m
- Kąt nachylenia dachu 40o (2°)
- Powierzchnia dachu 124 m²
- Minimalne wymiary działki 21.84 x 23.24 m
Cena projektu
5 280 pln
6 600 pln
- Katalogowa karta projektu (870 KB)
- Nils II G2 ENERGO PLUS - charakterystyka energetyczna (wersja domu z wentylacją mechaniczną)Budynek spełnia wymagania WT2021 (558 KB)
- Nils II G2 ENERGO PLUS - materiały z projektu technicznego (1098 KB)
- ProDeck - system tarasowy TERRA (2189 KB)
- Dom energooszczędny - instalacje i termoizolacja – schemat (584 KB)
- Dom energooszczędny - współczynnik przenikania ciepła przez przegrody (523 KB)
- Deimic - system inteligentnego domu (564 KB)
Zadaj pytanie do projektu Nils II G2 ENERGO PLUS
Jesteś zainteresowany/a tym projektem? Architekt dyżurny przygotuje dla Ciebie materiały z projektu technicznego. Zostaw nam swoje dane, powiadomimy Cię, gdy pliki będą dostępne.
Zamawiając usługi forum i dzienników budowy, przyjmujesz do wiadomości i wyrażasz zgodę na świadczenie tych usług i przetwarzanie przez Usługodawcę, którym jest Pracownia Projektowa ARCHIPELAG A. Wójciak, R. Wójciak Sp. J., jako Administratora danych, podanych w formularzu danych osobowych, na zasadach wskazanych w Regulaminie i Polityce Prywatności serwisu ARCHIPELAG.pl.
Jeśli chcesz także otrzymywać bonusy i informacje dotyczące akcji promocyjnych naszych i naszych Partnerów, wyraź zgodę dodatkową i zaznacz odpowiednie pole. Wyrażam zgodę na przetwarzanie moich danych osobowych przez administratora, którym jest Pracownia Projektowa ARCHIPELAG A. Wójciak, R. Wójciak Sp. J. z siedzibą: ul. M. Smoluchowskiego 56/3, 50-372 Wrocław, nr KRS 0000123673, NIP: 897-16-05-744, REGON: 931987209:
Na podstawie art. 13 Rozporządzenia Parlamentu Europejskiego i Rady (UE) 2016/679 z dnia 27 kwietnia 2016 r. w sprawie ochrony osób fizycznych w związku z przetwarzaniem danych osobowych i w sprawie swobodnego przepływu takich danych oraz uchylenia dyrektywy 95/46/WE (RODO) informujemy Cię, że (przeczytaj klauzulę informacyjną):
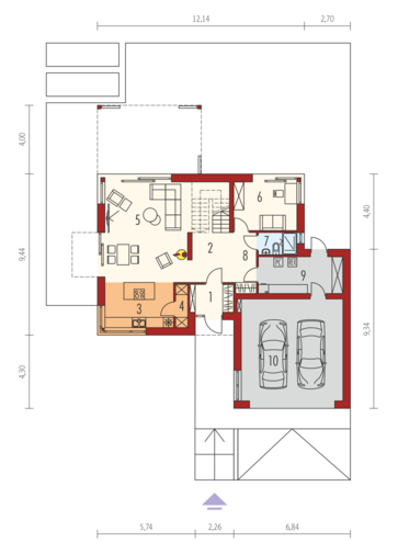
czytaj całość ›Parter
- 1. Wiatrołap 4.11 m²
- 2. Hol + schody 13.65 m²
- 3. Kuchnia 10.57 m²
- 4. Spiżarnia 1.74 m²
- 5. Pokój dzienny 29.59 m²
- 6. Gabinet 10.47 m²
- 7. Łazienka 2.86 m²
- 8. Korytarz 4.62 m²
- 9. Pom. techniczne 10.54 m²
- 10. Garaż 35.55 m²
Zużycie energii - domy z kolekcji ENERGO PLUS
Wskaźnik EP dla domu z wentylacją mechaniczną, pompą ciepła oraz kolektorami słonecznymi (szczegółowe dane w charakterystyce energetycznej)
Pobierz charakterystykę energetyczną:
Wskaźnik EP określa roczne zapotrzebowanie domu na nieodnawialną energię pierwotną do ogrzewania, wentylacji oraz przygotowania ciepłej wody użytkowej.
Szacunkowy koszt budowy
| STANDARDOWE (uśrednione) [zł] |
||
|---|---|---|
| Stan surowy otwarty: | 321 399 (1) | |
| Stan surowy zamknięty: | 395 568 (1) | |
| Stan deweloperski: | 655 159 (1) | |
|
(1) Wyliczone według współczynników (2) Wyliczone według kosztorysu |
||
Opinia eksperta
Forum
Dzienniki budowy
Archipelag dla Ciebie
Polecane technologie
Wypełnij formularz, skontaktujemy się z Tobą.
Zamawiając usługi forum i dzienników budowy, przyjmujesz do wiadomości i wyrażasz zgodę na świadczenie tych usług i przetwarzanie przez Usługodawcę, którym jest Pracownia Projektowa ARCHIPELAG A. Wójciak, R. Wójciak Sp. J., jako Administratora danych, podanych w formularzu danych osobowych, na zasadach wskazanych w Regulaminie i Polityce Prywatności serwisu ARCHIPELAG.pl.
Jeśli chcesz także otrzymywać bonusy i informacje dotyczące akcji promocyjnych naszych i naszych Partnerów, wyraź zgodę dodatkową i zaznacz odpowiednie pole. Wyrażam zgodę na przetwarzanie moich danych osobowych przez administratora, którym jest Pracownia Projektowa ARCHIPELAG A. Wójciak, R. Wójciak Sp. J. z siedzibą: ul. M. Smoluchowskiego 56/3, 50-372 Wrocław, nr KRS 0000123673, NIP: 897-16-05-744, REGON: 931987209:
Na podstawie art. 13 Rozporządzenia Parlamentu Europejskiego i Rady (UE) 2016/679 z dnia 27 kwietnia 2016 r. w sprawie ochrony osób fizycznych w związku z przetwarzaniem danych osobowych i w sprawie swobodnego przepływu takich danych oraz uchylenia dyrektywy 95/46/WE (RODO) informujemy Cię, że (przeczytaj klauzulę informacyjną):
czytaj całość ›








Garaż usytuowany w bryle budynku wymaga dobrej izolacji ścian i sufitu, które przylegają do części mieszkalnej oraz ciepłych drzwi łączących go z domem. Musimy ograniczyć też straty energii, do których dochodzi przez płytę bramy. Najlepszym rozwiązaniem będzie tu brama LPU 67 Thermo zbudowana z izolowanych termicznie segmentów o grubości 67 mm i wyposażona w podwójne uszczelki wargowe na ich łączeniach oraz w podwójną uszczelkę progową. Ucieczce ciepła z domu zapobiegną natomiast energooszczędne drzwi wejściowe Thermo 65. Te stalowe drzwi z płytą o grubości 65 mm wypełnioną pianką PU to nie tylko wysoka termoizolacyjność, ale też dobre wyposażenie przeciwwłamaniowe oraz bogaty wybór eleganckich wzorów.
czytaj więcej