Ulubione projekty
Twoja lista jest pusta
Dodano projekt
Usunięto projekt
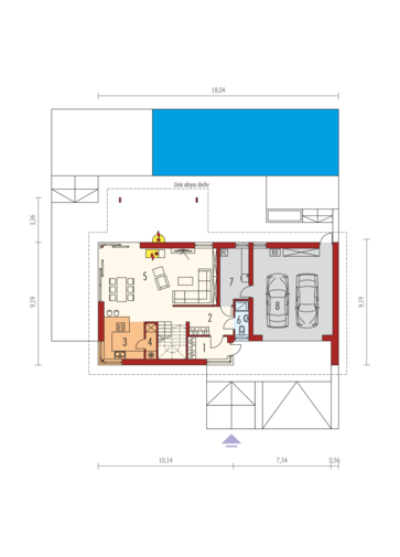
- Powierzchnia użytkowa 160.33 m²
- Dodatkowo:
- pom. techniczne 8.51 m²
- garaż 38.63 m²
- Powierzchnia zabudowy 153.67 m²
- Pow. netto 261.68 m²
- Kubatura 625.02 m³
- Wymiary budynku 18.04 × 12.55 m
- Wysokość budynku 8.37 m
- Kąt nachylenia dachu 40o
- Powierzchnia dachu 289 m²
- Minimalne wymiary działki 26.04 x 18.70 m
Cena projektu
5 360 pln
6 700 pln
- Katalogowa karta projektu (779 KB)
- Nikolas II G2 ENERGO PLUS - charakterystyka energetyczna (wersja domu z wentylacją mechaniczną)Budynek spełnia wymagania WT2021 (536 KB)
- Nikolas II G2 ENERGO PLUS - materiały z projektu technicznego (1198 KB)
- Nikolas II G2 ENERGO PLUS - materiały z projektu technicznego (odbicie lustrzane) (1209 KB)
- ProDeck - system tarasowy TERRA (2189 KB)
- Dom energooszczędny - instalacje i termoizolacja – schemat (584 KB)
- Dom energooszczędny - współczynnik przenikania ciepła przez przegrody (523 KB)
- ISOVER - IZOLACJA poddasza użytkowego i stropu poddasza nieużytkowego (1181 KB)
- Deimic - system inteligentnego domu (564 KB)
Zadaj pytanie do projektu Nikolas II G2 ENERGO PLUS
Jesteś zainteresowany/a tym projektem? Architekt dyżurny przygotuje dla Ciebie materiały z projektu technicznego. Zostaw nam swoje dane, powiadomimy Cię, gdy pliki będą dostępne.
Zamawiając usługi forum i dzienników budowy, przyjmujesz do wiadomości i wyrażasz zgodę na świadczenie tych usług i przetwarzanie przez Usługodawcę, którym jest Pracownia Projektowa ARCHIPELAG A. Wójciak, R. Wójciak Sp. J., jako Administratora danych, podanych w formularzu danych osobowych, na zasadach wskazanych w Regulaminie i Polityce Prywatności serwisu ARCHIPELAG.pl.
Jeśli chcesz także otrzymywać bonusy i informacje dotyczące akcji promocyjnych naszych i naszych Partnerów, wyraź zgodę dodatkową i zaznacz odpowiednie pole. Wyrażam zgodę na przetwarzanie moich danych osobowych przez administratora, którym jest Pracownia Projektowa ARCHIPELAG A. Wójciak, R. Wójciak Sp. J. z siedzibą: ul. M. Smoluchowskiego 56/3, 50-372 Wrocław, nr KRS 0000123673, NIP: 897-16-05-744, REGON: 931987209:
Na podstawie art. 13 Rozporządzenia Parlamentu Europejskiego i Rady (UE) 2016/679 z dnia 27 kwietnia 2016 r. w sprawie ochrony osób fizycznych w związku z przetwarzaniem danych osobowych i w sprawie swobodnego przepływu takich danych oraz uchylenia dyrektywy 95/46/WE (RODO) informujemy Cię, że (przeczytaj klauzulę informacyjną):
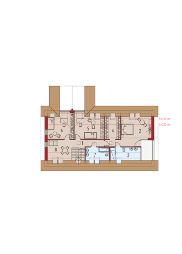
czytaj całość ›Parter
- 1. Wiatrołap 4.89 m²
- 2. Hol + schody 14.26 m²
- 3. Kuchnia 8.35 m²
- 4. Spiżarnia 2.06 m²
- 5. Pokój dzienny + jadalnia 42.13 m²
- 6. Łazienka 2.65 m²
- 7. Pom. techniczne 8.51 m²
- 8. Garaż 38.63 m²
Zużycie energii - domy z kolekcji ENERGO PLUS
Wskaźnik EP dla domu z wentylacją mechaniczną, pompą ciepła oraz kolektorami słonecznymi (szczegółowe dane w charakterystyce energetycznej)
Pobierz charakterystykę energetyczną:
Wskaźnik EP określa roczne zapotrzebowanie domu na nieodnawialną energię pierwotną do ogrzewania, wentylacji oraz przygotowania ciepłej wody użytkowej.
Szacunkowy koszt budowy
| STANDARDOWE (uśrednione) [zł] |
||
|---|---|---|
| Stan surowy otwarty: | 340 184 (1) | |
| Stan surowy zamknięty: | 418 688 (1) | |
| Stan deweloperski: | 693 452 (1) | |
|
(1) Wyliczone według współczynników (2) Wyliczone według kosztorysu |
||
Opinia eksperta
Forum
Dzienniki budowy
Archipelag dla Ciebie
Polecane technologie
Wypełnij formularz, skontaktujemy się z Tobą.
Zamawiając usługi forum i dzienników budowy, przyjmujesz do wiadomości i wyrażasz zgodę na świadczenie tych usług i przetwarzanie przez Usługodawcę, którym jest Pracownia Projektowa ARCHIPELAG A. Wójciak, R. Wójciak Sp. J., jako Administratora danych, podanych w formularzu danych osobowych, na zasadach wskazanych w Regulaminie i Polityce Prywatności serwisu ARCHIPELAG.pl.
Jeśli chcesz także otrzymywać bonusy i informacje dotyczące akcji promocyjnych naszych i naszych Partnerów, wyraź zgodę dodatkową i zaznacz odpowiednie pole. Wyrażam zgodę na przetwarzanie moich danych osobowych przez administratora, którym jest Pracownia Projektowa ARCHIPELAG A. Wójciak, R. Wójciak Sp. J. z siedzibą: ul. M. Smoluchowskiego 56/3, 50-372 Wrocław, nr KRS 0000123673, NIP: 897-16-05-744, REGON: 931987209:
Na podstawie art. 13 Rozporządzenia Parlamentu Europejskiego i Rady (UE) 2016/679 z dnia 27 kwietnia 2016 r. w sprawie ochrony osób fizycznych w związku z przetwarzaniem danych osobowych i w sprawie swobodnego przepływu takich danych oraz uchylenia dyrektywy 95/46/WE (RODO) informujemy Cię, że (przeczytaj klauzulę informacyjną):
czytaj całość ›









Nikolas II G2 to średniej wielkości dom jednorodzinny z poddaszem użytkowym, więc można zastosować bloczki SOLBET o szerokości 24cm o klasie gęstości 500 lub 600. Mogą to być bloczki profilowane na pióra i wpusty, czyli do murowania z wypełnionymi zaprawą spoinami poziomymi i bez wypełnienia spoin pionowych. Można też wybrać bloczki, które muruje się z wypełnieniem spoin poziomych i pionowych, czyli bloczki profilowane na wpust-wpust lub bez profilowania. Do ścian działowych można zastosować bloczki SOLBET o szerokości 12cm. Do murowania najlepiej zastosować zaprawę do cienkich spoin SOLBET 0.1. Przekrycie otworów w ścianach do szerokości 180cm można łatwo wykonać za pomocą nadproży SOLBET. Przy szerszych otworach i nad oknami narożnymi należy zastosować nadproża żelbetowe wylewane na budowie. Beton komórkowy sprawdzi się przy wykonywaniu wszystkich ścian a zwłaszcza ścian szczytowych, które trzeba dopasować do kształtu dachu. Beton komórkowy sprawdzi się przede wszystkim w trakcie użytkowania domu. Zapewni odpowiedni mikroklimat pomieszczeń, izolacyjność cieplną ścian od strony wewnętrznej. To ciepły i trwały dom na lata.
czytaj więcej