Ulubione projekty
Twoja lista jest pusta
Dodano projekt
Usunięto projekt
- Powierzchnia użytkowa 123.92 m²
- Dodatkowo:
- kotłownia 6.80 m²
- Powierzchnia zabudowy 91.49 m²
- Pow. netto 143.13 m²
- Kubatura 368.73 m³
- Wymiary budynku 7.24 × 13.63 m
- Wysokość budynku 7.68 m
- Kąt nachylenia dachu 20o
- Powierzchnia dachu 130 m²
- Minimalne wymiary działki 15.24 x 20.49 m
Cena projektu
3 600 pln
4 500 pln
- Mika II - charakterystyka energetyczna (wersja domu z wentylacją grawitacyjną)Budynek spełnia wymagania WT2021 (495 KB)
- Mika II - charakterystyka energetyczna (wersja domu z wentylacją mechaniczną)Budynek spełnia wymagania WT2021 (498 KB)
- Mika II - materiały z projektu technicznegoBudynek spełnia wymagania WT2021 (847 KB)
- Mika II - projekt prefabrykowanej więźby dachowejProjekt prefabrykowanej więźby dachowej (1932 KB)
Zadaj pytanie do projektu Mika II
Jesteś zainteresowany/a tym projektem? Architekt dyżurny przygotuje dla Ciebie materiały z projektu technicznego. Zostaw nam swoje dane, powiadomimy Cię, gdy pliki będą dostępne.
Zamawiając usługi forum i dzienników budowy, przyjmujesz do wiadomości i wyrażasz zgodę na świadczenie tych usług i przetwarzanie przez Usługodawcę, którym jest Pracownia Projektowa ARCHIPELAG A. Wójciak, R. Wójciak Sp. J., jako Administratora danych, podanych w formularzu danych osobowych, na zasadach wskazanych w Regulaminie i Polityce Prywatności serwisu ARCHIPELAG.pl.
Jeśli chcesz także otrzymywać bonusy i informacje dotyczące akcji promocyjnych naszych i naszych Partnerów, wyraź zgodę dodatkową i zaznacz odpowiednie pole. Wyrażam zgodę na przetwarzanie moich danych osobowych przez administratora, którym jest Pracownia Projektowa ARCHIPELAG A. Wójciak, R. Wójciak Sp. J. z siedzibą: ul. M. Smoluchowskiego 56/3, 50-372 Wrocław, nr KRS 0000123673, NIP: 897-16-05-744, REGON: 931987209:
Na podstawie art. 13 Rozporządzenia Parlamentu Europejskiego i Rady (UE) 2016/679 z dnia 27 kwietnia 2016 r. w sprawie ochrony osób fizycznych w związku z przetwarzaniem danych osobowych i w sprawie swobodnego przepływu takich danych oraz uchylenia dyrektywy 95/46/WE (RODO) informujemy Cię, że (przeczytaj klauzulę informacyjną):
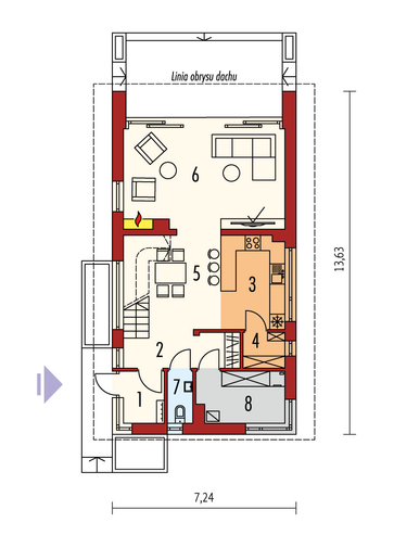
czytaj całość ›Parter
- 1. Wiatrołap 3.21 m²
- 2. Hol + schody 11.18 m²
- 3. Kuchnia 9.14 m²
- 4. Spiżarnia 2.25 m²
- 5. Jadalnia 9.59 m²
- 6. Pokój rodzinny 24.67 m²
- 7. Toaleta 1.98 m²
- 8. Kotłownia 6.80 m²
Zużycie energii
Wskaźnik EP dla domu z wentylacją grawitacyjną (szczegółowe dane w charakterystyce energetycznej)
Pobierz charakterystykę energetyczną:
Wskaźnik EP określa roczne zapotrzebowanie domu na nieodnawialną energię pierwotną do ogrzewania, wentylacji oraz przygotowania ciepłej wody użytkowej.
Szacunkowy koszt budowy
| STANDARDOWE (uśrednione) [zł] |
||
|---|---|---|
| Stan surowy otwarty: | 186 069 (1) | |
| Stan surowy zamknięty: | 229 008 (1) | |
| Stan deweloperski: | 379 294 (1) | |
| Instalacje wewnętrzne: | 37 929 (1) | |
|
(1) Wyliczone według współczynników (2) Wyliczone według kosztorysu |
||
Opinia eksperta
Forum
Dzienniki budowy
Archipelag dla Ciebie
Polecane technologie
Wypełnij formularz, skontaktujemy się z Tobą.
Zamawiając usługi forum i dzienników budowy, przyjmujesz do wiadomości i wyrażasz zgodę na świadczenie tych usług i przetwarzanie przez Usługodawcę, którym jest Pracownia Projektowa ARCHIPELAG A. Wójciak, R. Wójciak Sp. J., jako Administratora danych, podanych w formularzu danych osobowych, na zasadach wskazanych w Regulaminie i Polityce Prywatności serwisu ARCHIPELAG.pl.
Jeśli chcesz także otrzymywać bonusy i informacje dotyczące akcji promocyjnych naszych i naszych Partnerów, wyraź zgodę dodatkową i zaznacz odpowiednie pole. Wyrażam zgodę na przetwarzanie moich danych osobowych przez administratora, którym jest Pracownia Projektowa ARCHIPELAG A. Wójciak, R. Wójciak Sp. J. z siedzibą: ul. M. Smoluchowskiego 56/3, 50-372 Wrocław, nr KRS 0000123673, NIP: 897-16-05-744, REGON: 931987209:
Na podstawie art. 13 Rozporządzenia Parlamentu Europejskiego i Rady (UE) 2016/679 z dnia 27 kwietnia 2016 r. w sprawie ochrony osób fizycznych w związku z przetwarzaniem danych osobowych i w sprawie swobodnego przepływu takich danych oraz uchylenia dyrektywy 95/46/WE (RODO) informujemy Cię, że (przeczytaj klauzulę informacyjną):
czytaj całość ›


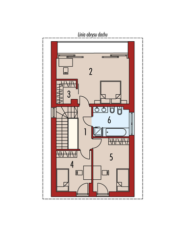
Projekt Mika i jego warianty, to budynek dwukondygnacyjny z wygodnymi kondygnacjami parteru i piętra o pełnej wysokości. Jego prosta forma sprzyja energooszczędności oraz uporządkowaniu układu funkcjonalnego. Na parterze zaprojektowano strefę dzienną, a na piętrze nocną. Znaczna część struktur zewnętrznych budynku stanowią ściany, więc mają one istotny wpływ na energooszczędność domu. Warto je wykonać z materiału o wysokiej termoizolacyjności – w systemie z betonu komórkowego. Beton komórkowy, jako materiał o jednorodnej porowatej strukturze powoduje, że buduje się z niego szybko i łatwo, ale to też sprzyja wysokiej energooszczędności budynku. Ściany zewnętrzne oraz wewnętrzne nośne zaprojektowano z bloczków z betonu komórkowego o szerokości 24cm i klasie gęstości 500 lub 600. Natomiast ściany działowe z bloczków betonu komórkowego 12cm i klasie gęstości 500 lub 600. Do przesklepienia otworów okiennych do szerokości 180cm i drzwiowych można zastosować prefabrykowane belki nadprożowe z betonu komórkowego. Do murowania ścian na cienkie spoiny można zastosować zaprawę murarską do betonu komórkowego 0.1. Ściany zewnętrzne można ocieplić systemem SOLBET Termo. To kompleksowe rozwiązania dla Twojego energooszczędnego i trwałego domu.
czytaj więcej