Ulubione projekty
Twoja lista jest pusta
Dodano projekt
Usunięto projekt
- Powierzchnia użytkowa 126.75 m²
- Dodatkowo:
- pom. techniczne 4.85 m²
- garaż 18.03 m²
- Powierzchnia zabudowy 99.31 m²
- Pow. netto 162.13 m²
- Kubatura 433.72 m³
- Wymiary budynku 8.55 × 12.89 m
- Wysokość budynku 9.64 m
- Kąt nachylenia dachu 38o
- Powierzchnia dachu 126 m²
- Minimalne wymiary działki 12.55 x 21.83 m
Cena projektu
8 240 pln
10 300 pln
- Katalogowa karta projektu (760 KB)
- Konrad G1 (bliźniak) ENERGO PLUS - charakterystyka energetyczna (wersja domu z wentylacją mechaniczną)Budynek spełnia wymagania WT2021 (541 KB)
- Konrad G1 (bliźniak) ENERGO PLUS LEWY - materiały z projektu technicznegoBudynek spełnia wymagania WT2021 (1513 KB)
- Konrad G1 (bliźniak) ENERGO PLUS PRAWY - materiały z projektu technicznegoBudynek spełnia wymagania WT2021 (1517 KB)
- ProDeck - system tarasowy Terra (2189 KB)
- ISOVER - IZOLACJA poddasza użytkowego i stropu poddasza nieużytkowego (1181 KB)
- Deimic - system inteligentnego domu (564 KB)
- Dom energooszczędny - instalacje i termoizolacja – schemat (584 KB)
- Dom energooszczędny - współczynnik przenikania ciepła przez przegrody (523 KB)
- Konrad G1 (bliźniak) ENERGO PLUS - pokrycia elewacji CEDRAL (480 KB)
Zadaj pytanie do projektu Konrad G1 (bliźniak) ENERGO PLUS
Jesteś zainteresowany/a tym projektem? Architekt dyżurny przygotuje dla Ciebie materiały z projektu technicznego. Zostaw nam swoje dane, powiadomimy Cię, gdy pliki będą dostępne.
Zamawiając usługi forum i dzienników budowy, przyjmujesz do wiadomości i wyrażasz zgodę na świadczenie tych usług i przetwarzanie przez Usługodawcę, którym jest Pracownia Projektowa ARCHIPELAG A. Wójciak, R. Wójciak Sp. J., jako Administratora danych, podanych w formularzu danych osobowych, na zasadach wskazanych w Regulaminie i Polityce Prywatności serwisu ARCHIPELAG.pl.
Jeśli chcesz także otrzymywać bonusy i informacje dotyczące akcji promocyjnych naszych i naszych Partnerów, wyraź zgodę dodatkową i zaznacz odpowiednie pole. Wyrażam zgodę na przetwarzanie moich danych osobowych przez administratora, którym jest Pracownia Projektowa ARCHIPELAG A. Wójciak, R. Wójciak Sp. J. z siedzibą: ul. M. Smoluchowskiego 56/3, 50-372 Wrocław, nr KRS 0000123673, NIP: 897-16-05-744, REGON: 931987209:
Na podstawie art. 13 Rozporządzenia Parlamentu Europejskiego i Rady (UE) 2016/679 z dnia 27 kwietnia 2016 r. w sprawie ochrony osób fizycznych w związku z przetwarzaniem danych osobowych i w sprawie swobodnego przepływu takich danych oraz uchylenia dyrektywy 95/46/WE (RODO) informujemy Cię, że (przeczytaj klauzulę informacyjną):
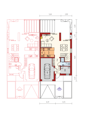
czytaj całość ›Parter
- 1. Wiatrołap 2.74 m²
- 2. Hol + schody 10.25 m²
- 3. Kuchnia 6.85 m²
- 4. Spiżarnia 1.87 m²
- 5. Jadalnia 9.68 m²
- 6. Pokój dzienny 18.89 m²
- 7. Łazienka 3.62 m²
- 8. Pom. techniczne 4.85 m²
- 9. Garaż 18.03 m²
Zużycie energii - domy z kolekcji ENERGO PLUS
Wskaźnik EP dla domu z wentylacją mechaniczną, pompą ciepła oraz kolektorami słonecznymi (szczegółowe dane w charakterystyce energetycznej)
Pobierz charakterystykę energetyczną:
Wskaźnik EP określa roczne zapotrzebowanie domu na nieodnawialną energię pierwotną do ogrzewania, wentylacji oraz przygotowania ciepłej wody użytkowej.
Szacunkowy koszt budowy
| STANDARDOWE (uśrednione) [zł] |
||
|---|---|---|
| Stan surowy otwarty: | 210 769 (1) | |
| Stan surowy zamknięty: | 259 408 (1) | |
| Stan deweloperski: | 429 644 (1) | |
|
(1) Wyliczone według współczynników (2) Wyliczone według kosztorysu |
||
Opinia eksperta
Forum
Dzienniki budowy
Archipelag dla Ciebie
Polecane technologie
Wypełnij formularz, skontaktujemy się z Tobą.
Zamawiając usługi forum i dzienników budowy, przyjmujesz do wiadomości i wyrażasz zgodę na świadczenie tych usług i przetwarzanie przez Usługodawcę, którym jest Pracownia Projektowa ARCHIPELAG A. Wójciak, R. Wójciak Sp. J., jako Administratora danych, podanych w formularzu danych osobowych, na zasadach wskazanych w Regulaminie i Polityce Prywatności serwisu ARCHIPELAG.pl.
Jeśli chcesz także otrzymywać bonusy i informacje dotyczące akcji promocyjnych naszych i naszych Partnerów, wyraź zgodę dodatkową i zaznacz odpowiednie pole. Wyrażam zgodę na przetwarzanie moich danych osobowych przez administratora, którym jest Pracownia Projektowa ARCHIPELAG A. Wójciak, R. Wójciak Sp. J. z siedzibą: ul. M. Smoluchowskiego 56/3, 50-372 Wrocław, nr KRS 0000123673, NIP: 897-16-05-744, REGON: 931987209:
Na podstawie art. 13 Rozporządzenia Parlamentu Europejskiego i Rady (UE) 2016/679 z dnia 27 kwietnia 2016 r. w sprawie ochrony osób fizycznych w związku z przetwarzaniem danych osobowych i w sprawie swobodnego przepływu takich danych oraz uchylenia dyrektywy 95/46/WE (RODO) informujemy Cię, że (przeczytaj klauzulę informacyjną):
czytaj całość ›



Konrad G1 ENERGO PLUS to prosty i szybki w realizacji projekt domu w zabudowie bliźniaczej. Fasadę budynku zdobią aplikacje z desek elewacyjnych Cedral Lap. W tym przypadku wybrano dwa, kontrastujące ze sobą kolory, które nadały całości niepowtarzalny charakter. Materiały Cedral są niezwykle proste w utrzymaniu, dzięki czemu można na długie lata zapomnieć o uciążliwej konserwacji i cieszyć się uzyskanym efektem. Ponadto włóknocement, z którego są wykonane jest materiałem bardzo trwałym (gwarancja wynosi 10 lat), łatwym w montażu i przyjaznym dla środowiska.
czytaj więcej