Ulubione projekty
Twoja lista jest pusta
Dodano projekt
Usunięto projekt
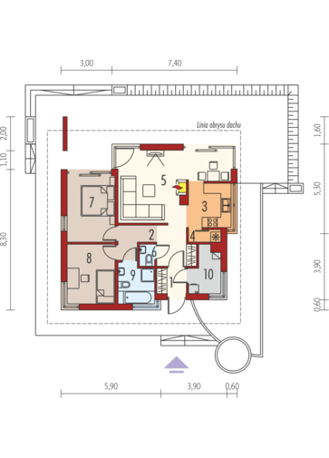
- Powierzchnia użytkowa 67.35 m²
- Dodatkowo:
- kotłownia 4.36 m²
- Powierzchnia zabudowy 97.52 m²
- Pow. netto 80.31 m²
- Kubatura 214.64 m³
- Wymiary budynku 10.40 × 11.40 m
- Wysokość budynku 6.90 m
- Kąt nachylenia dachu 30o
- Powierzchnia dachu 150 m²
- Minimalne wymiary działki 18.40 x 17.80 m
Cena projektu
3 440 pln
4 300 pln
- Katalogowa karta projektu (681 KB)
- Tori II - charakterystyka energetyczna (wersja domu z wentylacją grawitacyjną)Budynek spełnia wymagania WT2021 (496 KB)
- Tori II - charakterystyka energetyczna (wersja domu z wentylacją mechaniczną)Budynek spełnia wymagania WT2021 (494 KB)
- Tori II - materiały z projektu technicznego (630 KB)
- Tori II - materiały z projektu technicznego (odbicie lustrzane) (636 KB)
- ProDeck - system tarasowy TERRA (2189 KB)
- Tori II - projekt prefabrykowanej więźby dachowej (4104 KB)
Zadaj pytanie do projektu Tori II
Jesteś zainteresowany/a tym projektem? Architekt dyżurny przygotuje dla Ciebie materiały z projektu technicznego. Zostaw nam swoje dane, powiadomimy Cię, gdy pliki będą dostępne.
Zamawiając usługi forum i dzienników budowy, przyjmujesz do wiadomości i wyrażasz zgodę na świadczenie tych usług i przetwarzanie przez Usługodawcę, którym jest Pracownia Projektowa ARCHIPELAG A. Wójciak, R. Wójciak Sp. J., jako Administratora danych, podanych w formularzu danych osobowych, na zasadach wskazanych w Regulaminie i Polityce Prywatności serwisu ARCHIPELAG.pl.
Jeśli chcesz także otrzymywać bonusy i informacje dotyczące akcji promocyjnych naszych i naszych Partnerów, wyraź zgodę dodatkową i zaznacz odpowiednie pole. Wyrażam zgodę na przetwarzanie moich danych osobowych przez administratora, którym jest Pracownia Projektowa ARCHIPELAG A. Wójciak, R. Wójciak Sp. J. z siedzibą: ul. M. Smoluchowskiego 56/3, 50-372 Wrocław, nr KRS 0000123673, NIP: 897-16-05-744, REGON: 931987209:
Na podstawie art. 13 Rozporządzenia Parlamentu Europejskiego i Rady (UE) 2016/679 z dnia 27 kwietnia 2016 r. w sprawie ochrony osób fizycznych w związku z przetwarzaniem danych osobowych i w sprawie swobodnego przepływu takich danych oraz uchylenia dyrektywy 95/46/WE (RODO) informujemy Cię, że (przeczytaj klauzulę informacyjną):
czytaj całość ›Zużycie energii
Wskaźnik EP dla domu z wentylacją grawitacyjną (szczegółowe dane w charakterystyce energetycznej)
Pobierz charakterystykę energetyczną:
Wskaźnik EP określa roczne zapotrzebowanie domu na nieodnawialną energię pierwotną do ogrzewania, wentylacji oraz przygotowania ciepłej wody użytkowej.
Szacunkowy koszt budowy
| STANDARDOWE (uśrednione) [zł] |
||
|---|---|---|
| Stan surowy otwarty: | 104 403 (1) | |
| Stan surowy zamknięty: | 128 496 (1) | |
| Stan deweloperski: | 212 821 (1) | |
| Instalacje wewnętrzne: | 21 282 (1) | |
|
(1) Wyliczone według współczynników (2) Wyliczone według kosztorysu |
||
Opinia eksperta
Forum (3)
Ostatnie tematy:
- Myślisz o... [0] gość, 2016-12-01 11:33
- KOSZTY BUDOWY [3] gość, 2013-10-24 09:45
- cena [0] gość, 2011-09-08 12:08
Archipelag dla Ciebie
Polecane technologie
Wypełnij formularz, skontaktujemy się z Tobą.
Zamawiając usługi forum i dzienników budowy, przyjmujesz do wiadomości i wyrażasz zgodę na świadczenie tych usług i przetwarzanie przez Usługodawcę, którym jest Pracownia Projektowa ARCHIPELAG A. Wójciak, R. Wójciak Sp. J., jako Administratora danych, podanych w formularzu danych osobowych, na zasadach wskazanych w Regulaminie i Polityce Prywatności serwisu ARCHIPELAG.pl.
Jeśli chcesz także otrzymywać bonusy i informacje dotyczące akcji promocyjnych naszych i naszych Partnerów, wyraź zgodę dodatkową i zaznacz odpowiednie pole. Wyrażam zgodę na przetwarzanie moich danych osobowych przez administratora, którym jest Pracownia Projektowa ARCHIPELAG A. Wójciak, R. Wójciak Sp. J. z siedzibą: ul. M. Smoluchowskiego 56/3, 50-372 Wrocław, nr KRS 0000123673, NIP: 897-16-05-744, REGON: 931987209:
Na podstawie art. 13 Rozporządzenia Parlamentu Europejskiego i Rady (UE) 2016/679 z dnia 27 kwietnia 2016 r. w sprawie ochrony osób fizycznych w związku z przetwarzaniem danych osobowych i w sprawie swobodnego przepływu takich danych oraz uchylenia dyrektywy 95/46/WE (RODO) informujemy Cię, że (przeczytaj klauzulę informacyjną):
czytaj całość ›



W projekcie przytulnego, nowoczesnego domu Tori II zastosowano elementy ceramiczne zarówno na dachu jak i na elewacji. Materiały ceramiczne od wieków są uznawane za najtrwalsze, ekologiczne oraz najatrakcyjniejsze wizualnie produkty stosowane do budowy domu. W ofercie firmy RÖBEN można znaleźć kilkadziesiąt rodzajów cegieł, płytek klinkierowych czy dachówek, które z łatwością można dopasować do każdego projektu. Poza klasycznymi czerwieniami możemy wybrać szarości, burgundy, brązy a nawet antracyty. W dobie powszechnej świadomości ekologicznej, inwestorzy coraz bardziej doceniają, że spektakularny efekt uzyskany przy pomocy m.in. klinkieru idzie w parze z troską o środowisko. Ceramika jest bowiem naturalnym materiałem, a proces produkcyjny ceramiki firmy RÖBEN, wpisuje się w ideę „zero waste”, gdyż nie generuje zbędnych odpadów.
czytaj więcej