Ulubione projekty
Twoja lista jest pusta
Dodano projekt
Usunięto projekt
- Powierzchnia użytkowa 104.26 m²
- Dodatkowo:
- kotłownia 9.46 m²
- garaż 18.79 m²
- Powierzchnia zabudowy 118.44 m²
- Pow. netto 174.73 m²
- Kubatura 417.87 m³
- Wymiary budynku 13.70 × 9.50 m
- Wysokość budynku 8.72 m
- Kąt nachylenia dachu 45o
- Powierzchnia dachu 145 m²
- Minimalne wymiary działki 20.70 x 17.50 m
Cena projektu
3 680 pln
4 600 pln
- Katalogowa karta projektu (641 KB)
- Tim IV G1 ECONOMIC (wersja A) - charakterystyka energetyczna (wersja domu z wentylacją grawitacyjną)Budynek spełnia wymagania WT2021 (535 KB)
- Tim IV G1 ECONOMIC (wersja A) - charakterystyka energetyczna (wersja domu z wentylacją mechaniczną)Budynek spełnia wymagania WT2021 (536 KB)
- Tim IV G1 ECONOMIC (wersja A) - materiały z projektu technicznego (1060 KB)
Zadaj pytanie do projektu Tim IV G1 ECONOMIC (wersja A)
Jesteś zainteresowany/a tym projektem? Architekt dyżurny przygotuje dla Ciebie materiały z projektu technicznego. Zostaw nam swoje dane, powiadomimy Cię, gdy pliki będą dostępne.
Zamawiając usługi forum i dzienników budowy, przyjmujesz do wiadomości i wyrażasz zgodę na świadczenie tych usług i przetwarzanie przez Usługodawcę, którym jest Pracownia Projektowa ARCHIPELAG A. Wójciak, R. Wójciak Sp. J., jako Administratora danych, podanych w formularzu danych osobowych, na zasadach wskazanych w Regulaminie i Polityce Prywatności serwisu ARCHIPELAG.pl.
Jeśli chcesz także otrzymywać bonusy i informacje dotyczące akcji promocyjnych naszych i naszych Partnerów, wyraź zgodę dodatkową i zaznacz odpowiednie pole. Wyrażam zgodę na przetwarzanie moich danych osobowych przez administratora, którym jest Pracownia Projektowa ARCHIPELAG A. Wójciak, R. Wójciak Sp. J. z siedzibą: ul. M. Smoluchowskiego 56/3, 50-372 Wrocław, nr KRS 0000123673, NIP: 897-16-05-744, REGON: 931987209:
Na podstawie art. 13 Rozporządzenia Parlamentu Europejskiego i Rady (UE) 2016/679 z dnia 27 kwietnia 2016 r. w sprawie ochrony osób fizycznych w związku z przetwarzaniem danych osobowych i w sprawie swobodnego przepływu takich danych oraz uchylenia dyrektywy 95/46/WE (RODO) informujemy Cię, że (przeczytaj klauzulę informacyjną):
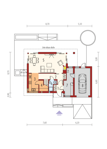
czytaj całość ›Parter
- 1. Wiatrołap 2.75 m²
- 2. Hol + schody 11.38 m²
- 3. Kuchnia 7.60 m²
- 4. Spiżarnia 1.23 m²
- 5. Pokój dzienny + jadalnia 31.14 m²
- 6. Łazienka 2.52 m²
- 7. Kotłownia 9.46 m²
- 8. Garaż 18.79 m²
Zużycie energii
Wskaźnik EP dla domu z wentylacją grawitacyjną (szczegółowe dane w charakterystyce energetycznej)
Pobierz charakterystykę energetyczną:
Wskaźnik EP określa roczne zapotrzebowanie domu na nieodnawialną energię pierwotną do ogrzewania, wentylacji oraz przygotowania ciepłej wody użytkowej.
Szacunkowy koszt budowy
| STANDARDOWE (uśrednione) [zł] |
||
|---|---|---|
| Stan surowy otwarty: | 227 149 (1) | |
| Stan surowy zamknięty: | 279 568 (1) | |
| Stan deweloperski: | 463 034 (1) | |
| Instalacje wewnętrzne: | 46 303 (1) | |
|
(1) Wyliczone według współczynników (2) Wyliczone według kosztorysu |
||
Opinia eksperta
Forum (3)
Ostatnie tematy:
- Myślisz o... [0] gość, 2016-11-30 13:13
- Tim IV G1 ECONOMIC... [0] gość, 2016-10-09 21:14
- zaczynamy! [3] gość, 2016-02-26 11:47
Dzienniki budowy
Archipelag dla Ciebie
Polecane technologie
Wypełnij formularz, skontaktujemy się z Tobą.
Zamawiając usługi forum i dzienników budowy, przyjmujesz do wiadomości i wyrażasz zgodę na świadczenie tych usług i przetwarzanie przez Usługodawcę, którym jest Pracownia Projektowa ARCHIPELAG A. Wójciak, R. Wójciak Sp. J., jako Administratora danych, podanych w formularzu danych osobowych, na zasadach wskazanych w Regulaminie i Polityce Prywatności serwisu ARCHIPELAG.pl.
Jeśli chcesz także otrzymywać bonusy i informacje dotyczące akcji promocyjnych naszych i naszych Partnerów, wyraź zgodę dodatkową i zaznacz odpowiednie pole. Wyrażam zgodę na przetwarzanie moich danych osobowych przez administratora, którym jest Pracownia Projektowa ARCHIPELAG A. Wójciak, R. Wójciak Sp. J. z siedzibą: ul. M. Smoluchowskiego 56/3, 50-372 Wrocław, nr KRS 0000123673, NIP: 897-16-05-744, REGON: 931987209:
Na podstawie art. 13 Rozporządzenia Parlamentu Europejskiego i Rady (UE) 2016/679 z dnia 27 kwietnia 2016 r. w sprawie ochrony osób fizycznych w związku z przetwarzaniem danych osobowych i w sprawie swobodnego przepływu takich danych oraz uchylenia dyrektywy 95/46/WE (RODO) informujemy Cię, że (przeczytaj klauzulę informacyjną):
czytaj całość ›



Garaż usytuowany w bryle budynku wymaga dobrej izolacji ścian i sufitu, które przylegają do części mieszkalnej oraz ciepłych drzwi łączących go z domem. Musimy ograniczyć też straty energii, do których dochodzi przez płytę bramy. Najlepszym rozwiązaniem będzie tu brama LPU 67 Thermo zbudowana z izolowanych termicznie segmentów o grubości 67 mm i wyposażona w podwójne uszczelki wargowe na ich łączeniach oraz w podwójną uszczelkę progową. Ucieczce ciepła z domu zapobiegną natomiast energooszczędne drzwi wejściowe Thermo 65. Te stalowe drzwi z płytą o grubości 65 mm wypełnioną pianką PU to nie tylko wysoka termoizolacyjność, ale też dobre wyposażenie przeciwwłamaniowe oraz bogaty wybór eleganckich wzorów
czytaj więcej