Ulubione projekty
Twoja lista jest pusta
Dodano projekt
Usunięto projekt
- Powierzchnia użytkowa 126.16 m²
- Dodatkowo:
- kotłownia 9.25 m²
- garaż 31.98 m²
- Powierzchnia zabudowy 208.17 m²
- Pow. netto 176.70 m²
- Kubatura 496.53 m³
- Wymiary budynku 13.54 × 20.35 m
- Wysokość budynku 6.94 m
- Kąt nachylenia dachu 25o
- Powierzchnia dachu 298 m²
- Minimalne wymiary działki 21.54 x 26.35 m
Cena projektu
4 240 pln
5 300 pln
- Katalogowa karta projektu (710 KB)
- Simon III G2 (wersja A) - charakterystyka energetyczna (wersja domu z wentylacją grawitacyjną)Budynek spełnia wymagania WT2021 (515 KB)
- Simon III G2 (wersja A) - charakterystyka energetyczna (wersja domu z wentylacją mechaniczną))Budynek spełnia wymagania WT2021 (511 KB)
Zadaj pytanie do projektu Simon III G2 (wersja A)
Jesteś zainteresowany/a tym projektem? Architekt dyżurny przygotuje dla Ciebie materiały z projektu technicznego. Zostaw nam swoje dane, powiadomimy Cię, gdy pliki będą dostępne.
Zamawiając usługi forum i dzienników budowy, przyjmujesz do wiadomości i wyrażasz zgodę na świadczenie tych usług i przetwarzanie przez Usługodawcę, którym jest Pracownia Projektowa ARCHIPELAG A. Wójciak, R. Wójciak Sp. J., jako Administratora danych, podanych w formularzu danych osobowych, na zasadach wskazanych w Regulaminie i Polityce Prywatności serwisu ARCHIPELAG.pl.
Jeśli chcesz także otrzymywać bonusy i informacje dotyczące akcji promocyjnych naszych i naszych Partnerów, wyraź zgodę dodatkową i zaznacz odpowiednie pole. Wyrażam zgodę na przetwarzanie moich danych osobowych przez administratora, którym jest Pracownia Projektowa ARCHIPELAG A. Wójciak, R. Wójciak Sp. J. z siedzibą: ul. M. Smoluchowskiego 56/3, 50-372 Wrocław, nr KRS 0000123673, NIP: 897-16-05-744, REGON: 931987209:
Na podstawie art. 13 Rozporządzenia Parlamentu Europejskiego i Rady (UE) 2016/679 z dnia 27 kwietnia 2016 r. w sprawie ochrony osób fizycznych w związku z przetwarzaniem danych osobowych i w sprawie swobodnego przepływu takich danych oraz uchylenia dyrektywy 95/46/WE (RODO) informujemy Cię, że (przeczytaj klauzulę informacyjną):
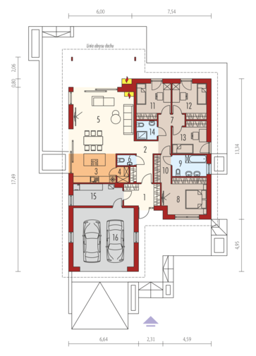
czytaj całość ›Parter
- 1. Wiatrołap 7.01 m²
- 2. Hol 7.80 m²
- 3. Kuchnia 11.04 m²
- 4. Spiżarnia 1.63 m²
- 5. Pokój dzienny + jadalnia 33.54 m²
- 6. Toaleta 1.66 m²
- 7. Korytarz 5.74 m²
- 8. Sypialnia 13.93 m²
- 9. Łazienka 6.51 m²
- 10. Garderoba 4.10 m²
- 11. Sypialnia 10.26 m²
- 12. Sypialnia 10.26 m²
- 13. Sypialnia 9.26 m²
- 14. Łazienka 3.42 m²
- 15. Kotłownia 9.25 m²
- 16. Garaż 31.98 m²
Zużycie energii
Wskaźnik EP dla domu z wentylacją grawitacyjną (szczegółowe dane w charakterystyce energetycznej)
Pobierz charakterystykę energetyczną:
Wskaźnik EP określa roczne zapotrzebowanie domu na nieodnawialną energię pierwotną do ogrzewania, wentylacji oraz przygotowania ciepłej wody użytkowej.
Szacunkowy koszt budowy
| STANDARDOWE (uśrednione) [zł] |
||
|---|---|---|
| Stan surowy otwarty: | 229 710 (1) | |
| Stan surowy zamknięty: | 282 720 (1) | |
| Stan deweloperski: | 468 255 (1) | |
| Instalacje wewnętrzne: | 46 825 (1) | |
|
(1) Wyliczone według współczynników (2) Wyliczone według kosztorysu |
||
Elewacje
Forum
Dzienniki budowy
Archipelag dla Ciebie
Polecane technologie
Wypełnij formularz, skontaktujemy się z Tobą.
Zamawiając usługi forum i dzienników budowy, przyjmujesz do wiadomości i wyrażasz zgodę na świadczenie tych usług i przetwarzanie przez Usługodawcę, którym jest Pracownia Projektowa ARCHIPELAG A. Wójciak, R. Wójciak Sp. J., jako Administratora danych, podanych w formularzu danych osobowych, na zasadach wskazanych w Regulaminie i Polityce Prywatności serwisu ARCHIPELAG.pl.
Jeśli chcesz także otrzymywać bonusy i informacje dotyczące akcji promocyjnych naszych i naszych Partnerów, wyraź zgodę dodatkową i zaznacz odpowiednie pole. Wyrażam zgodę na przetwarzanie moich danych osobowych przez administratora, którym jest Pracownia Projektowa ARCHIPELAG A. Wójciak, R. Wójciak Sp. J. z siedzibą: ul. M. Smoluchowskiego 56/3, 50-372 Wrocław, nr KRS 0000123673, NIP: 897-16-05-744, REGON: 931987209:
Na podstawie art. 13 Rozporządzenia Parlamentu Europejskiego i Rady (UE) 2016/679 z dnia 27 kwietnia 2016 r. w sprawie ochrony osób fizycznych w związku z przetwarzaniem danych osobowych i w sprawie swobodnego przepływu takich danych oraz uchylenia dyrektywy 95/46/WE (RODO) informujemy Cię, że (przeczytaj klauzulę informacyjną):
czytaj całość ›




