Ulubione projekty
Twoja lista jest pusta
Dodano projekt
Usunięto projekt
- Powierzchnia użytkowa 147.27 m²
- Dodatkowo:
- pom. techniczne 8.64 m²
- garaż 24.93 m²
- Powierzchnia zabudowy 148.26 m²
- Pow. netto 213.22 m²
- Kubatura 880.71 m³
- Wymiary budynku 15.14 × 12.19 m
- Wysokość budynku 8.91 m
- Kąt nachylenia dachu 42o
- Powierzchnia dachu 192 m²
- Minimalne wymiary działki 23.14 x 20.19 m
Cena projektu
6 080 pln
7 600 pln
Zadaj pytanie do projektu Iga III G1 ENERGO PLUS
Jesteś zainteresowany/a tym projektem? Architekt dyżurny przygotuje dla Ciebie materiały z projektu technicznego. Zostaw nam swoje dane, powiadomimy Cię, gdy pliki będą dostępne.
Zamawiając usługi forum i dzienników budowy, przyjmujesz do wiadomości i wyrażasz zgodę na świadczenie tych usług i przetwarzanie przez Usługodawcę, którym jest Pracownia Projektowa ARCHIPELAG A. Wójciak, R. Wójciak Sp. J., jako Administratora danych, podanych w formularzu danych osobowych, na zasadach wskazanych w Regulaminie i Polityce Prywatności serwisu ARCHIPELAG.pl.
Jeśli chcesz także otrzymywać bonusy i informacje dotyczące akcji promocyjnych naszych i naszych Partnerów, wyraź zgodę dodatkową i zaznacz odpowiednie pole. Wyrażam zgodę na przetwarzanie moich danych osobowych przez administratora, którym jest Pracownia Projektowa ARCHIPELAG A. Wójciak, R. Wójciak Sp. J. z siedzibą: ul. M. Smoluchowskiego 56/3, 50-372 Wrocław, nr KRS 0000123673, NIP: 897-16-05-744, REGON: 931987209:
Na podstawie art. 13 Rozporządzenia Parlamentu Europejskiego i Rady (UE) 2016/679 z dnia 27 kwietnia 2016 r. w sprawie ochrony osób fizycznych w związku z przetwarzaniem danych osobowych i w sprawie swobodnego przepływu takich danych oraz uchylenia dyrektywy 95/46/WE (RODO) informujemy Cię, że (przeczytaj klauzulę informacyjną):
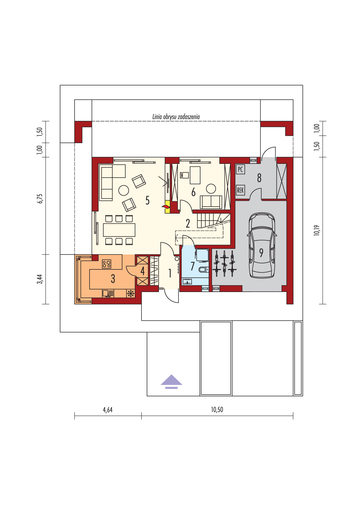
czytaj całość ›Parter
- 1. Wiatrołap 4.25 m²
- 2. Hol + schody 10.54 m²
- 3. Kuchnia 10.62 m²
- 4. Spiżarnia 1.53 m²
- 5. Pokój dzienny + jadalnia 30.21 m²
- 6. Gabinet 13.62 m²
- 7. Łazienka 4.81 m²
- 8. Pom. techniczne 8.64 m²
- 9. Garaż 24.93 m²
Szacunkowy koszt budowy
| STANDARDOWE (uśrednione) [zł] |
||
|---|---|---|
| Stan surowy otwarty: | 277 186 (1) | |
| Stan surowy zamknięty: | 341 152 (1) | |
| Stan deweloperski: | 565 033 (1) | |
|
(1) Wyliczone według współczynników (2) Wyliczone według kosztorysu |
||
Elewacje
Opinia eksperta
Forum
Dzienniki budowy
Archipelag dla Ciebie
Polecane technologie
Wypełnij formularz, skontaktujemy się z Tobą.
Zamawiając usługi forum i dzienników budowy, przyjmujesz do wiadomości i wyrażasz zgodę na świadczenie tych usług i przetwarzanie przez Usługodawcę, którym jest Pracownia Projektowa ARCHIPELAG A. Wójciak, R. Wójciak Sp. J., jako Administratora danych, podanych w formularzu danych osobowych, na zasadach wskazanych w Regulaminie i Polityce Prywatności serwisu ARCHIPELAG.pl.
Jeśli chcesz także otrzymywać bonusy i informacje dotyczące akcji promocyjnych naszych i naszych Partnerów, wyraź zgodę dodatkową i zaznacz odpowiednie pole. Wyrażam zgodę na przetwarzanie moich danych osobowych przez administratora, którym jest Pracownia Projektowa ARCHIPELAG A. Wójciak, R. Wójciak Sp. J. z siedzibą: ul. M. Smoluchowskiego 56/3, 50-372 Wrocław, nr KRS 0000123673, NIP: 897-16-05-744, REGON: 931987209:
Na podstawie art. 13 Rozporządzenia Parlamentu Europejskiego i Rady (UE) 2016/679 z dnia 27 kwietnia 2016 r. w sprawie ochrony osób fizycznych w związku z przetwarzaniem danych osobowych i w sprawie swobodnego przepływu takich danych oraz uchylenia dyrektywy 95/46/WE (RODO) informujemy Cię, że (przeczytaj klauzulę informacyjną):
czytaj całość ›









W domu Iga III G1 ENERGO PLUS znajduje się duży salon wyposażony w 2 pary drzwi podnoszono-przesuwnych MasterPatio, które dzięki wąskim profilom tworzą wyjątkową przestrzeń, w której światło dzienne wysuwa się na pierwszy plan. System ten charakteryzuje się minimalistycznym designem, umożliwiającym integrację z różnymi stylami architektonicznymi. Domownicy zyskali bardzo widną kuchnię, dzięki zamontowanym oknom MasterLine 8 od Reynaers Aluminium, które dzięki świetnym parametrom termicznym gwarantują komfort o każdej porze roku, a przy tym są trwałe i solidne. Dodatkowo system pozwala na wybór spośród aż czterech wariantów stylistycznych - nowoczesnego, klasycznego, minimalistycznego oraz industrialnego.
czytaj więcej