Ulubione projekty
Twoja lista jest pusta
Dodano projekt
Usunięto projekt
- Powierzchnia użytkowa 215.86 m²
- Dodatkowo:
- pom. techniczne 15.73 m²
- garaż 29.64 m²
- Powierzchnia zabudowy 234.42 m²
- Pow. netto 322.25 m²
- Kubatura 834.94 m³
- Wymiary budynku 22.24 × 12.74 m
- Wysokość budynku 8.90 m
- Kąt nachylenia dachu 35o (2°)
- Powierzchnia dachu 167 m²
- Minimalne wymiary działki 29.24 x 19.74 m
Cena projektu
6 880 pln
8 600 pln
- Katalogowa karta projektu (716 KB)
- EX 18 G2 ENERGO PLUS - charakterystyka energetyczna (wersja domu z wentylacją mechaniczną)Budynek spełnia wymagania WT2021 (681 KB)
- EX18 G2 Energo Plus - materiały z projektu technicznegoBudynek spełnia wymagania WT2021 (1026 KB)
- EX18 G2 Energo Plus - materiały z projektu technicznego (odbicie lustrzane)Budynek spełnia wymagania WT2021 (1016 KB)
- ProDeck - system tarasowy TERRA (2189 KB)
- Dom energooszczędny - instalacje i termoizolacja – schemat (584 KB)
- Dom energooszczędny - współczynnik przenikania ciepła przez przegrody (523 KB)
- ISOVER - IZOLACJA poddasza użytkowego i stropu poddasza nieużytkowego (1181 KB)
- Deimic - system inteligentnego domu (564 KB)
Zadaj pytanie do projektu EX 18 G2 ENERGO PLUS
Jesteś zainteresowany/a tym projektem? Architekt dyżurny przygotuje dla Ciebie materiały z projektu technicznego. Zostaw nam swoje dane, powiadomimy Cię, gdy pliki będą dostępne.
Zamawiając usługi forum i dzienników budowy, przyjmujesz do wiadomości i wyrażasz zgodę na świadczenie tych usług i przetwarzanie przez Usługodawcę, którym jest Pracownia Projektowa ARCHIPELAG A. Wójciak, R. Wójciak Sp. J., jako Administratora danych, podanych w formularzu danych osobowych, na zasadach wskazanych w Regulaminie i Polityce Prywatności serwisu ARCHIPELAG.pl.
Jeśli chcesz także otrzymywać bonusy i informacje dotyczące akcji promocyjnych naszych i naszych Partnerów, wyraź zgodę dodatkową i zaznacz odpowiednie pole. Wyrażam zgodę na przetwarzanie moich danych osobowych przez administratora, którym jest Pracownia Projektowa ARCHIPELAG A. Wójciak, R. Wójciak Sp. J. z siedzibą: ul. M. Smoluchowskiego 56/3, 50-372 Wrocław, nr KRS 0000123673, NIP: 897-16-05-744, REGON: 931987209:
Na podstawie art. 13 Rozporządzenia Parlamentu Europejskiego i Rady (UE) 2016/679 z dnia 27 kwietnia 2016 r. w sprawie ochrony osób fizycznych w związku z przetwarzaniem danych osobowych i w sprawie swobodnego przepływu takich danych oraz uchylenia dyrektywy 95/46/WE (RODO) informujemy Cię, że (przeczytaj klauzulę informacyjną):
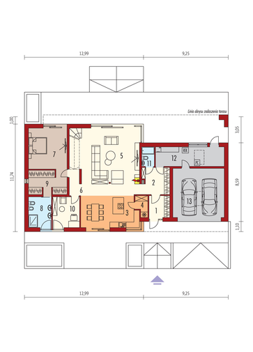
czytaj całość ›Parter
- 1. Wiatrołap 5.29 m²
- 2. Hol 9.13 m²
- 3. Kuchnia + jadalnia 21.40 m²
- 4. Spiżarnia 2.57 m²
- 5. Pokój dzienny 39.13 m²
- 6. Korytarz + schody 16.49 m²
- 7. Sypialnia 19.77 m²
- 8. Łazienka 8.29 m²
- 9. Garderoba 9.74 m²
- 10. Gabinet 9.75 m²
- 11. Łazienka 2.86 m²
- 12. Pom. techniczne 15.73 m²
- 13. Garaż 29.64 m²
Zużycie energii - domy z kolekcji ENERGO PLUS
Wskaźnik EP dla domu z wentylacją mechaniczną, pompą ciepła oraz kolektorami słonecznymi (szczegółowe dane w charakterystyce energetycznej)
Pobierz charakterystykę energetyczną:
Wskaźnik EP określa roczne zapotrzebowanie domu na nieodnawialną energię pierwotną do ogrzewania, wentylacji oraz przygotowania ciepłej wody użytkowej.
Szacunkowy koszt budowy
| STANDARDOWE (uśrednione) [zł] |
||
|---|---|---|
| Stan surowy otwarty: | 418 925 (1) | |
| Stan surowy zamknięty: | 515 600 (1) | |
| Stan deweloperski: | 853 962 (1) | |
|
(1) Wyliczone według współczynników (2) Wyliczone według kosztorysu |
||
Opinia eksperta
Forum (1)
Ostatnie tematy:
- Wykonamca [0] gość, 2021-08-30 10:27
Dzienniki budowy
Archipelag dla Ciebie
Polecane technologie
Wypełnij formularz, skontaktujemy się z Tobą.
Zamawiając usługi forum i dzienników budowy, przyjmujesz do wiadomości i wyrażasz zgodę na świadczenie tych usług i przetwarzanie przez Usługodawcę, którym jest Pracownia Projektowa ARCHIPELAG A. Wójciak, R. Wójciak Sp. J., jako Administratora danych, podanych w formularzu danych osobowych, na zasadach wskazanych w Regulaminie i Polityce Prywatności serwisu ARCHIPELAG.pl.
Jeśli chcesz także otrzymywać bonusy i informacje dotyczące akcji promocyjnych naszych i naszych Partnerów, wyraź zgodę dodatkową i zaznacz odpowiednie pole. Wyrażam zgodę na przetwarzanie moich danych osobowych przez administratora, którym jest Pracownia Projektowa ARCHIPELAG A. Wójciak, R. Wójciak Sp. J. z siedzibą: ul. M. Smoluchowskiego 56/3, 50-372 Wrocław, nr KRS 0000123673, NIP: 897-16-05-744, REGON: 931987209:
Na podstawie art. 13 Rozporządzenia Parlamentu Europejskiego i Rady (UE) 2016/679 z dnia 27 kwietnia 2016 r. w sprawie ochrony osób fizycznych w związku z przetwarzaniem danych osobowych i w sprawie swobodnego przepływu takich danych oraz uchylenia dyrektywy 95/46/WE (RODO) informujemy Cię, że (przeczytaj klauzulę informacyjną):
czytaj całość ›












Garaż usytuowany w bryle budynku wymaga dobrej izolacji ścian i sufitu, które przylegają do części mieszkalnej oraz ciepłych drzwi łączących go z domem. Musimy ograniczyć też straty energii, do których dochodzi przez płytę bramy. Najlepszym rozwiązaniem będzie tu brama LPU 67 Thermo zbudowana z izolowanych termicznie segmentów o grubości 67 mm i wyposażona w podwójne uszczelki wargowe na ich łączeniach oraz w podwójną uszczelkę progową. Ucieczce ciepła z domu zapobiegną natomiast energooszczędne drzwi wejściowe Thermo 65. Te stalowe drzwi z płytą o grubości 65 mm wypełnioną pianką PU to nie tylko wysoka termoizolacyjność, ale też dobre wyposażenie przeciwwłamaniowe oraz bogaty wybór eleganckich wzorów.
czytaj więcej