Ulubione projekty
Twoja lista jest pusta
Dodano projekt
Usunięto projekt
- Powierzchnia użytkowa 137.03 m²
- Dodatkowo:
- kotłownia 9.32 m²
- garaż 36.79 m²
- Powierzchnia zabudowy 228.02 m²
- Pow. netto 189.86 m²
- Kubatura 534.23 m³
- Wymiary budynku 12.94 × 22.34 m
- Wysokość budynku 6.88 m
- Kąt nachylenia dachu 25o
- Powierzchnia dachu 334 m²
- Minimalne wymiary działki 20.94 x 30.34 m
Cena projektu
4 480 pln
5 600 pln
- Katalogowa karta projektu (774 KB)
- Alison G2 - charakterystyka energetyczna (wersja domu z wentylacja grawitacyjna)Budynek spełnia wymagania WT2021 (514 KB)
- Alison G2 - charakterystyka energetyczna (wersja domu z wentylacja mechaniczna)Budynek spełnia wymagania WT2021 (513 KB)
- Alison G2 - materiały z projektu technicznego (1015 KB)
- Alison G2 - projekt prefabrykowanej więźby dachowej (4571 KB)
- ISOVER - IZOLACJA poddasza użytkowego i stropu poddasza nieużytkowego (1181 KB)
- ProDeck - system tarasowy Terra (2189 KB)
- Deimic - system inteligentnego domu (564 KB)
Zadaj pytanie do projektu Alison G2
Jesteś zainteresowany/a tym projektem? Architekt dyżurny przygotuje dla Ciebie materiały z projektu technicznego. Zostaw nam swoje dane, powiadomimy Cię, gdy pliki będą dostępne.
Zamawiając usługi forum i dzienników budowy, przyjmujesz do wiadomości i wyrażasz zgodę na świadczenie tych usług i przetwarzanie przez Usługodawcę, którym jest Pracownia Projektowa ARCHIPELAG A. Wójciak, R. Wójciak Sp. J., jako Administratora danych, podanych w formularzu danych osobowych, na zasadach wskazanych w Regulaminie i Polityce Prywatności serwisu ARCHIPELAG.pl.
Jeśli chcesz także otrzymywać bonusy i informacje dotyczące akcji promocyjnych naszych i naszych Partnerów, wyraź zgodę dodatkową i zaznacz odpowiednie pole. Wyrażam zgodę na przetwarzanie moich danych osobowych przez administratora, którym jest Pracownia Projektowa ARCHIPELAG A. Wójciak, R. Wójciak Sp. J. z siedzibą: ul. M. Smoluchowskiego 56/3, 50-372 Wrocław, nr KRS 0000123673, NIP: 897-16-05-744, REGON: 931987209:
Na podstawie art. 13 Rozporządzenia Parlamentu Europejskiego i Rady (UE) 2016/679 z dnia 27 kwietnia 2016 r. w sprawie ochrony osób fizycznych w związku z przetwarzaniem danych osobowych i w sprawie swobodnego przepływu takich danych oraz uchylenia dyrektywy 95/46/WE (RODO) informujemy Cię, że (przeczytaj klauzulę informacyjną):
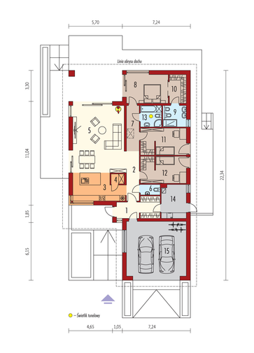
czytaj całość ›Parter
- 1. Wiatrołap + garderoba 9.12 m²
- 2. Hol 7.06 m²
- 3. Kuchnia 14.57 m²
- 4. Spiżarnia 1.43 m²
- 5. Pokój dzienny + jadalnia 39.39 m²
- 6. Toaleta 2.25 m²
- 7. Korytarz 6.48 m²
- 8. Sypialnia 13.41 m²
- 9. Łazienka 5.59 m²
- 10. Garderoba 5.39 m²
- 11. Sypialnia 13.65 m²
- 12. Sypialnia 13.65 m²
- 13. Łazienka 5.04 m²
- 14. Kotłownia 9.32 m²
- 15. Garaż 36.79 m²
Zużycie energii
Wskaźnik EP dla domu z wentylacją grawitacyjną (szczegółowe dane w charakterystyce energetycznej)
Pobierz charakterystykę energetyczną:
Wskaźnik EP określa roczne zapotrzebowanie domu na nieodnawialną energię pierwotną do ogrzewania, wentylacji oraz przygotowania ciepłej wody użytkowej.
Szacunkowy koszt budowy
| STANDARDOWE (uśrednione) [zł] |
||
|---|---|---|
| Stan surowy otwarty: | 246 818 (1) | |
| Stan surowy zamknięty: | 303 776 (1) | |
| Stan deweloperski: | 503 129 (1) | |
| Instalacje wewnętrzne: | 50 312 (1) | |
|
(1) Wyliczone według współczynników (2) Wyliczone według kosztorysu |
||
Opinia eksperta
Forum
Dzienniki budowy
Archipelag dla Ciebie
Polecane technologie
Wypełnij formularz, skontaktujemy się z Tobą.
Zamawiając usługi forum i dzienników budowy, przyjmujesz do wiadomości i wyrażasz zgodę na świadczenie tych usług i przetwarzanie przez Usługodawcę, którym jest Pracownia Projektowa ARCHIPELAG A. Wójciak, R. Wójciak Sp. J., jako Administratora danych, podanych w formularzu danych osobowych, na zasadach wskazanych w Regulaminie i Polityce Prywatności serwisu ARCHIPELAG.pl.
Jeśli chcesz także otrzymywać bonusy i informacje dotyczące akcji promocyjnych naszych i naszych Partnerów, wyraź zgodę dodatkową i zaznacz odpowiednie pole. Wyrażam zgodę na przetwarzanie moich danych osobowych przez administratora, którym jest Pracownia Projektowa ARCHIPELAG A. Wójciak, R. Wójciak Sp. J. z siedzibą: ul. M. Smoluchowskiego 56/3, 50-372 Wrocław, nr KRS 0000123673, NIP: 897-16-05-744, REGON: 931987209:
Na podstawie art. 13 Rozporządzenia Parlamentu Europejskiego i Rady (UE) 2016/679 z dnia 27 kwietnia 2016 r. w sprawie ochrony osób fizycznych w związku z przetwarzaniem danych osobowych i w sprawie swobodnego przepływu takich danych oraz uchylenia dyrektywy 95/46/WE (RODO) informujemy Cię, że (przeczytaj klauzulę informacyjną):
czytaj całość ›







Projekt Alison G2 łączy w sobie efektowność, funkcjonalność i komfort. Ceramika budowlana została zastosowana zarówno na dachu jak i na elewacji budynku. Klinkierowe elementy dodają inwestycji nowoczesnego charakteru. Przy takich inwestycjach warto wybierać produkty, które będą trwałe i odporne na działanie niekorzystnych warunków zewnętrznych. Taka właśnie jest ceramika budowlana. Cegły i płytki klinkierowe są odporne na mróz i szkodliwe działanie innych czynników atmosferycznych, nie płowieją, mają niską nasiąkliwość oraz wysoką odporność na uszkodzenia mechaniczne, a przede wszystkim gwarantują bezpieczeństwo i spokój mieszkańcom budynku
czytaj więcej