Ulubione projekty
Twoja lista jest pusta
Dodano projekt
Usunięto projekt
- Powierzchnia użytkowa 86.88 m²
- Dodatkowo:
- kotłownia 6.22 m²
- Powierzchnia zabudowy 76.33 m²
- Pow. netto 108.20 m²
- Kubatura 287.01 m³
- Wymiary budynku 10.00 × 7.80 m
- Wysokość budynku 8.12 m
- Kąt nachylenia dachu 45o
- Powierzchnia dachu 123 m²
- Minimalne wymiary działki 18.00 x 15.80 m
Cena projektu
3 600 pln
4 500 pln
- Katalogowa karta projektu (642 KB)
- Witek II - charakterystyka energetyczna (wersja domu z wentylacją grawitacyjną)Budynek spełnia wymagania WT2021 (519 KB)
- Witek II - charakterystyka energetyczna (wersja domu z wentylacją mechaniczną)Budynek spełnia wymagania WT2021 (517 KB)
- Witek II - materiały z projektu technicznego (998 KB)
- ProDeck - system tarasowy TERRA (2189 KB)
- ISOVER - IZOLACJA poddasza użytkowego i stropu poddasza nieużytkowego (1181 KB)
Zadaj pytanie do projektu Witek II
Jesteś zainteresowany/a tym projektem? Architekt dyżurny przygotuje dla Ciebie materiały z projektu technicznego. Zostaw nam swoje dane, powiadomimy Cię, gdy pliki będą dostępne.
Zamawiając usługi forum i dzienników budowy, przyjmujesz do wiadomości i wyrażasz zgodę na świadczenie tych usług i przetwarzanie przez Usługodawcę, którym jest Pracownia Projektowa ARCHIPELAG A. Wójciak, R. Wójciak Sp. J., jako Administratora danych, podanych w formularzu danych osobowych, na zasadach wskazanych w Regulaminie i Polityce Prywatności serwisu ARCHIPELAG.pl.
Jeśli chcesz także otrzymywać bonusy i informacje dotyczące akcji promocyjnych naszych i naszych Partnerów, wyraź zgodę dodatkową i zaznacz odpowiednie pole. Wyrażam zgodę na przetwarzanie moich danych osobowych przez administratora, którym jest Pracownia Projektowa ARCHIPELAG A. Wójciak, R. Wójciak Sp. J. z siedzibą: ul. M. Smoluchowskiego 56/3, 50-372 Wrocław, nr KRS 0000123673, NIP: 897-16-05-744, REGON: 931987209:
Na podstawie art. 13 Rozporządzenia Parlamentu Europejskiego i Rady (UE) 2016/679 z dnia 27 kwietnia 2016 r. w sprawie ochrony osób fizycznych w związku z przetwarzaniem danych osobowych i w sprawie swobodnego przepływu takich danych oraz uchylenia dyrektywy 95/46/WE (RODO) informujemy Cię, że (przeczytaj klauzulę informacyjną):
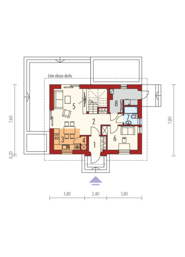
czytaj całość ›Parter
- 1. Wiatrołap 3.07 m²
- 2. Hol + schody 12.10 m²
- 3. Kuchnia 7.04 m²
- 4. Spiżarnia 0.85 m²
- 5. Pokój dzienny 15.31 m²
- 6. Gabinet 9.06 m²
- 7. Łazienka 2.93 m²
- 8. Kotłownia 6.22 m²
Zużycie energii
Wskaźnik EP dla domu z wentylacją grawitacyjną (szczegółowe dane w charakterystyce energetycznej)
Pobierz charakterystykę energetyczną:
Wskaźnik EP określa roczne zapotrzebowanie domu na nieodnawialną energię pierwotną do ogrzewania, wentylacji oraz przygotowania ciepłej wody użytkowej.
Szacunkowy koszt budowy
| STANDARDOWE (uśrednione) [zł] |
||
|---|---|---|
| Stan surowy otwarty: | 140 660 (1) | |
| Stan surowy zamknięty: | 173 120 (1) | |
| Stan deweloperski: | 286 730 (1) | |
| Instalacje wewnętrzne: | 28 673 (1) | |
|
(1) Wyliczone według współczynników (2) Wyliczone według kosztorysu |
||
Opinia eksperta
Forum
Dzienniki budowy
Archipelag dla Ciebie
Polecane technologie
Wypełnij formularz, skontaktujemy się z Tobą.
Zamawiając usługi forum i dzienników budowy, przyjmujesz do wiadomości i wyrażasz zgodę na świadczenie tych usług i przetwarzanie przez Usługodawcę, którym jest Pracownia Projektowa ARCHIPELAG A. Wójciak, R. Wójciak Sp. J., jako Administratora danych, podanych w formularzu danych osobowych, na zasadach wskazanych w Regulaminie i Polityce Prywatności serwisu ARCHIPELAG.pl.
Jeśli chcesz także otrzymywać bonusy i informacje dotyczące akcji promocyjnych naszych i naszych Partnerów, wyraź zgodę dodatkową i zaznacz odpowiednie pole. Wyrażam zgodę na przetwarzanie moich danych osobowych przez administratora, którym jest Pracownia Projektowa ARCHIPELAG A. Wójciak, R. Wójciak Sp. J. z siedzibą: ul. M. Smoluchowskiego 56/3, 50-372 Wrocław, nr KRS 0000123673, NIP: 897-16-05-744, REGON: 931987209:
Na podstawie art. 13 Rozporządzenia Parlamentu Europejskiego i Rady (UE) 2016/679 z dnia 27 kwietnia 2016 r. w sprawie ochrony osób fizycznych w związku z przetwarzaniem danych osobowych i w sprawie swobodnego przepływu takich danych oraz uchylenia dyrektywy 95/46/WE (RODO) informujemy Cię, że (przeczytaj klauzulę informacyjną):
czytaj całość ›




Dach skośny stanowi niezwykle istotny element budynku jeśli chodzi o jego zapotrzebowanie na energię do ogrzewania czy chłodzenia. Latem bardzo się nagrzewa, zaś zimą przez swoją sporą powierzchnię będzie tracił ciepło. Dlatego też trzeba zadbać, aby bez względu na porę roku zapewniał nam komfort cieplny. Najlepszym sposobem na to jest zastosowanie dwóch warstw (jedna pomiędzy krokwie, druga pod krokwiami) wełny szklanej ISOVER Super-Mata. Ma ona optymalny stosunek izolacyjności do ceny. Bardzo niski współczynnik przewodzenia ciepła (lambda) 0,033 W/mK powoduje, że stosując ją oszczędzamy na grubości w porównaniu z izolacjami o gorszych parametrach. W razie jakichkolwiek wątpliwości związanych z doborem rozwiązań z zakresu izolacji termicznej, polecam skorzystać z bezpłatnych konsultacji z inżynierami Biura Doradztwa Technicznego ISOVER. Bezpłatna infolinia o numerze 800 163 121 czynna jest od poniedziałku do piątku w godzinach 8.00-17.00, e-mail: konsultanci.isover@saint-gobain.com.
czytaj więcej