Ulubione projekty
Twoja lista jest pusta
Dodano projekt
Usunięto projekt
- Powierzchnia użytkowa 246.15 m²
- Dodatkowo:
- kotłownia 9.30 m²
- pom. gospodarcze 11.11 m²
- garaż 32.22 m²
- Powierzchnia zabudowy 234.77 m²
- Pow. netto 367.90 m²
- Kubatura 929.34 m³
- Wymiary budynku 17.60 × 18.90 m
- Wysokość budynku 10.03 m
- Kąt nachylenia dachu 45o (2°)
- Powierzchnia dachu 235 m²
- Minimalne wymiary działki 23.60 x 25.40 m
Cena projektu
7 840 pln
9 800 pln
- Katalogowa karta projektu (779 KB)
- Teodor G2 (wersja C) ENERGO PLUS - charakterystyka energetyczna (wersja domu z wentylacją mechaniczną)Budynek spełnia wymagania WT2021 (554 KB)
- Teodor G2 (wersja C) ENERGO PLUS - rysunki koncepcyjne (838 KB)
- ProDeck - system tarasowy TERRA (2189 KB)
- Dom energooszczędny - instalacje i termoizolacja – schemat (584 KB)
- Dom energooszczędny - współczynnik przenikania ciepła przez przegrody (523 KB)
- Deimic - system inteligentnego domu (564 KB)
Zadaj pytanie do projektu Teodor G2 (wersja C) ENERGO PLUS
Jesteś zainteresowany/a tym projektem? Architekt dyżurny przygotuje dla Ciebie materiały z projektu technicznego. Zostaw nam swoje dane, powiadomimy Cię, gdy pliki będą dostępne.
Zamawiając usługi forum i dzienników budowy, przyjmujesz do wiadomości i wyrażasz zgodę na świadczenie tych usług i przetwarzanie przez Usługodawcę, którym jest Pracownia Projektowa ARCHIPELAG A. Wójciak, R. Wójciak Sp. J., jako Administratora danych, podanych w formularzu danych osobowych, na zasadach wskazanych w Regulaminie i Polityce Prywatności serwisu ARCHIPELAG.pl.
Jeśli chcesz także otrzymywać bonusy i informacje dotyczące akcji promocyjnych naszych i naszych Partnerów, wyraź zgodę dodatkową i zaznacz odpowiednie pole. Wyrażam zgodę na przetwarzanie moich danych osobowych przez administratora, którym jest Pracownia Projektowa ARCHIPELAG A. Wójciak, R. Wójciak Sp. J. z siedzibą: ul. M. Smoluchowskiego 56/3, 50-372 Wrocław, nr KRS 0000123673, NIP: 897-16-05-744, REGON: 931987209:
Na podstawie art. 13 Rozporządzenia Parlamentu Europejskiego i Rady (UE) 2016/679 z dnia 27 kwietnia 2016 r. w sprawie ochrony osób fizycznych w związku z przetwarzaniem danych osobowych i w sprawie swobodnego przepływu takich danych oraz uchylenia dyrektywy 95/46/WE (RODO) informujemy Cię, że (przeczytaj klauzulę informacyjną):
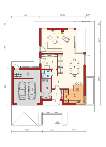
czytaj całość ›Parter
- 1. Wiatrołap 4.92 m²
- 2. Hol + schody 13.57 m²
- 3. Kuchnia 10.74 m²
- 4. Spiżarnia 2.96 m²
- 5. Jadalnia 35.43 m²
- 6. Pokój dzienny 38.38 m²
- 7. Gabinet 11.44 m²
- 8. Łazienka 3.76 m²
- 9. Kotłownia 9.30 m²
- 10. Pom. gospodarcze 11.11 m²
- 11. Garaż 32.22 m²
Zużycie energii - domy z kolekcji ENERGO PLUS
Wskaźnik EP dla domu z wentylacją mechaniczną, pompą ciepła oraz kolektorami słonecznymi (szczegółowe dane w charakterystyce energetycznej)
Pobierz charakterystykę energetyczną:
Wskaźnik EP określa roczne zapotrzebowanie domu na nieodnawialną energię pierwotną do ogrzewania, wentylacji oraz przygotowania ciepłej wody użytkowej.
Szacunkowy koszt budowy
| STANDARDOWE (uśrednione) [zł] | ||
|---|---|---|
| Stan surowy otwarty: | 478 270 (1) | |
| Stan surowy zamknięty: | 588 640 (1) | |
| Stan deweloperski: | 974 935 (1) | |
| (1) Wyliczone według współczynników (2) Wyliczone według kosztorysu | ||
Elewacje
Opinia eksperta
Forum
Dzienniki budowy
Archipelag dla Ciebie
Polecane technologie
Wypełnij formularz, skontaktujemy się z Tobą.
Zamawiając usługi forum i dzienników budowy, przyjmujesz do wiadomości i wyrażasz zgodę na świadczenie tych usług i przetwarzanie przez Usługodawcę, którym jest Pracownia Projektowa ARCHIPELAG A. Wójciak, R. Wójciak Sp. J., jako Administratora danych, podanych w formularzu danych osobowych, na zasadach wskazanych w Regulaminie i Polityce Prywatności serwisu ARCHIPELAG.pl.
Jeśli chcesz także otrzymywać bonusy i informacje dotyczące akcji promocyjnych naszych i naszych Partnerów, wyraź zgodę dodatkową i zaznacz odpowiednie pole. Wyrażam zgodę na przetwarzanie moich danych osobowych przez administratora, którym jest Pracownia Projektowa ARCHIPELAG A. Wójciak, R. Wójciak Sp. J. z siedzibą: ul. M. Smoluchowskiego 56/3, 50-372 Wrocław, nr KRS 0000123673, NIP: 897-16-05-744, REGON: 931987209:
Na podstawie art. 13 Rozporządzenia Parlamentu Europejskiego i Rady (UE) 2016/679 z dnia 27 kwietnia 2016 r. w sprawie ochrony osób fizycznych w związku z przetwarzaniem danych osobowych i w sprawie swobodnego przepływu takich danych oraz uchylenia dyrektywy 95/46/WE (RODO) informujemy Cię, że (przeczytaj klauzulę informacyjną):
czytaj całość › 
	
	 
	
	 
	
	 
	
	 
	
	 
	
	 
				
			 
				





 
			
			 
 
 
						
							
						
					
						
							 
						
							
						
					
						
							 
						
							
						
					
						
							 
						
							
						
					
						
							 
						
							
						
					
						
							 
						
							
						
					
						
							 
										 
										 
										
									
										
									
										
									
										
									
										
									
										
									
										
									
										
									
										
									
										
									
										
									
										
									
										
									
										
									
								 
										
									
										
									
										
									
										
									
										
									
										
									
								 
										
									
										
									
										
									
										
									
										
									
										
									
								 
										
									
										
									
										
									
										
									
										
									
										
									
										
									
										
									
										
									
										
									
								 
									
								
									
								
									
								
									
								
							 
									
								
									
								
									
								
									
								
							 
									
								
									
								
									
								
									
								
							 
									
								
									
								
									
								
							 
									
								
									
								
									
								
									
								
							 
									
								
									
								
									
								
									
								
									
								
									
								
									
								
									
								
									
								
							 
									
								
									
								
									
								
							 
									
								
									
								
									
								
									
								
									
								
									
								
							 
									
								
									
								
									
								
									
								
							 
									
								
									
								
									
								
									
								
									
								
							 
									
								
									
								
									
								
									
								
									
								
							 
									
								
									
								
									
								
							 
									
								
									
								
									
								
									
								
									
								
							 
					 
					 
					 
					 
					 
					 
					 
					 
					 
					 
					
Garaż usytuowany w bryle budynku wymaga dobrej izolacji ścian i sufitu, które przylegają do części mieszkalnej oraz ciepłych drzwi łączących go z domem. Musimy ograniczyć też straty energii, do których dochodzi przez płytę bramy. Najlepszym rozwiązaniem będzie tu brama LPU 67 Thermo zbudowana z izolowanych termicznie segmentów o grubości 67 mm i wyposażona w podwójne uszczelki wargowe na ich łączeniach oraz w podwójną uszczelkę progową. Ucieczce ciepła z domu zapobiegną natomiast energooszczędne drzwi wejściowe Thermo 65. Te stalowe drzwi z płytą o grubości 65 mm wypełnioną pianką PU to nie tylko wysoka termoizolacyjność, ale też dobre wyposażenie przeciwwłamaniowe oraz bogaty wybór eleganckich wzorów.
czytaj więcej