Ulubione projekty
Twoja lista jest pusta
Dodano projekt
Usunięto projekt
- Powierzchnia użytkowa 155.62 m²
- Dodatkowo:
- kotłownia 9.99 m²
- garaż 33.05 m²
- Powierzchnia zabudowy 265.48 m²
- Pow. netto 225.86 m²
- Kubatura 632.10 m³
- Wymiary budynku 14.24 × 23.59 m
- Wysokość budynku 7.11 m
- Kąt nachylenia dachu 25o
- Powierzchnia dachu 374 m²
- Minimalne wymiary działki 22.24 x 31.59 m
Cena projektu
4 800 pln
6 000 pln
- Katalogowa karta projektu (773 KB)
- Tanita III G2 - charakterystyka energetyczna (wersja domu z wentylacja grawitacyjna)Budynek spełnia wymagania WT2021 (529 KB)
- Tanita III G2 - charakterystyka energetyczna (wersja domu z wentylacja mechaniczna)Budynek spełnia wymagania WT2021 (529 KB)
- Tanita III G2 - materiały z projektu technicznego (989 KB)
- Tanita III G2 - materiały z projektu technicznego (odbicie lustrzane) (986 KB)
- Tanita III G2 - Projekt prefabrykowanej więźby dachowej (3270 KB)
- ProDeck - system tarasowy Terra (2189 KB)
- Deimic - system inteligentnego domu (564 KB)
- Tanita III G2 - zestawienie materiałów H+H do budowy domu (189 KB)
Zadaj pytanie do projektu Tanita III G2
Jesteś zainteresowany/a tym projektem? Architekt dyżurny przygotuje dla Ciebie materiały z projektu technicznego. Zostaw nam swoje dane, powiadomimy Cię, gdy pliki będą dostępne.
Zamawiając usługi forum i dzienników budowy, przyjmujesz do wiadomości i wyrażasz zgodę na świadczenie tych usług i przetwarzanie przez Usługodawcę, którym jest Pracownia Projektowa ARCHIPELAG A. Wójciak, R. Wójciak Sp. J., jako Administratora danych, podanych w formularzu danych osobowych, na zasadach wskazanych w Regulaminie i Polityce Prywatności serwisu ARCHIPELAG.pl.
Jeśli chcesz także otrzymywać bonusy i informacje dotyczące akcji promocyjnych naszych i naszych Partnerów, wyraź zgodę dodatkową i zaznacz odpowiednie pole. Wyrażam zgodę na przetwarzanie moich danych osobowych przez administratora, którym jest Pracownia Projektowa ARCHIPELAG A. Wójciak, R. Wójciak Sp. J. z siedzibą: ul. M. Smoluchowskiego 56/3, 50-372 Wrocław, nr KRS 0000123673, NIP: 897-16-05-744, REGON: 931987209:
Na podstawie art. 13 Rozporządzenia Parlamentu Europejskiego i Rady (UE) 2016/679 z dnia 27 kwietnia 2016 r. w sprawie ochrony osób fizycznych w związku z przetwarzaniem danych osobowych i w sprawie swobodnego przepływu takich danych oraz uchylenia dyrektywy 95/46/WE (RODO) informujemy Cię, że (przeczytaj klauzulę informacyjną):
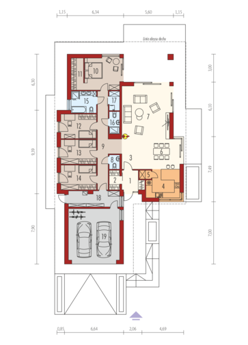
czytaj całość ›Parter
- 1. Wiatrołap 4.76 m²
- 2. Garderoba 2.50 m²
- 3. Hol 8.78 m²
- 4. Kuchnia 11.27 m²
- 5. Spiżarnia 1.25 m²
- 6. Jadalnia 15.75 m²
- 7. Pokój dzienny 32.49 m²
- 8. Toaleta 1.83 m²
- 9. Korytarz 13.02 m²
- 10. Sypialnia 14.02 m²
- 11. Garderoba 5.03 m²
- 12. Sypialnia 10.84 m²
- 13. Sypialnia 10.84 m²
- 14. Sypialnia 10.96 m²
- 15. Łazienka 6.91 m²
- 16. Łazienka 2.74 m²
- 17. Pralnia 2.63 m²
- 18. Kotłownia 9.99 m²
- 19. Garaż 33.05 m²
Zużycie energii
Wskaźnik EP dla domu z wentylacją grawitacyjną (szczegółowe dane w charakterystyce energetycznej)
Pobierz charakterystykę energetyczną:
Wskaźnik EP określa roczne zapotrzebowanie domu na nieodnawialną energię pierwotną do ogrzewania, wentylacji oraz przygotowania ciepłej wody użytkowej.
Szacunkowy koszt budowy
| STANDARDOWE (uśrednione) [zł] |
||
|---|---|---|
| Stan surowy otwarty: | 293 618 (1) | |
| Stan surowy zamknięty: | 361 376 (1) | |
| Stan deweloperski: | 598 529 (1) | |
| Instalacje wewnętrzne: | 59 852 (1) | |
|
(1) Wyliczone według współczynników (2) Wyliczone według kosztorysu |
||
Opinia eksperta
Forum (2)
Ostatnie tematy:
- Uwagi do projektu [0] gość, 2020-01-05 23:07
- Projekt uwagi. [0] gość, 2020-01-05 22:53
Dzienniki budowy
Archipelag dla Ciebie
Polecane technologie
Wypełnij formularz, skontaktujemy się z Tobą.
Zamawiając usługi forum i dzienników budowy, przyjmujesz do wiadomości i wyrażasz zgodę na świadczenie tych usług i przetwarzanie przez Usługodawcę, którym jest Pracownia Projektowa ARCHIPELAG A. Wójciak, R. Wójciak Sp. J., jako Administratora danych, podanych w formularzu danych osobowych, na zasadach wskazanych w Regulaminie i Polityce Prywatności serwisu ARCHIPELAG.pl.
Jeśli chcesz także otrzymywać bonusy i informacje dotyczące akcji promocyjnych naszych i naszych Partnerów, wyraź zgodę dodatkową i zaznacz odpowiednie pole. Wyrażam zgodę na przetwarzanie moich danych osobowych przez administratora, którym jest Pracownia Projektowa ARCHIPELAG A. Wójciak, R. Wójciak Sp. J. z siedzibą: ul. M. Smoluchowskiego 56/3, 50-372 Wrocław, nr KRS 0000123673, NIP: 897-16-05-744, REGON: 931987209:
Na podstawie art. 13 Rozporządzenia Parlamentu Europejskiego i Rady (UE) 2016/679 z dnia 27 kwietnia 2016 r. w sprawie ochrony osób fizycznych w związku z przetwarzaniem danych osobowych i w sprawie swobodnego przepływu takich danych oraz uchylenia dyrektywy 95/46/WE (RODO) informujemy Cię, że (przeczytaj klauzulę informacyjną):
czytaj całość ›




Parterowy dom TANITA III G2 to dużej wielkości obiekt, w którym odpowiednie nasłonecznienie gra bardzo dużą rolę. Elewacja frontowa wraz z garażem i drzwiami wejściowymi jest doposażona jedynie dwoma niewielkimi oknami co daje poczucie komfortu i odgrodzenia najbardziej wyeksponowanej elewacji. Natomiast pozostałe elewacje to już duża ilość przeszkleń i rewelacyjne doświetlenie całego obiektu. Miarą otwartości jest również salon przedłużony zadaszonym tarasem i widokiem na ogród. To przestrzeń w której każdy poczuje się dobrze. Ściany TANITY III G2 tworzą bloczki z betonu komórkowego – materiału ciepłego, odpornego na działanie czynników atmosferycznych i produkowanego z naturalnych surowców. Naturalny charakter obiektu przedstawia również jego jasna elewacja podkreślona grafitową dachówką. TANITA III G2 to obiekt obok, którego nikt nie przejdzie obojętnie.
czytaj więcej