Ulubione projekty
Twoja lista jest pusta
Dodano projekt
Usunięto projekt
- Powierzchnia użytkowa 123.05 m²
- Dodatkowo:
- kotłownia 11.76 m²
- garaż 32.67 m²
- Powierzchnia zabudowy 166.48 m²
- Pow. netto 202.47 m²
- Kubatura 526.83 m³
- Wymiary budynku 16.30 × 12.60 m
- Wysokość budynku 8.72 m
- Kąt nachylenia dachu 22o
- Powierzchnia dachu 202 m²
- Minimalne wymiary działki 23.30 x 20.60 m
Cena projektu
5 500 pln
- Katalogowa karta projektu (761 KB)
- Rodrigo G2 MULTI-COMFORT - charakterystyka energetyczna (wersja domu z wentylacją grawitacyjną)Budynek spełnia wymagania WT20121 (536 KB)
- Rodrigo G2 MULTI-COMFORT - charakterystyka energetyczna (wersja domu z wentylacją mechaniczną)Budynek spełnia wymagania WT2021 (536 KB)
- Rodrigo G2 MULTI-COMFORT - materiały z projektu technicznego (1058 KB)
- Rodrigo G2 MULTI-COMFORT - projekt prefabrykowanej więźby dachowej (1923 KB)
Zadaj pytanie do projektu Rodrigo G2 MULTI-COMFORT
Jesteś zainteresowany/a tym projektem? Architekt dyżurny przygotuje dla Ciebie materiały z projektu technicznego. Zostaw nam swoje dane, powiadomimy Cię, gdy pliki będą dostępne.
Zamawiając usługi forum i dzienników budowy, przyjmujesz do wiadomości i wyrażasz zgodę na świadczenie tych usług i przetwarzanie przez Usługodawcę, którym jest Pracownia Projektowa ARCHIPELAG A. Wójciak, R. Wójciak Sp. J., jako Administratora danych, podanych w formularzu danych osobowych, na zasadach wskazanych w Regulaminie i Polityce Prywatności serwisu ARCHIPELAG.pl.
Jeśli chcesz także otrzymywać bonusy i informacje dotyczące akcji promocyjnych naszych i naszych Partnerów, wyraź zgodę dodatkową i zaznacz odpowiednie pole. Wyrażam zgodę na przetwarzanie moich danych osobowych przez administratora, którym jest Pracownia Projektowa ARCHIPELAG A. Wójciak, R. Wójciak Sp. J. z siedzibą: ul. M. Smoluchowskiego 56/3, 50-372 Wrocław, nr KRS 0000123673, NIP: 897-16-05-744, REGON: 931987209:
Na podstawie art. 13 Rozporządzenia Parlamentu Europejskiego i Rady (UE) 2016/679 z dnia 27 kwietnia 2016 r. w sprawie ochrony osób fizycznych w związku z przetwarzaniem danych osobowych i w sprawie swobodnego przepływu takich danych oraz uchylenia dyrektywy 95/46/WE (RODO) informujemy Cię, że (przeczytaj klauzulę informacyjną):
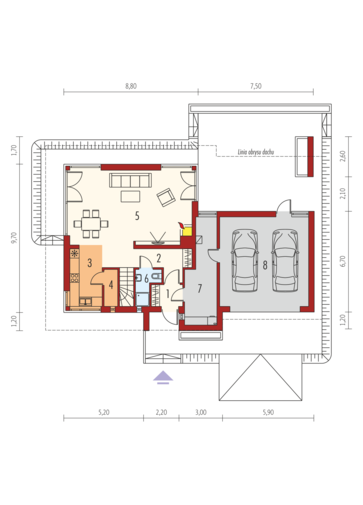
czytaj całość ›Parter
- 1. Wiatrołap 3.14 m²
- 2. Hol 10.25 m²
- 3. Kuchnia 7.58 m²
- 4. Spiżarnia 2.21 m²
- 5. Pokój dzienny + jadalnia 37.87 m²
- 6. Łazienka 2.72 m²
- 7. Kotłownia 11.76 m²
- 8. Garaż 32.67 m²
Zużycie energii
Wskaźnik EP dla domu z wentylacją grawitacyjną (szczegółowe dane w charakterystyce energetycznej)
Pobierz charakterystykę energetyczną:
Wskaźnik EP określa roczne zapotrzebowanie domu na nieodnawialną energię pierwotną do ogrzewania, wentylacji oraz przygotowania ciepłej wody użytkowej.
Szacunkowy koszt budowy
| STANDARDOWE (uśrednione) [zł] | ||
|---|---|---|
| Stan surowy otwarty: | 263 211 (1) | |
| Stan surowy zamknięty: | 323 952 (1) | |
| Stan deweloperski: | 536 545 (1) | |
| Instalacje wewnętrzne: | 53 654 (1) | |
| (1) Wyliczone według współczynników (2) Wyliczone według kosztorysu | ||
Forum (2)
Ostatnie tematy:
- wysokości... [1] gość, 2018-06-19 11:55
- Myślisz o... [0] gość, 2016-11-30 15:21
Dzienniki budowy
Archipelag dla Ciebie
Polecane technologie
Wypełnij formularz, skontaktujemy się z Tobą.
Zamawiając usługi forum i dzienników budowy, przyjmujesz do wiadomości i wyrażasz zgodę na świadczenie tych usług i przetwarzanie przez Usługodawcę, którym jest Pracownia Projektowa ARCHIPELAG A. Wójciak, R. Wójciak Sp. J., jako Administratora danych, podanych w formularzu danych osobowych, na zasadach wskazanych w Regulaminie i Polityce Prywatności serwisu ARCHIPELAG.pl.
Jeśli chcesz także otrzymywać bonusy i informacje dotyczące akcji promocyjnych naszych i naszych Partnerów, wyraź zgodę dodatkową i zaznacz odpowiednie pole. Wyrażam zgodę na przetwarzanie moich danych osobowych przez administratora, którym jest Pracownia Projektowa ARCHIPELAG A. Wójciak, R. Wójciak Sp. J. z siedzibą: ul. M. Smoluchowskiego 56/3, 50-372 Wrocław, nr KRS 0000123673, NIP: 897-16-05-744, REGON: 931987209:
Na podstawie art. 13 Rozporządzenia Parlamentu Europejskiego i Rady (UE) 2016/679 z dnia 27 kwietnia 2016 r. w sprawie ochrony osób fizycznych w związku z przetwarzaniem danych osobowych i w sprawie swobodnego przepływu takich danych oraz uchylenia dyrektywy 95/46/WE (RODO) informujemy Cię, że (przeczytaj klauzulę informacyjną):
czytaj całość › 
	
	 
	
	 
	
	 
				
			 
				


 
			
			 
 
 
										 
										 
								 
								 
								 
								 
										
									
										
									
										
									
								 
										
									
										
									
										
									
								 
										
									
										
									
										
									
										
									
								 
										
									
										
									
										
									
								 
										
									
										
									
										
									
								 
									
								
									
								
									
								
							 
									
								
									
								
									
								
									
								
							 
									
								
									
								
									
								
									
								
							 
									
								
									
								
							 
									
								
									
								
									
								
									
								
									
								
							 
									
								
									
								
									
								
							 
									
								
									
								
							 
									
								
									
								
							 
									
								
									
								
							 
					 
					 
					 
					 
					 
					 
					 
					 
					 
					