Ulubione projekty
Twoja lista jest pusta
Dodano projekt
Usunięto projekt
- Powierzchnia użytkowa 122.06 m²
- Dodatkowo:
- kotłownia 9.66 m²
- Powierzchnia zabudowy 127.05 m²
- Pow. netto 175.12 m²
- Kubatura 457.27 m³
- Wymiary budynku 13.09 × 12.21 m
- Wysokość budynku 9.04 m
- Kąt nachylenia dachu 45o
- Powierzchnia dachu 121 m²
- Minimalne wymiary działki 22.00 x 21.90 m
Cena projektu
3 600 pln
4 500 pln
- Katalogowa karta projektu (583 KB)
- Oskar (z wiatą)- charakterystyka energetyczna (wersja domu z wentylacją grawitacyjną)Budynek spełnia wymagania WT2021 (549 KB)
- Oskar (z wiatą) - charakterystyka energetyczna (wersja domu z wentylacją mechaniczną)Budynek spełnia wymagania WT2021 (547 KB)
- Oskar (z wiata) ENERGO - materiały z projektu technicznego (972 KB)
- Deimic - system inteligentnego domu (564 KB)
Zadaj pytanie do projektu Oskar (z wiatą)
Jesteś zainteresowany/a tym projektem? Architekt dyżurny przygotuje dla Ciebie materiały z projektu technicznego. Zostaw nam swoje dane, powiadomimy Cię, gdy pliki będą dostępne.
Zamawiając usługi forum i dzienników budowy, przyjmujesz do wiadomości i wyrażasz zgodę na świadczenie tych usług i przetwarzanie przez Usługodawcę, którym jest Pracownia Projektowa ARCHIPELAG A. Wójciak, R. Wójciak Sp. J., jako Administratora danych, podanych w formularzu danych osobowych, na zasadach wskazanych w Regulaminie i Polityce Prywatności serwisu ARCHIPELAG.pl.
Jeśli chcesz także otrzymywać bonusy i informacje dotyczące akcji promocyjnych naszych i naszych Partnerów, wyraź zgodę dodatkową i zaznacz odpowiednie pole. Wyrażam zgodę na przetwarzanie moich danych osobowych przez administratora, którym jest Pracownia Projektowa ARCHIPELAG A. Wójciak, R. Wójciak Sp. J. z siedzibą: ul. M. Smoluchowskiego 56/3, 50-372 Wrocław, nr KRS 0000123673, NIP: 897-16-05-744, REGON: 931987209:
Na podstawie art. 13 Rozporządzenia Parlamentu Europejskiego i Rady (UE) 2016/679 z dnia 27 kwietnia 2016 r. w sprawie ochrony osób fizycznych w związku z przetwarzaniem danych osobowych i w sprawie swobodnego przepływu takich danych oraz uchylenia dyrektywy 95/46/WE (RODO) informujemy Cię, że (przeczytaj klauzulę informacyjną):
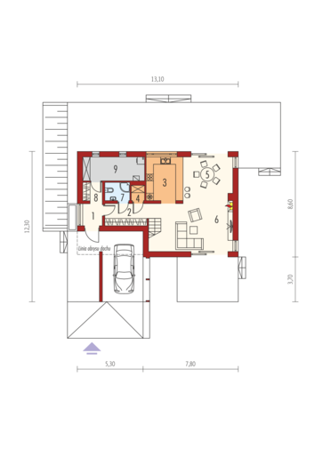
czytaj całość ›Parter
- 1. Wiatrołap 2.73 m²
- 2. Hol + schody 15.10 m²
- 3. Kuchnia 11.47 m²
- 4. Spiżarnia 1.30 m²
- 5. Jadalnia 13.15 m²
- 6. Pokój dzienny 18.94 m²
- 7. Łazienka 2.94 m²
- 8. Garderoba 2.58 m²
- 9. Kotłownia 9.66 m²
Zużycie energii
Wskaźnik EP dla domu z wentylacją grawitacyjną (szczegółowe dane w charakterystyce energetycznej)
Pobierz charakterystykę energetyczną:
Wskaźnik EP określa roczne zapotrzebowanie domu na nieodnawialną energię pierwotną do ogrzewania, wentylacji oraz przygotowania ciepłej wody użytkowej.
Szacunkowy koszt budowy
| STANDARDOWE (uśrednione) [zł] |
||
|---|---|---|
| Stan surowy otwarty: | 227 656 (1) | |
| Stan surowy zamknięty: | 280 192 (1) | |
| Stan deweloperski: | 464 068 (1) | |
| Instalacje wewnętrzne: | 46 406 (1) | |
|
(1) Wyliczone według współczynników (2) Wyliczone według kosztorysu |
||
Opinia eksperta
Forum (1)
Ostatnie tematy:
- Fantastyczny projekt [1] gość, 2013-02-21 09:13
Dzienniki budowy
Archipelag dla Ciebie
Polecane technologie
Wypełnij formularz, skontaktujemy się z Tobą.
Zamawiając usługi forum i dzienników budowy, przyjmujesz do wiadomości i wyrażasz zgodę na świadczenie tych usług i przetwarzanie przez Usługodawcę, którym jest Pracownia Projektowa ARCHIPELAG A. Wójciak, R. Wójciak Sp. J., jako Administratora danych, podanych w formularzu danych osobowych, na zasadach wskazanych w Regulaminie i Polityce Prywatności serwisu ARCHIPELAG.pl.
Jeśli chcesz także otrzymywać bonusy i informacje dotyczące akcji promocyjnych naszych i naszych Partnerów, wyraź zgodę dodatkową i zaznacz odpowiednie pole. Wyrażam zgodę na przetwarzanie moich danych osobowych przez administratora, którym jest Pracownia Projektowa ARCHIPELAG A. Wójciak, R. Wójciak Sp. J. z siedzibą: ul. M. Smoluchowskiego 56/3, 50-372 Wrocław, nr KRS 0000123673, NIP: 897-16-05-744, REGON: 931987209:
Na podstawie art. 13 Rozporządzenia Parlamentu Europejskiego i Rady (UE) 2016/679 z dnia 27 kwietnia 2016 r. w sprawie ochrony osób fizycznych w związku z przetwarzaniem danych osobowych i w sprawie swobodnego przepływu takich danych oraz uchylenia dyrektywy 95/46/WE (RODO) informujemy Cię, że (przeczytaj klauzulę informacyjną):
czytaj całość ›



Oskar to projekt budynku mieszkalnego jednorodzinnego z poddaszem użytkowym w stylu nowoczesnej stodoły. Zwarta bryła sprzyja jego energooszczędności. Bezokapowy dach oraz wystająca część parteru z podcieniem i wiatą nadaje nowoczesny charakter temu budynkowi. Wiata przenikająca się z parterem budynku w podcieniu świetnie organizuje wejście. Funkcjonalnie budynek podzielony jest na strefę dzienną na parterze oraz nocną na poddaszu. Budynek zaprojektowano w systemie ścian z betonu komórkowego, które mają wpływ na wysoką energooszczędność budynku. Ściany zewnętrzne oraz wewnętrzne nośne zaprojektowano z bloczków z betonu komórkowego 24cm. Ściany działowe zaprojektowano z bloczków z betonu komórkowego 12cm. Do obu rodzajów ścian można zastosować zarówno klasę gęstości 500 jak i 600. Do przekrycia otworów okiennych i drzwiowych o szerokości nie większej niż 180cm można zastosować prefabrykowane nadproża z betonu komórkowego. Należy przy tym pamiętać, że do ściany 24cm potrzebne są dwie belki nadprożowe o szerokości 12cm, a do ścian 12cm potrzebna jest jedna belka. Mury można precyzyjnie, łatwo i szybko wymurować na zaprawę murarską do cienkich spoin 0.1. Ściany zewnętrzne można ocieplić systemem SOLBET Termo. To systemowe rozwiązanie dla Twojego energooszczędnego i trwałego domu.
czytaj więcej