Ulubione projekty
Twoja lista jest pusta
Dodano projekt
Usunięto projekt
- Powierzchnia użytkowa 123.88 m²
- Dodatkowo:
- kotłownia 7.39 m²
- Powierzchnia zabudowy 105.47 m²
- Pow. netto 166.76 m²
- Kubatura 445.39 m³
- Wymiary budynku 10.30 × 10.30 m
- Wysokość budynku 9.63 m
- Kąt nachylenia dachu 45o
- Powierzchnia dachu 181 m²
- Minimalne wymiary działki 18.30 x 18.30 m
Cena projektu
4 600 pln
- Katalogowa karta projektu (634 KB)
- Projekt domu Mini 5 - charakterystyka energetyczna (wersja domu z wentylacją grawitacyjną)Budynek spełnia wymagania WT2021 (516 KB)
- Projekt domu Mini 5 - charakterystyka energetyczna (wersja domu z wentylacją mechaniczną)Budynek spełnia wymagania WT2021 (516 KB)
- Mini 5 - materiały z projektu technicznego (odbicie lustrzane) (898 KB)
- ProDeck - system tarasowy TERRA (2189 KB)
- ISOVER - IZOLACJA poddasza użytkowego i stropu poddasza nieużytkowego (1181 KB)
- Deimic - system inteligentnego domu (564 KB)
Zadaj pytanie do projektu Mini 5
Jesteś zainteresowany/a tym projektem? Architekt dyżurny przygotuje dla Ciebie materiały z projektu technicznego. Zostaw nam swoje dane, powiadomimy Cię, gdy pliki będą dostępne.
Zamawiając usługi forum i dzienników budowy, przyjmujesz do wiadomości i wyrażasz zgodę na świadczenie tych usług i przetwarzanie przez Usługodawcę, którym jest Pracownia Projektowa ARCHIPELAG A. Wójciak, R. Wójciak Sp. J., jako Administratora danych, podanych w formularzu danych osobowych, na zasadach wskazanych w Regulaminie i Polityce Prywatności serwisu ARCHIPELAG.pl.
Jeśli chcesz także otrzymywać bonusy i informacje dotyczące akcji promocyjnych naszych i naszych Partnerów, wyraź zgodę dodatkową i zaznacz odpowiednie pole. Wyrażam zgodę na przetwarzanie moich danych osobowych przez administratora, którym jest Pracownia Projektowa ARCHIPELAG A. Wójciak, R. Wójciak Sp. J. z siedzibą: ul. M. Smoluchowskiego 56/3, 50-372 Wrocław, nr KRS 0000123673, NIP: 897-16-05-744, REGON: 931987209:
Na podstawie art. 13 Rozporządzenia Parlamentu Europejskiego i Rady (UE) 2016/679 z dnia 27 kwietnia 2016 r. w sprawie ochrony osób fizycznych w związku z przetwarzaniem danych osobowych i w sprawie swobodnego przepływu takich danych oraz uchylenia dyrektywy 95/46/WE (RODO) informujemy Cię, że (przeczytaj klauzulę informacyjną):
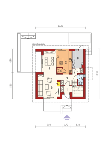
czytaj całość ›Parter
- 1. Wiatrołap + schody 7.95 m²
- 2. Hol + schody 8.29 m²
- 3. Kuchnia 12.86 m²
- 4. Spiżarnia 1.17 m²
- 5. Jadalnia 12.57 m²
- 6. Pokój dzienny 19.64 m²
- 7. Korytarz 2.42 m²
- 8. Toaleta 2.45 m²
- 9. Kotłownia 7.39 m²
Zużycie energii
Wskaźnik EP dla domu z wentylacją grawitacyjną (szczegółowe dane w charakterystyce energetycznej)
Pobierz charakterystykę energetyczną:
Wskaźnik EP określa roczne zapotrzebowanie domu na nieodnawialną energię pierwotną do ogrzewania, wentylacji oraz przygotowania ciepłej wody użytkowej.
Szacunkowy koszt budowy
| STANDARDOWE (uśrednione) [zł] |
||
|---|---|---|
| Stan surowy otwarty: | 216 788 (1) | |
| Stan surowy zamknięty: | 266 816 (1) | |
| Stan deweloperski: | 441 914 (1) | |
| Instalacje wewnętrzne: | 44 191 (1) | |
|
(1) Wyliczone według współczynników (2) Wyliczone według kosztorysu |
||
Opinia eksperta
Forum
Dzienniki budowy
Archipelag dla Ciebie
Polecane technologie
Wypełnij formularz, skontaktujemy się z Tobą.
Zamawiając usługi forum i dzienników budowy, przyjmujesz do wiadomości i wyrażasz zgodę na świadczenie tych usług i przetwarzanie przez Usługodawcę, którym jest Pracownia Projektowa ARCHIPELAG A. Wójciak, R. Wójciak Sp. J., jako Administratora danych, podanych w formularzu danych osobowych, na zasadach wskazanych w Regulaminie i Polityce Prywatności serwisu ARCHIPELAG.pl.
Jeśli chcesz także otrzymywać bonusy i informacje dotyczące akcji promocyjnych naszych i naszych Partnerów, wyraź zgodę dodatkową i zaznacz odpowiednie pole. Wyrażam zgodę na przetwarzanie moich danych osobowych przez administratora, którym jest Pracownia Projektowa ARCHIPELAG A. Wójciak, R. Wójciak Sp. J. z siedzibą: ul. M. Smoluchowskiego 56/3, 50-372 Wrocław, nr KRS 0000123673, NIP: 897-16-05-744, REGON: 931987209:
Na podstawie art. 13 Rozporządzenia Parlamentu Europejskiego i Rady (UE) 2016/679 z dnia 27 kwietnia 2016 r. w sprawie ochrony osób fizycznych w związku z przetwarzaniem danych osobowych i w sprawie swobodnego przepływu takich danych oraz uchylenia dyrektywy 95/46/WE (RODO) informujemy Cię, że (przeczytaj klauzulę informacyjną):
czytaj całość ›





Niewielki z zewnątrz, pojemny wewnątrz - to charakterystyka Mini 5. Budynek z poddaszem użytkowym o zwartej i prostej bryle i prostej konstrukcji. Ascetyczną bryłę urozmaicono podcieniami w parterze przy wejściu do budynku oraz przy wyjściu na taras. Duży kąt pochylenia połaci dachowej umożliwia zorganizowanie wygodnej przestrzeni na poddaszu. O energooszczędności tego budynku decyduje nie tylko zwarta bryła, ale również ściany i dach oraz posadzka na gruncie. Ściany zewnętrzne zaprojektowano z bloczków z betonu komórkowego o grubości 24cm natomiast ściany działowe z bloczków o grubości 12cm. Wszystkie murowane na zaprawę murarską do cienkich spoin. Nad otworami okiennymi i drzwiowymi o szerokości do 180cm można zastosować w ścianach prefabrykowane belki z betonu komórkowego. Precyzyjne i o wysokiej termoizolacji materiały na ściany to rozwiązanie idealne do energooszczędnych budynków. Wiele elementów budynku można wykonać w systemie SOLBET stosując: bloczki, nadproża zbrojone z betonu komórkowego, zaprawę do cienkich spoin 0.1, system ocieplenia SOLBET Termo, tynki wewnętrzne i zewnętrzne oraz inne materiały.
czytaj więcej