Ulubione projekty
Twoja lista jest pusta
Dodano projekt
Usunięto projekt
- Powierzchnia użytkowa 79.62 m²
- Dodatkowo:
- pom. techniczne 4.40 m²
- Powierzchnia zabudowy 69.77 m²
- Pow. netto 100.32 m²
- Kubatura 273.77 m³
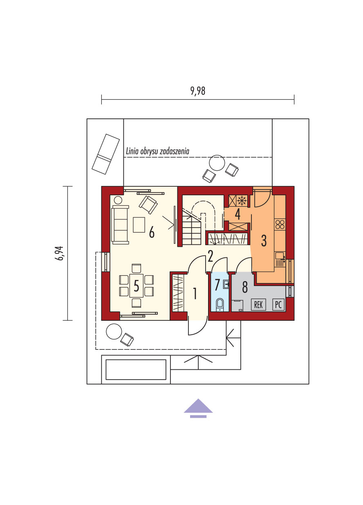
- Wymiary budynku 9.98 × 6.94 m
- Wysokość budynku 8.04 m
- Kąt nachylenia dachu 45o
- Powierzchnia dachu 96 m²
- Minimalne wymiary działki 17.98 x 14.98 m
Cena projektu
4 480 pln
5 600 pln
Brak plików do pobrania dla tego projektu
Zapytaj o dodatkowe plikiZadaj pytanie do projektu Mini 21 (wersja C) PLUS
Jesteś zainteresowany/a tym projektem? Architekt dyżurny przygotuje dla Ciebie materiały z projektu technicznego. Zostaw nam swoje dane, powiadomimy Cię, gdy pliki będą dostępne.
Zamawiając usługi forum i dzienników budowy, przyjmujesz do wiadomości i wyrażasz zgodę na świadczenie tych usług i przetwarzanie przez Usługodawcę, którym jest Pracownia Projektowa ARCHIPELAG A. Wójciak, R. Wójciak Sp. J., jako Administratora danych, podanych w formularzu danych osobowych, na zasadach wskazanych w Regulaminie i Polityce Prywatności serwisu ARCHIPELAG.pl.
Jeśli chcesz także otrzymywać bonusy i informacje dotyczące akcji promocyjnych naszych i naszych Partnerów, wyraź zgodę dodatkową i zaznacz odpowiednie pole. Wyrażam zgodę na przetwarzanie moich danych osobowych przez administratora, którym jest Pracownia Projektowa ARCHIPELAG A. Wójciak, R. Wójciak Sp. J. z siedzibą: ul. M. Smoluchowskiego 56/3, 50-372 Wrocław, nr KRS 0000123673, NIP: 897-16-05-744, REGON: 931987209:
Na podstawie art. 13 Rozporządzenia Parlamentu Europejskiego i Rady (UE) 2016/679 z dnia 27 kwietnia 2016 r. w sprawie ochrony osób fizycznych w związku z przetwarzaniem danych osobowych i w sprawie swobodnego przepływu takich danych oraz uchylenia dyrektywy 95/46/WE (RODO) informujemy Cię, że (przeczytaj klauzulę informacyjną):
czytaj całość ›Parter
- 1. Wiatrołap 3.57 m²
- 2. Hol + schody 11.18 m²
- 3. Kuchnia 8.14 m²
- 4. Spiżarnia 1.76 m²
- 5. Jadalnia 6.35 m²
- 6. Pokój dzienny 13.85 m²
- 7. Toaleta 1.91 m²
- 8. Pom. techniczne 4.40 m²
Szacunkowy koszt budowy
| STANDARDOWE (uśrednione) [zł] |
||
|---|---|---|
| Stan surowy otwarty: | 130 416 (1) | |
| Stan surowy zamknięty: | 160 512 (1) | |
| Stan deweloperski: | 265 848 (1) | |
|
(1) Wyliczone według współczynników (2) Wyliczone według kosztorysu |
||
Elewacje
Opinia eksperta
Forum
Dzienniki budowy
Archipelag dla Ciebie
Polecane technologie
Wypełnij formularz, skontaktujemy się z Tobą.
Zamawiając usługi forum i dzienników budowy, przyjmujesz do wiadomości i wyrażasz zgodę na świadczenie tych usług i przetwarzanie przez Usługodawcę, którym jest Pracownia Projektowa ARCHIPELAG A. Wójciak, R. Wójciak Sp. J., jako Administratora danych, podanych w formularzu danych osobowych, na zasadach wskazanych w Regulaminie i Polityce Prywatności serwisu ARCHIPELAG.pl.
Jeśli chcesz także otrzymywać bonusy i informacje dotyczące akcji promocyjnych naszych i naszych Partnerów, wyraź zgodę dodatkową i zaznacz odpowiednie pole. Wyrażam zgodę na przetwarzanie moich danych osobowych przez administratora, którym jest Pracownia Projektowa ARCHIPELAG A. Wójciak, R. Wójciak Sp. J. z siedzibą: ul. M. Smoluchowskiego 56/3, 50-372 Wrocław, nr KRS 0000123673, NIP: 897-16-05-744, REGON: 931987209:
Na podstawie art. 13 Rozporządzenia Parlamentu Europejskiego i Rady (UE) 2016/679 z dnia 27 kwietnia 2016 r. w sprawie ochrony osób fizycznych w związku z przetwarzaniem danych osobowych i w sprawie swobodnego przepływu takich danych oraz uchylenia dyrektywy 95/46/WE (RODO) informujemy Cię, że (przeczytaj klauzulę informacyjną):
czytaj całość ›











Ogrzewanie podłogowe ze względu na wysoką efektywność energetyczną i komfort użytkowania cieszy się rosnącą popularnością w nowoczesnym budownictwie jednorodzinnym. Doskonale współpracuje z niskotemperaturowymi źródłami ciepła oraz jest polecane alergikom. Produkty PURMO pozwalają zastosować kompletny system ogrzewania lub chłodzenia płaszczyznowego. Elastyczność i wytrzymałość zapewnia rura PEXPENTA PE-Xc z barierą antydyfuzyjną w środku ścianki. Firma Purmo daje na nią aż 30 lat gwarancji. Rurę mocuje się klipsami do izolacji ROLLJET EPS100 z folią z siatką kotwiącą. Układanie przy pomocy takera jest szybkie i precyzyjne. Należy pamiętać o zastosowaniu elementów takich jak taśmy brzegowe i dylatacyjne czy peszle ochronne. Prawidłowy montaż zapewnia trwałość i bezpieczeństwo instalacji. Fabrycznie zmontowany rozdzielacz ze stali nierdzewnej PREMIUM LINE z pełnym wyposażeniem stanowi serce układu. Dostępny jest w zakresie od 2 do 12 obiegów co umożliwia elastyczne dopasowanie do instalacji. Mózgiem zaś można nazwać system automatyki Unisenza (przewodowy) lub Unisenza PLUS (bezprzewodowy) - od źródeł ciepła i termostatów, przez systemy wodne, po grzejniki elektryczne, wszystkie połączone produkty grzewcze i chłodzące można łatwo monitorować i kontrolować za pośrednictwem jednej platformy, gdziekolwiek i kiedykolwiek jest to potrzebne.
czytaj więcej