Ulubione projekty

Twoja lista jest pusta

Dodano projekt

Usunięto projekt

Martusia

1 750 pln

3 500 pln

Znajdź projekt domu
Powierzchnia [m²]
Projekt domu Martusia - Projekty domów ARCHIPELAG - Martusia - wizualizacja frontowa
Autor: Eryk T. Jankowski, Artur Wójciak

Martusia

 

  • Wersja:
    • 1
  • Powierzchnia użytkowa 79.68 m²
  • Dodatkowo:
  • kotłownia 3.71 m²
  • Powierzchnia zabudowy 70.11 m²
  • Pow. netto 108.07 m²
  • Kubatura 256.80 m³
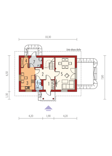
  • Wymiary budynku 10.30 × 7.80 m
  • Wysokość budynku 7.76 m
  • Kąt nachylenia dachu 45o
  • Powierzchnia dachu 142 m²
  • Minimalne wymiary działki 19.50 x 16.50 m

Cena projektu

1 750 pln

3 500 pln

Zaloguj się aby pobrać plik
Przypomnij hasło
Zadaj pytanie do projektu Martusia

Jesteś zainteresowany/a tym projektem? Architekt dyżurny przygotuje dla Ciebie materiały z projektu technicznego. Zostaw nam swoje dane, powiadomimy Cię, gdy pliki będą dostępne.

Zamawiając usługi forum i dzienników budowy, przyjmujesz do wiadomości i wyrażasz zgodę na świadczenie tych usług i przetwarzanie przez Usługodawcę, którym jest Pracownia Projektowa ARCHIPELAG A. Wójciak, R. Wójciak Sp. J., jako Administratora danych, podanych w formularzu danych osobowych, na zasadach wskazanych w Regulaminie i Polityce Prywatności serwisu ARCHIPELAG.pl.

Jeśli chcesz także otrzymywać bonusy i informacje dotyczące akcji promocyjnych naszych i naszych Partnerów, wyraź zgodę dodatkową i zaznacz odpowiednie pole. Wyrażam zgodę na przetwarzanie moich danych osobowych przez administratora, którym jest Pracownia Projektowa ARCHIPELAG A. Wójciak, R. Wójciak Sp. J. z siedzibą: ul. M. Smoluchowskiego 56/3, 50-372 Wrocław, nr KRS 0000123673, NIP: 897-16-05-744, REGON: 931987209:

Na podstawie art. 13 Rozporządzenia Parlamentu Europejskiego i Rady (UE) 2016/679 z dnia 27 kwietnia 2016 r. w sprawie ochrony osób fizycznych w związku z przetwarzaniem danych osobowych i w sprawie swobodnego przepływu takich danych oraz uchylenia dyrektywy 95/46/WE (RODO) informujemy Cię, że (przeczytaj klauzulę informacyjną):

czytaj całość ›
Pola oznaczone gwiazdką (*) są obowiązkowe do wypełnienia

Parter

  • 1. Wiatrołap 3.41 m²
  • 2. Hol + schody 10.58 m²
  • 3. Kuchnia 9.29 m²
  • 4. Spiżarnia 2.24 m²
  • 5. Pokój dzienny 19.79 m²
  • 6. Toaleta 2.13 m²
  • 7. Kotłownia 3.71 m²

Poddasze

  • 1. Korytarz 4.03 m²
  • 2. Sypialnia 13.07 m²
  • 3. Sypialnia 6.78 m²
  • 4. Sypialnia 6.89 m²
  • 5. Łazienka 1.47 m²

Więcej o projekcie domu Martusia

Martusia to przytulny i rodzinny dom, który z powodzeniem odnajdzie się na każdej, nawet bardzo wąskiej działce. Ze względu na swoją prostą konstrukcję, projekt jest szybki i tani w budowie, posiada przy tym świetnie zorganizowany układ funkcjonalny, który maksymalnie wykorzystuje powierzchnię użytkową, zapewniając domownikom najwyższy komfort i niezbędne poczucie prywatności.

Budowa zgodna z zastosowaną w dokumentacji technicznej izolacją termiczną i materiałami konstrukcyjnymi gwarantuje:
- założoną izolacyjność cieplną i akustyczną przegród budowlanych
- odpowiednią wytrzymałość i odporność ścian na działanie czynników atmosferycznych
- właściwy bilans energetyczny oraz wymagane przepisami parametry sprawności energetycznej budynku
- komfort termiczny: izolacja od zimna, gorąca i hałasu
- komfort użytkowania, jakość i bezpieczeństwo
- zdrowy mikroklimat wnętrz, czyli zdrowy dom

czytaj więcej

Usytuowanie na działce

Schemat przekroju

Zużycie energii

Projekt domu zgodny z przepisami WT 2017

Wskaźnik EP dla domu z wentylacją grawitacyjną (szczegółowe dane w charakterystyce energetycznej)

EP = 94.40 kWh/m2*rok

Pobierz charakterystykę energetyczną:

Wskaźnik EP określa roczne zapotrzebowanie domu na nieodnawialną energię pierwotną do ogrzewania, wentylacji oraz przygotowania ciepłej wody użytkowej.

Szacunkowy koszt budowy

  STANDARDOWE
(uśrednione)
[zł]
Stan surowy otwarty: 140 491 (1)
Stan surowy zamknięty: 172 912 (1)
Stan deweloperski: 286 385 (1)
Instalacje wewnętrzne: 28 638 (1)

(1) Wyliczone według współczynników

(2) Wyliczone według kosztorysu

Elewacje

frontowa

lewa

tylna

prawa

Forum (1)

Ostatnie tematy:

Dzienniki budowy

liwiusz

  • Ława i fundament 2009-05-15
  • Martusia 2009-05-13

Realizacje(1)

Podobne projekty domów

Archipelag dla Ciebie

Polecane technologie

Bezpłatna pomoc architekta

Wypełnij formularz, skontaktujemy się z Tobą.

Zamawiając usługi forum i dzienników budowy, przyjmujesz do wiadomości i wyrażasz zgodę na świadczenie tych usług i przetwarzanie przez Usługodawcę, którym jest Pracownia Projektowa ARCHIPELAG A. Wójciak, R. Wójciak Sp. J., jako Administratora danych, podanych w formularzu danych osobowych, na zasadach wskazanych w Regulaminie i Polityce Prywatności serwisu ARCHIPELAG.pl.

Jeśli chcesz także otrzymywać bonusy i informacje dotyczące akcji promocyjnych naszych i naszych Partnerów, wyraź zgodę dodatkową i zaznacz odpowiednie pole. Wyrażam zgodę na przetwarzanie moich danych osobowych przez administratora, którym jest Pracownia Projektowa ARCHIPELAG A. Wójciak, R. Wójciak Sp. J. z siedzibą: ul. M. Smoluchowskiego 56/3, 50-372 Wrocław, nr KRS 0000123673, NIP: 897-16-05-744, REGON: 931987209:

Na podstawie art. 13 Rozporządzenia Parlamentu Europejskiego i Rady (UE) 2016/679 z dnia 27 kwietnia 2016 r. w sprawie ochrony osób fizycznych w związku z przetwarzaniem danych osobowych i w sprawie swobodnego przepływu takich danych oraz uchylenia dyrektywy 95/46/WE (RODO) informujemy Cię, że (przeczytaj klauzulę informacyjną):

czytaj całość ›
Pola oznaczone gwiazdką (*) są obowiązkowe do wypełnienia