Ulubione projekty
Twoja lista jest pusta
Dodano projekt
Usunięto projekt
- Powierzchnia użytkowa 138.18 m²
- Dodatkowo:
- kotłownia 7.97 m²
- garaż 32.58 m²
- poddasze do adaptacji 87.78 m²
- Powierzchnia zabudowy 239.22 m²
- Pow. netto 198.78 m²
- Kubatura 533.95 m³
- Wymiary budynku 14.40 × 22.80 m
- Wysokość budynku 7.69 m
- Kąt nachylenia dachu 30o
- Powierzchnia dachu 328 m²
- Minimalne wymiary działki 22.40 x 32.80 m
Cena projektu
4 080 pln
5 100 pln
- Katalogowa karta projektu (757 KB)
- Margaret G2 Leca® DOM - charakterystyka energetyczna (wersja domu z wentylacją grawitacyjną)Budynek spełnia wymagania WT2017 (518 KB)
- Margaret G2 Leca® DOM - charakterystyka energetyczna (wersja domu z wentylacją mechaniczną)Budynek spełnia wymagania WT2017 (520 KB)
Zadaj pytanie do projektu Margaret G2 Leca® DOM
Jesteś zainteresowany/a tym projektem? Architekt dyżurny przygotuje dla Ciebie materiały z projektu technicznego. Zostaw nam swoje dane, powiadomimy Cię, gdy pliki będą dostępne.
Zamawiając usługi forum i dzienników budowy, przyjmujesz do wiadomości i wyrażasz zgodę na świadczenie tych usług i przetwarzanie przez Usługodawcę, którym jest Pracownia Projektowa ARCHIPELAG A. Wójciak, R. Wójciak Sp. J., jako Administratora danych, podanych w formularzu danych osobowych, na zasadach wskazanych w Regulaminie i Polityce Prywatności serwisu ARCHIPELAG.pl.
Jeśli chcesz także otrzymywać bonusy i informacje dotyczące akcji promocyjnych naszych i naszych Partnerów, wyraź zgodę dodatkową i zaznacz odpowiednie pole. Wyrażam zgodę na przetwarzanie moich danych osobowych przez administratora, którym jest Pracownia Projektowa ARCHIPELAG A. Wójciak, R. Wójciak Sp. J. z siedzibą: ul. M. Smoluchowskiego 56/3, 50-372 Wrocław, nr KRS 0000123673, NIP: 897-16-05-744, REGON: 931987209:
Na podstawie art. 13 Rozporządzenia Parlamentu Europejskiego i Rady (UE) 2016/679 z dnia 27 kwietnia 2016 r. w sprawie ochrony osób fizycznych w związku z przetwarzaniem danych osobowych i w sprawie swobodnego przepływu takich danych oraz uchylenia dyrektywy 95/46/WE (RODO) informujemy Cię, że (przeczytaj klauzulę informacyjną):
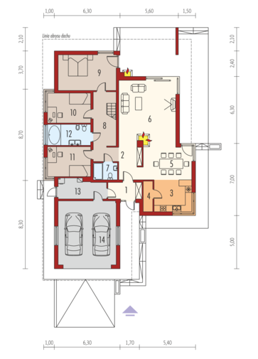
czytaj całość ›Parter
- 1. Wiatrołap 4.88 m²
- 2. Hol 9.98 m²
- 3. Kuchnia 10.55 m²
- 4. Spiżarnia 2.40 m²
- 5. Jadalnia 13.77 m²
- 6. Pokój dzienny 33.21 m²
- 7. Łazienka 3.56 m²
- 8. Korytarz 10.59 m²
- 9. Sypialnia 18.79 m²
- 10. Sypialnia 11.28 m²
- 11. Sypialnia 11.28 m²
- 12. Łazienka 7.89 m²
- 13. Kotłownia 7.97 m²
- 14. Garaż 32.58 m²
Zużycie energii
Wskaźnik EP dla domu z wentylacją grawitacyjną (szczegółowe dane w charakterystyce energetycznej)
Pobierz charakterystykę energetyczną:
Wskaźnik EP określa roczne zapotrzebowanie domu na nieodnawialną energię pierwotną do ogrzewania, wentylacji oraz przygotowania ciepłej wody użytkowej.
Szacunkowy koszt budowy
| STANDARDOWE (uśrednione) [zł] |
||
|---|---|---|
| Stan surowy otwarty: | 258 414 (1) | |
| Stan surowy zamknięty: | 318 048 (1) | |
| Stan deweloperski: | 526 767 (1) | |
| Instalacje wewnętrzne: | 52 676 (1) | |
|
(1) Wyliczone według współczynników (2) Wyliczone według kosztorysu |
||
Opinia eksperta
Forum (3)
Ostatnie tematy:
- Myślisz o... [0] gość, 2016-11-30 14:10
- Domek Margaret [38] gość, 2016-03-18 11:40
- za duży [1] gość, 2011-03-29 06:58
Realizacje(1)
Archipelag dla Ciebie
Polecane technologie
Wypełnij formularz, skontaktujemy się z Tobą.
Zamawiając usługi forum i dzienników budowy, przyjmujesz do wiadomości i wyrażasz zgodę na świadczenie tych usług i przetwarzanie przez Usługodawcę, którym jest Pracownia Projektowa ARCHIPELAG A. Wójciak, R. Wójciak Sp. J., jako Administratora danych, podanych w formularzu danych osobowych, na zasadach wskazanych w Regulaminie i Polityce Prywatności serwisu ARCHIPELAG.pl.
Jeśli chcesz także otrzymywać bonusy i informacje dotyczące akcji promocyjnych naszych i naszych Partnerów, wyraź zgodę dodatkową i zaznacz odpowiednie pole. Wyrażam zgodę na przetwarzanie moich danych osobowych przez administratora, którym jest Pracownia Projektowa ARCHIPELAG A. Wójciak, R. Wójciak Sp. J. z siedzibą: ul. M. Smoluchowskiego 56/3, 50-372 Wrocław, nr KRS 0000123673, NIP: 897-16-05-744, REGON: 931987209:
Na podstawie art. 13 Rozporządzenia Parlamentu Europejskiego i Rady (UE) 2016/679 z dnia 27 kwietnia 2016 r. w sprawie ochrony osób fizycznych w związku z przetwarzaniem danych osobowych i w sprawie swobodnego przepływu takich danych oraz uchylenia dyrektywy 95/46/WE (RODO) informujemy Cię, że (przeczytaj klauzulę informacyjną):
czytaj całość ›


Margaret G2 Leca® DOM to dom, który z pewnością będzie się wyróżniał spośród setek innych domów w okolicy. Fragmenty ścian wychodzące poza obrys okapu dachu stają się estetycznymi i nowatorskimi elementami charakteryzującymi ten dom. Kominek wewnętrzny usytuowany na środku pomieszczenia, to kolejny nieszablonowy element odróżniający wnętrze tego domu od innych. Sypialnia (11) i przylegająca do niej łazienka (7) w przyszłości pozwolą na łatwe wydzielenie wygodnego mieszkania dla seniora.
czytaj więcej