Ulubione projekty
Twoja lista jest pusta
Dodano projekt
Usunięto projekt
- Powierzchnia użytkowa 139.76 m²
- Dodatkowo:
- kotłownia 10.68 m²
- garaż 33.21 m²
- strych 7.13 m²
- Powierzchnia zabudowy 157.75 m²
- Pow. netto 248.19 m²
- Kubatura 607.79 m³
- Wymiary budynku 16.70 × 9.90 m
- Wysokość budynku 8.99 m
- Kąt nachylenia dachu 42o
- Powierzchnia dachu 255 m²
- Minimalne wymiary działki 23.70 x 17.90 m
Cena projektu
4 160 pln
5 200 pln
- Katalogowa karta projektu (721 KB)
- Marcin G2 - charakterystyka energetyczna (wersja domu z wentylacją grawitacyjną)Budynek spełnia wymagania WT2017 (568 KB)
- Marcin G2 - charakterystyka energetyczna (wersja domu z wentylacją mechaniczną)Budynek spełnia wymagania WT2021 (570 KB)
- Marcin G2 - zestawienie materiałów H+H do budowy domu (246 KB)
- Marcin G2 - - zestawienie materiałów do ocieplenia w kompletnym systemie TERMO ORGANIKA (470 KB)
Zadaj pytanie do projektu Marcin G2
Jesteś zainteresowany/a tym projektem? Architekt dyżurny przygotuje dla Ciebie materiały z projektu technicznego. Zostaw nam swoje dane, powiadomimy Cię, gdy pliki będą dostępne.
Zamawiając usługi forum i dzienników budowy, przyjmujesz do wiadomości i wyrażasz zgodę na świadczenie tych usług i przetwarzanie przez Usługodawcę, którym jest Pracownia Projektowa ARCHIPELAG A. Wójciak, R. Wójciak Sp. J., jako Administratora danych, podanych w formularzu danych osobowych, na zasadach wskazanych w Regulaminie i Polityce Prywatności serwisu ARCHIPELAG.pl.
Jeśli chcesz także otrzymywać bonusy i informacje dotyczące akcji promocyjnych naszych i naszych Partnerów, wyraź zgodę dodatkową i zaznacz odpowiednie pole. Wyrażam zgodę na przetwarzanie moich danych osobowych przez administratora, którym jest Pracownia Projektowa ARCHIPELAG A. Wójciak, R. Wójciak Sp. J. z siedzibą: ul. M. Smoluchowskiego 56/3, 50-372 Wrocław, nr KRS 0000123673, NIP: 897-16-05-744, REGON: 931987209:
Na podstawie art. 13 Rozporządzenia Parlamentu Europejskiego i Rady (UE) 2016/679 z dnia 27 kwietnia 2016 r. w sprawie ochrony osób fizycznych w związku z przetwarzaniem danych osobowych i w sprawie swobodnego przepływu takich danych oraz uchylenia dyrektywy 95/46/WE (RODO) informujemy Cię, że (przeczytaj klauzulę informacyjną):
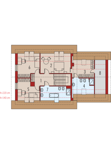
czytaj całość ›Parter
- 1. Wiatrołap 2.97 m²
- 2. Hol + schody 14.64 m²
- 3. Kuchnia 7.88 m²
- 4. Spiżarnia 1.42 m²
- 5. Pokój dzienny 27.96 m²
- 6. Gabinet 9.17 m²
- 7. Korytarz 2.70 m²
- 8. Łazienka 2.26 m²
- 9. Pom. gospodarcze 4.59 m²
- 10. Kotłownia 10.68 m²
- 11. Garaż 33.21 m²
Zużycie energii
Wskaźnik EP dla domu z wentylacją grawitacyjną (szczegółowe dane w charakterystyce energetycznej)
Pobierz charakterystykę energetyczną:
Wskaźnik EP określa roczne zapotrzebowanie domu na nieodnawialną energię pierwotną do ogrzewania, wentylacji oraz przygotowania ciepłej wody użytkowej.
Szacunkowy koszt budowy
| STANDARDOWE (uśrednione) [zł] |
||
|---|---|---|
| Stan surowy otwarty: | 322 647 (1) | |
| Stan surowy zamknięty: | 397 104 (1) | |
| Stan deweloperski: | 657 703 (1) | |
| Instalacje wewnętrzne: | 65 770 (1) | |
|
(1) Wyliczone według współczynników (2) Wyliczone według kosztorysu |
||
Opinia eksperta
Forum (1)
Ostatnie tematy:
- Czy ktos zakupil i... [5] gość, 2018-08-16 15:43
Dzienniki budowy
Archipelag dla Ciebie
Polecane technologie
Wypełnij formularz, skontaktujemy się z Tobą.
Zamawiając usługi forum i dzienników budowy, przyjmujesz do wiadomości i wyrażasz zgodę na świadczenie tych usług i przetwarzanie przez Usługodawcę, którym jest Pracownia Projektowa ARCHIPELAG A. Wójciak, R. Wójciak Sp. J., jako Administratora danych, podanych w formularzu danych osobowych, na zasadach wskazanych w Regulaminie i Polityce Prywatności serwisu ARCHIPELAG.pl.
Jeśli chcesz także otrzymywać bonusy i informacje dotyczące akcji promocyjnych naszych i naszych Partnerów, wyraź zgodę dodatkową i zaznacz odpowiednie pole. Wyrażam zgodę na przetwarzanie moich danych osobowych przez administratora, którym jest Pracownia Projektowa ARCHIPELAG A. Wójciak, R. Wójciak Sp. J. z siedzibą: ul. M. Smoluchowskiego 56/3, 50-372 Wrocław, nr KRS 0000123673, NIP: 897-16-05-744, REGON: 931987209:
Na podstawie art. 13 Rozporządzenia Parlamentu Europejskiego i Rady (UE) 2016/679 z dnia 27 kwietnia 2016 r. w sprawie ochrony osób fizycznych w związku z przetwarzaniem danych osobowych i w sprawie swobodnego przepływu takich danych oraz uchylenia dyrektywy 95/46/WE (RODO) informujemy Cię, że (przeczytaj klauzulę informacyjną):
czytaj całość ›



Nowoczesny, dwubryłowy projekt budynku z dachem dwuspadowym. Ciekawy wizualnie projekt podkreślają wkomponowane w połać dachu kompleksy okien połaciowych oraz drewniane detale elewacji. Nowoczesność budynku wyraża się również w doborze energooszczędnych technologii ściennych. Jako podstawę konstrukcji budynku użyto Systemu Budowy H+H, który oparty jest o bloczki H+H PP4-0,50 wyprodukowane w systemie pióro-wpust oraz tolerancji wymiarowej ± 1 mm. Dzięki tym właściwościom otrzymujemy materiał ścienny przeznaczony do murowania na zaprawie do cienkich spoin gr. 1÷2 mm, co tworzy ścianę praktycznie pozbawioną mostków termicznych.
czytaj więcej