Ulubione projekty
Twoja lista jest pusta
Dodano projekt
Usunięto projekt
- Powierzchnia użytkowa 128.96 m²
- Dodatkowo:
- kotłownia 12.63 m²
- garaż 33.86 m²
- poddasze do adaptacji 68.64 m²
- Powierzchnia zabudowy 232.71 m²
- Pow. netto 195.66 m²
- Kubatura 521.50 m³
- Wymiary budynku 16.20 × 17.20 m
- Wysokość budynku 7.59 m
- Kąt nachylenia dachu 30o
- Powierzchnia dachu 316 m²
- Minimalne wymiary działki 24.20 x 25.20 m
Cena projektu
4 400 pln
5 500 pln
- Katalogowa karta projektu (773 KB)
- Marcel II G2 - charakterystyka energetyczna (wersja domu z wentylacją grawitacyjną)Budynek spełnia wymagania WT2017 (462 KB)
- Marcel II G2 - charakterystyka energetyczna (wersja domu z wentylacją mechaniczną)Budynek spełnia wymagania WT2021 (463 KB)
- Marcel II G2 - projekt prefabrykowanej więźby dachowej (4004 KB)
- Marcel II G2 - zestawienie płyt elewacyjnych firmy PRODEMA (149 KB)
- Marcel II G2 - zestawienie materiałów H+H (194 KB)
- Marcel II G2 - proponowane zestawienie materiałów ociepleniowych w kompletnym systemie TERMO ORGANIKA (769 KB)
- Deimic - system inteligentnego domu (564 KB)
Zadaj pytanie do projektu Marcel II G2
Jesteś zainteresowany/a tym projektem? Architekt dyżurny przygotuje dla Ciebie materiały z projektu technicznego. Zostaw nam swoje dane, powiadomimy Cię, gdy pliki będą dostępne.
Zamawiając usługi forum i dzienników budowy, przyjmujesz do wiadomości i wyrażasz zgodę na świadczenie tych usług i przetwarzanie przez Usługodawcę, którym jest Pracownia Projektowa ARCHIPELAG A. Wójciak, R. Wójciak Sp. J., jako Administratora danych, podanych w formularzu danych osobowych, na zasadach wskazanych w Regulaminie i Polityce Prywatności serwisu ARCHIPELAG.pl.
Jeśli chcesz także otrzymywać bonusy i informacje dotyczące akcji promocyjnych naszych i naszych Partnerów, wyraź zgodę dodatkową i zaznacz odpowiednie pole. Wyrażam zgodę na przetwarzanie moich danych osobowych przez administratora, którym jest Pracownia Projektowa ARCHIPELAG A. Wójciak, R. Wójciak Sp. J. z siedzibą: ul. M. Smoluchowskiego 56/3, 50-372 Wrocław, nr KRS 0000123673, NIP: 897-16-05-744, REGON: 931987209:
Na podstawie art. 13 Rozporządzenia Parlamentu Europejskiego i Rady (UE) 2016/679 z dnia 27 kwietnia 2016 r. w sprawie ochrony osób fizycznych w związku z przetwarzaniem danych osobowych i w sprawie swobodnego przepływu takich danych oraz uchylenia dyrektywy 95/46/WE (RODO) informujemy Cię, że (przeczytaj klauzulę informacyjną):
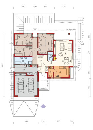
czytaj całość ›Parter
- 1. Wiatrołap 3.72 m²
- 2. Hol + schody 10.09 m²
- 3. Kuchnia 11.48 m²
- 4. Spiżarnia 3.53 m²
- 5. Pokój dzienny 31.69 m²
- 6. Łazienka 3.08 m²
- 7. Korytarz 10.38 m²
- 8. Sypialnia 19.75 m²
- 9. Sypialnia 12.91 m²
- 10. Sypialnia 12.91 m²
- 11. Łazienka 9.42 m²
- 12. Kotłownia 12.63 m²
- 13. Garaż 33.86 m²
Zużycie energii
Wskaźnik EP dla domu z wentylacją grawitacyjną (szczegółowe dane w charakterystyce energetycznej)
Pobierz charakterystykę energetyczną:
Wskaźnik EP określa roczne zapotrzebowanie domu na nieodnawialną energię pierwotną do ogrzewania, wentylacji oraz przygotowania ciepłej wody użytkowej.
Szacunkowy koszt budowy
| STANDARDOWE (uśrednione) [zł] |
||
|---|---|---|
| Stan surowy otwarty: | 254 358 (1) | |
| Stan surowy zamknięty: | 313 056 (1) | |
| Stan deweloperski: | 518 499 (1) | |
| Instalacje wewnętrzne: | 51 849 (1) | |
|
(1) Wyliczone według współczynników (2) Wyliczone według kosztorysu |
||
Opinia eksperta
Forum (1)
Ostatnie tematy:
- Myślisz o... [0] gość, 2016-12-01 10:30
Archipelag dla Ciebie
Polecane technologie
Wypełnij formularz, skontaktujemy się z Tobą.
Zamawiając usługi forum i dzienników budowy, przyjmujesz do wiadomości i wyrażasz zgodę na świadczenie tych usług i przetwarzanie przez Usługodawcę, którym jest Pracownia Projektowa ARCHIPELAG A. Wójciak, R. Wójciak Sp. J., jako Administratora danych, podanych w formularzu danych osobowych, na zasadach wskazanych w Regulaminie i Polityce Prywatności serwisu ARCHIPELAG.pl.
Jeśli chcesz także otrzymywać bonusy i informacje dotyczące akcji promocyjnych naszych i naszych Partnerów, wyraź zgodę dodatkową i zaznacz odpowiednie pole. Wyrażam zgodę na przetwarzanie moich danych osobowych przez administratora, którym jest Pracownia Projektowa ARCHIPELAG A. Wójciak, R. Wójciak Sp. J. z siedzibą: ul. M. Smoluchowskiego 56/3, 50-372 Wrocław, nr KRS 0000123673, NIP: 897-16-05-744, REGON: 931987209:
Na podstawie art. 13 Rozporządzenia Parlamentu Europejskiego i Rady (UE) 2016/679 z dnia 27 kwietnia 2016 r. w sprawie ochrony osób fizycznych w związku z przetwarzaniem danych osobowych i w sprawie swobodnego przepływu takich danych oraz uchylenia dyrektywy 95/46/WE (RODO) informujemy Cię, że (przeczytaj klauzulę informacyjną):
czytaj całość ›




W tym domu na pewno będzie dużo dziennego światła. Przeszklone drzwi i okna o wysokości ok. 2 m w większości pomieszczeń pozwalają na wykorzystanie naturalnego światła w stopniu znacznie większym niż w przypadku innych domów. Możliwość zagospodarowania poddasza na cele siłowni, czy pokoju do realizacji hobby mieszkańców, rozszerza funkcjonalność i możliwości rozmaitego zaaranżowania tych pomieszczeń.
czytaj więcej