Ulubione projekty
Twoja lista jest pusta
Dodano projekt
Usunięto projekt
- Powierzchnia użytkowa 117.46 m²
- Dodatkowo:
- kotłownia 6.88 m²
- garaż 17.85 m²
- Powierzchnia zabudowy 104.71 m²
- Pow. netto 171.24 m²
- Kubatura 430.95 m³
- Wymiary budynku 8.04 × 13.49 m
- Wysokość budynku 9.76 m
- Kąt nachylenia dachu 38o (3°)
- Powierzchnia dachu 117 m²
- Minimalne wymiary działki 12.05 x 21.49 m
Cena projektu
6 720 pln
8 400 pln
- Lukas II G1 w. A (bliźniak) - charakterystyka energetyczna (wersja domu z wentylacją grawitacyjną)Budynek spełnia wymagania WT2021 (539 KB)
- Lukas II G1 w. A (bliźniak) - charakterystyka energetyczna (wersja domu z wentylacją mechaniczną)Budynek spełnia wymagania WT2021 (534 KB)
- Lukas II G1 (w.A) - materiały z projektu technicznego (890 KB)
- Lukas II G1 (w.A) - materiały z projektu technicznego (odbicie lustrzane) (889 KB)
Zadaj pytanie do projektu Lukas II G1 wersja A (bliźniak)
Jesteś zainteresowany/a tym projektem? Architekt dyżurny przygotuje dla Ciebie materiały z projektu technicznego. Zostaw nam swoje dane, powiadomimy Cię, gdy pliki będą dostępne.
Zamawiając usługi forum i dzienników budowy, przyjmujesz do wiadomości i wyrażasz zgodę na świadczenie tych usług i przetwarzanie przez Usługodawcę, którym jest Pracownia Projektowa ARCHIPELAG A. Wójciak, R. Wójciak Sp. J., jako Administratora danych, podanych w formularzu danych osobowych, na zasadach wskazanych w Regulaminie i Polityce Prywatności serwisu ARCHIPELAG.pl.
Jeśli chcesz także otrzymywać bonusy i informacje dotyczące akcji promocyjnych naszych i naszych Partnerów, wyraź zgodę dodatkową i zaznacz odpowiednie pole. Wyrażam zgodę na przetwarzanie moich danych osobowych przez administratora, którym jest Pracownia Projektowa ARCHIPELAG A. Wójciak, R. Wójciak Sp. J. z siedzibą: ul. M. Smoluchowskiego 56/3, 50-372 Wrocław, nr KRS 0000123673, NIP: 897-16-05-744, REGON: 931987209:
Na podstawie art. 13 Rozporządzenia Parlamentu Europejskiego i Rady (UE) 2016/679 z dnia 27 kwietnia 2016 r. w sprawie ochrony osób fizycznych w związku z przetwarzaniem danych osobowych i w sprawie swobodnego przepływu takich danych oraz uchylenia dyrektywy 95/46/WE (RODO) informujemy Cię, że (przeczytaj klauzulę informacyjną):
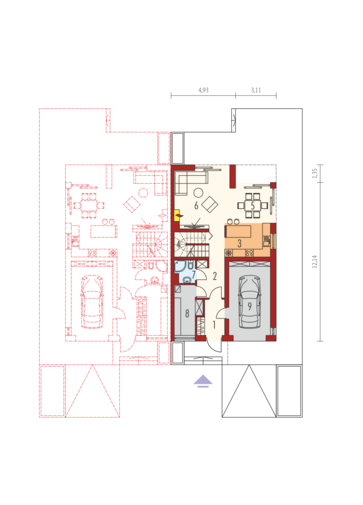
czytaj całość ›Parter
- 1. Wiatrołap 4.86 m²
- 2. Hol + schody 10.84 m²
- 3. Kuchnia 8.21 m²
- 4. Spiżarnia 2.18 m²
- 5. Jadalnia 8.82 m²
- 6. Pokój dzienny 18.75 m²
- 7. Łazienka 2.47 m²
- 8. Kotłownia 6.88 m²
- 9. Garaż 17.85 m²
Zużycie energii
Wskaźnik EP dla domu z wentylacją grawitacyjną (szczegółowe dane w charakterystyce energetycznej)
Pobierz charakterystykę energetyczną:
Wskaźnik EP określa roczne zapotrzebowanie domu na nieodnawialną energię pierwotną do ogrzewania, wentylacji oraz przygotowania ciepłej wody użytkowej.
Szacunkowy koszt budowy
| STANDARDOWE (uśrednione) [zł] |
||
|---|---|---|
| Stan surowy otwarty: | 222 612 (1) | |
| Stan surowy zamknięty: | 273 984 (1) | |
| Stan deweloperski: | 453 786 (1) | |
| Instalacje wewnętrzne: | 45 378 (1) | |
|
(1) Wyliczone według współczynników (2) Wyliczone według kosztorysu |
||
Opinia eksperta
Forum
Dzienniki budowy
Archipelag dla Ciebie
Polecane technologie
Wypełnij formularz, skontaktujemy się z Tobą.
Zamawiając usługi forum i dzienników budowy, przyjmujesz do wiadomości i wyrażasz zgodę na świadczenie tych usług i przetwarzanie przez Usługodawcę, którym jest Pracownia Projektowa ARCHIPELAG A. Wójciak, R. Wójciak Sp. J., jako Administratora danych, podanych w formularzu danych osobowych, na zasadach wskazanych w Regulaminie i Polityce Prywatności serwisu ARCHIPELAG.pl.
Jeśli chcesz także otrzymywać bonusy i informacje dotyczące akcji promocyjnych naszych i naszych Partnerów, wyraź zgodę dodatkową i zaznacz odpowiednie pole. Wyrażam zgodę na przetwarzanie moich danych osobowych przez administratora, którym jest Pracownia Projektowa ARCHIPELAG A. Wójciak, R. Wójciak Sp. J. z siedzibą: ul. M. Smoluchowskiego 56/3, 50-372 Wrocław, nr KRS 0000123673, NIP: 897-16-05-744, REGON: 931987209:
Na podstawie art. 13 Rozporządzenia Parlamentu Europejskiego i Rady (UE) 2016/679 z dnia 27 kwietnia 2016 r. w sprawie ochrony osób fizycznych w związku z przetwarzaniem danych osobowych i w sprawie swobodnego przepływu takich danych oraz uchylenia dyrektywy 95/46/WE (RODO) informujemy Cię, że (przeczytaj klauzulę informacyjną):
czytaj całość ›




Dom Lukas II G1 wersja A (bliźniak) to projekt, który docenią osoby poszukujące jasnych i przestronnych wnętrz z doskonałym widokiem na ogród. Okna i drzwi MasterLine 8 od Reynaers Aluminium to rozwiązanie idealnie wpisujące się w założenia tego projektu. Dzięki dużym przeszkleniom wnętrze domu jest maksymalnie doświetlone, co ma pozytywny wpływ na samopoczucie domowników. Co więcej, system MasterLine 8 oferuje doskonałą izolację termiczną i akustyczną, co przekłada się na oszczędność energii i komfort użytkowania. Drzwi podnoszono-przesuwne MasterPatio umożliwiają bezpośrednie przejście z salonu na taras, oferując nie tylko wygodę, ale i imponujące widoki na otaczający ogród.
czytaj więcej