Ulubione projekty
Twoja lista jest pusta
Dodano projekt
Usunięto projekt
- Powierzchnia użytkowa 130.39 m²
- Dodatkowo:
- kotłownia 10.59 m²
- garaż 29.22 m²
- poddasze do adaptacji 58.60 m²
- Powierzchnia zabudowy 232.82 m²
- Pow. netto 355.61 m²
- Kubatura 713.36 m³
- Wymiary budynku 13.60 × 20.80 m
- Wysokość budynku 7.69 m
- Kąt nachylenia dachu 30o
- Powierzchnia dachu 322 m²
- Minimalne wymiary działki 21.60 x 33.10 m
Cena projektu
4 160 pln
5 200 pln
- Katalogowa karta projektu (729 KB)
- Liv 3 G2 MULTI-COMFORT - charakterystyka energetyczna (wersja domu z wentylacją grawitacyjną)Budynek spełnia wymagania WT2021 (519 KB)
- Liv 3 G2 MULTI-COMFORT - charakterystyka energetyczna (wersja domu z wentylacją mechaniczną)Budynek spełnia wymagania WT2021 (519 KB)
- Liv 3 G2 Multi-Comfort - materiały z projektu technicznego (5287 KB)
- Liv 3 G2 Multi-Comfort - materiały z projektu technicznego (odbicie lustrzane) (5320 KB)
- Liv 3 G2 MULTI-COMFORT - zestawienie płyt elewacyjnych firmy PRODEMA (164 KB)
- Deimic - system inteligentnego domu (564 KB)
Zadaj pytanie do projektu Liv 3 G2 MULTI-COMFORT
Jesteś zainteresowany/a tym projektem? Architekt dyżurny przygotuje dla Ciebie materiały z projektu technicznego. Zostaw nam swoje dane, powiadomimy Cię, gdy pliki będą dostępne.
Zamawiając usługi forum i dzienników budowy, przyjmujesz do wiadomości i wyrażasz zgodę na świadczenie tych usług i przetwarzanie przez Usługodawcę, którym jest Pracownia Projektowa ARCHIPELAG A. Wójciak, R. Wójciak Sp. J., jako Administratora danych, podanych w formularzu danych osobowych, na zasadach wskazanych w Regulaminie i Polityce Prywatności serwisu ARCHIPELAG.pl.
Jeśli chcesz także otrzymywać bonusy i informacje dotyczące akcji promocyjnych naszych i naszych Partnerów, wyraź zgodę dodatkową i zaznacz odpowiednie pole. Wyrażam zgodę na przetwarzanie moich danych osobowych przez administratora, którym jest Pracownia Projektowa ARCHIPELAG A. Wójciak, R. Wójciak Sp. J. z siedzibą: ul. M. Smoluchowskiego 56/3, 50-372 Wrocław, nr KRS 0000123673, NIP: 897-16-05-744, REGON: 931987209:
Na podstawie art. 13 Rozporządzenia Parlamentu Europejskiego i Rady (UE) 2016/679 z dnia 27 kwietnia 2016 r. w sprawie ochrony osób fizycznych w związku z przetwarzaniem danych osobowych i w sprawie swobodnego przepływu takich danych oraz uchylenia dyrektywy 95/46/WE (RODO) informujemy Cię, że (przeczytaj klauzulę informacyjną):
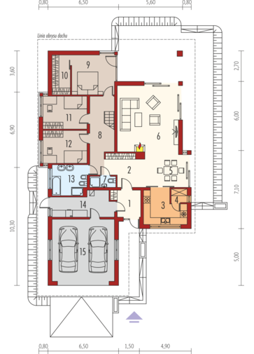
czytaj całość ›Parter
- 1. Wiatrołap 5.54 m²
- 2. Hol 10.47 m²
- 3. Kuchnia 9.90 m²
- 4. Spiżarnia 1.62 m²
- 5. Jadalnia 10.46 m²
- 6. Pokój dzienny 31.34 m²
- 7. Łazienka 2.11 m²
- 8. Korytarz + schody 11.14 m²
- 9. Sypialnia 12.84 m²
- 10. Garderoba 5.45 m²
- 11. Sypialnia 10.92 m²
- 12. Sypialnia 10.92 m²
- 13. Łazienka 7.68 m²
- 14. Kotłownia 10.59 m²
- 15. Garaż 29.22 m²
Zużycie energii
Wskaźnik EP dla domu z wentylacją grawitacyjną (szczegółowe dane w charakterystyce energetycznej)
Pobierz charakterystykę energetyczną:
Wskaźnik EP określa roczne zapotrzebowanie domu na nieodnawialną energię pierwotną do ogrzewania, wentylacji oraz przygotowania ciepłej wody użytkowej.
Szacunkowy koszt budowy
| STANDARDOWE (uśrednione) [zł] |
||
|---|---|---|
| Stan surowy otwarty: | 462 293 (1) | |
| Stan surowy zamknięty: | 568 976 (1) | |
| Stan deweloperski: | 942 366 (1) | |
| Instalacje wewnętrzne: | 94 236 (1) | |
|
(1) Wyliczone według współczynników (2) Wyliczone według kosztorysu |
||
Opinia eksperta
Forum (2)
Ostatnie tematy:
- Myślisz o... [0] gość, 2016-11-30 14:48
- liv3 Multi-Comfort [1] gość, 2014-04-23 10:06
Dzienniki budowy
Archipelag dla Ciebie
Polecane technologie
Wypełnij formularz, skontaktujemy się z Tobą.
Zamawiając usługi forum i dzienników budowy, przyjmujesz do wiadomości i wyrażasz zgodę na świadczenie tych usług i przetwarzanie przez Usługodawcę, którym jest Pracownia Projektowa ARCHIPELAG A. Wójciak, R. Wójciak Sp. J., jako Administratora danych, podanych w formularzu danych osobowych, na zasadach wskazanych w Regulaminie i Polityce Prywatności serwisu ARCHIPELAG.pl.
Jeśli chcesz także otrzymywać bonusy i informacje dotyczące akcji promocyjnych naszych i naszych Partnerów, wyraź zgodę dodatkową i zaznacz odpowiednie pole. Wyrażam zgodę na przetwarzanie moich danych osobowych przez administratora, którym jest Pracownia Projektowa ARCHIPELAG A. Wójciak, R. Wójciak Sp. J. z siedzibą: ul. M. Smoluchowskiego 56/3, 50-372 Wrocław, nr KRS 0000123673, NIP: 897-16-05-744, REGON: 931987209:
Na podstawie art. 13 Rozporządzenia Parlamentu Europejskiego i Rady (UE) 2016/679 z dnia 27 kwietnia 2016 r. w sprawie ochrony osób fizycznych w związku z przetwarzaniem danych osobowych i w sprawie swobodnego przepływu takich danych oraz uchylenia dyrektywy 95/46/WE (RODO) informujemy Cię, że (przeczytaj klauzulę informacyjną):
czytaj całość ›






Projekt Liv 3 G2 MULTI-COMFORT przedstawia nowoczesny i funkcjonalny dom jednorodzinny. Jego ciepły i ekskluzywny obraz nadaje elewacja z naturalnego drewna. Użycie w tym przypadku płyt HPL z naturalną okleiną drewnianą / fornir / firmy Prodema S.A. ma ogromne zalety: 1/ płyta jest całkowicie bezobsługowa, nigdy nie wymaga żadnej impregnacji. 2/ płyta jest wielkoformatowa – 2440 x 1220 mm co daje możliwość pocięcia jej na dowolne rozmiary. 3/ fornir ma dużo bardziej atrakcyjne usłojenie niż klasyczna deska co zapewnia niepowtarzalną i ekskluzywną estetykę 4/ dostępne 9 kolorów okleiny na bazie dwóch fornirów okume i ayous – kolory w katalogu. 5/ możliwość oklejenia drzwi wejściowych i drzwi garażowych tym samym kolorem forniru 6/ możliwa wersja płyty z dwustronnie widocznym fornirem co jest szczególnie istotne w przypadku żaluzji
czytaj więcej