Ulubione projekty
Twoja lista jest pusta
Dodano projekt
Usunięto projekt
- Powierzchnia użytkowa 157.64 m²
- Dodatkowo:
- kotłownia 8.39 m²
- garaż 41.31 m²
- strych 4.29 m²
- Powierzchnia zabudowy 168.85 m²
- Pow. netto 270.21 m²
- Kubatura 651.04 m³
- Wymiary budynku 19.12 × 11.44 m
- Wysokość budynku 8.81 m
- Kąt nachylenia dachu 40o
- Powierzchnia dachu 247 m²
- Minimalne wymiary działki 25.64 x 18.24 m
Cena projektu
4 720 pln
5 900 pln
- Katalogowa karta projektu (784 KB)
- Katrina G2 - charakterystyka energetyczna (wersja domu z wentylacją grawitacyjną)Budynek spełnia wymagania WT2017 (655 KB)
- Katrina G2 - charakterystyka energetyczna (wersja domu z wentylacją mechaniczną)Budynek spełnia wymagania WT2021 (652 KB)
- Katrina G2 - materiały z projektu technicznego (1364 KB)
- Katrina G2 - materiały z projektu technicznego (odbicie lustrzane) (1328 KB)
- ProDeck - system tarasowy TERRA (2189 KB)
- Deimic - system inteligentnego domu (564 KB)
Zadaj pytanie do projektu Katrina G2
Jesteś zainteresowany/a tym projektem? Architekt dyżurny przygotuje dla Ciebie materiały z projektu technicznego. Zostaw nam swoje dane, powiadomimy Cię, gdy pliki będą dostępne.
Zamawiając usługi forum i dzienników budowy, przyjmujesz do wiadomości i wyrażasz zgodę na świadczenie tych usług i przetwarzanie przez Usługodawcę, którym jest Pracownia Projektowa ARCHIPELAG A. Wójciak, R. Wójciak Sp. J., jako Administratora danych, podanych w formularzu danych osobowych, na zasadach wskazanych w Regulaminie i Polityce Prywatności serwisu ARCHIPELAG.pl.
Jeśli chcesz także otrzymywać bonusy i informacje dotyczące akcji promocyjnych naszych i naszych Partnerów, wyraź zgodę dodatkową i zaznacz odpowiednie pole. Wyrażam zgodę na przetwarzanie moich danych osobowych przez administratora, którym jest Pracownia Projektowa ARCHIPELAG A. Wójciak, R. Wójciak Sp. J. z siedzibą: ul. M. Smoluchowskiego 56/3, 50-372 Wrocław, nr KRS 0000123673, NIP: 897-16-05-744, REGON: 931987209:
Na podstawie art. 13 Rozporządzenia Parlamentu Europejskiego i Rady (UE) 2016/679 z dnia 27 kwietnia 2016 r. w sprawie ochrony osób fizycznych w związku z przetwarzaniem danych osobowych i w sprawie swobodnego przepływu takich danych oraz uchylenia dyrektywy 95/46/WE (RODO) informujemy Cię, że (przeczytaj klauzulę informacyjną):
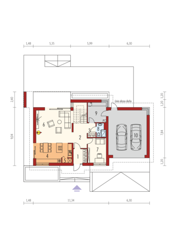
czytaj całość ›Parter
- 1. Wiatrołap 4.43 m²
- 2. Hol + schody 14.78 m²
- 3. Korytarz + garderoba 2.77 m²
- 4. Kuchnia 14.20 m²
- 5. Spiżarnia 1.00 m²
- 6. Pokój dzienny 26.69 m²
- 7. Gabinet 10.96 m²
- 8. Łazienka 2.84 m²
- 9. Kotłownia 8.39 m²
- 10. Garaż 41.31 m²
Zużycie energii
Wskaźnik EP dla domu z wentylacją grawitacyjną (szczegółowe dane w charakterystyce energetycznej)
Pobierz charakterystykę energetyczną:
Wskaźnik EP określa roczne zapotrzebowanie domu na nieodnawialną energię pierwotną do ogrzewania, wentylacji oraz przygotowania ciepłej wody użytkowej.
Szacunkowy koszt budowy
| STANDARDOWE (uśrednione) [zł] |
||
|---|---|---|
| Stan surowy otwarty: | 351 273 (1) | |
| Stan surowy zamknięty: | 432 336 (1) | |
| Stan deweloperski: | 716 056 (1) | |
| Instalacje wewnętrzne: | 71 605 (1) | |
|
(1) Wyliczone według współczynników (2) Wyliczone według kosztorysu |
||
Opinia eksperta
Forum
Dzienniki budowy
Archipelag dla Ciebie
Polecane technologie
Wypełnij formularz, skontaktujemy się z Tobą.
Zamawiając usługi forum i dzienników budowy, przyjmujesz do wiadomości i wyrażasz zgodę na świadczenie tych usług i przetwarzanie przez Usługodawcę, którym jest Pracownia Projektowa ARCHIPELAG A. Wójciak, R. Wójciak Sp. J., jako Administratora danych, podanych w formularzu danych osobowych, na zasadach wskazanych w Regulaminie i Polityce Prywatności serwisu ARCHIPELAG.pl.
Jeśli chcesz także otrzymywać bonusy i informacje dotyczące akcji promocyjnych naszych i naszych Partnerów, wyraź zgodę dodatkową i zaznacz odpowiednie pole. Wyrażam zgodę na przetwarzanie moich danych osobowych przez administratora, którym jest Pracownia Projektowa ARCHIPELAG A. Wójciak, R. Wójciak Sp. J. z siedzibą: ul. M. Smoluchowskiego 56/3, 50-372 Wrocław, nr KRS 0000123673, NIP: 897-16-05-744, REGON: 931987209:
Na podstawie art. 13 Rozporządzenia Parlamentu Europejskiego i Rady (UE) 2016/679 z dnia 27 kwietnia 2016 r. w sprawie ochrony osób fizycznych w związku z przetwarzaniem danych osobowych i w sprawie swobodnego przepływu takich danych oraz uchylenia dyrektywy 95/46/WE (RODO) informujemy Cię, że (przeczytaj klauzulę informacyjną):
czytaj całość ›




Katrina G2 to klasyczny budynek jednorodzinny z garażem w bryle budynku i z poddaszem użytkowym. Na ściany nośne zewnętrzne i wewnętrzne proponujemy zastosować bloczki SOLBET o grubości 24cm. Mogą to być bloczki Optimal Plus, czyli bloczki profilowane na pióra i wpusty lub bloczki Optimal, profilowane na wpust-wpust lub gładkie (wszystkie wersje są z uchwytami montażowymi. Bloczki Optimal Plus muruje się z wypełnieniem spoin poziomych, natomiast bloczki Optimal z wypełnieniem spoin poziomych i pionowych. Na ściany działowe najlepiej zastosować bloczki SOLBET 12cm. Bloczki można łatwo dopasować do kształtu dachu, czyli wpasowując ściany szczytowe i działowe. Do murowania ścian przyda się zaprawa murarska do cienkich spoin SOLBET 0.1. Do przesklepienia otworów o szerokości do 180cm przydadzą się nadproża zbrojone z betonu komórkowego SOLBET. Na wykończenia warto wybrać systemową chemię budowlaną w postaci tynków wewnętrznych i zewnętrznych, systemu ociepleń, klejów, gładzi oraz podkładów podłogowych i tarasowych. Prawie cały dom w systemie SOLBET.
czytaj więcej