Ulubione projekty
Twoja lista jest pusta
Dodano projekt
Usunięto projekt
- Powierzchnia użytkowa 149.28 m²
- Dodatkowo:
- kotłownia 12.56 m²
- garaż 33.67 m²
- Powierzchnia zabudowy 239.80 m²
- Pow. netto 203.74 m²
- Kubatura 573.22 m³
- Wymiary budynku 13.79 × 21.49 m
- Wysokość budynku 4.25 m
- Kąt nachylenia dachu 2o
- Powierzchnia dachu 230 m²
- Minimalne wymiary działki 21.79 x 29.49 m
Cena projektu
4 560 pln
5 700 pln
- Katalogowa karta projektu (656 KB)
- EX 21 G2 soft - charakterystyka energetyczna (wersja domu z wentylacją grawitacyjną)Budynek spełnia wymagania WT2021 (527 KB)
- EX 21 G2 soft - charakterystyka energetyczna (wersja domu z wentylacją mechaniczną)Budynek spełnia wymagania WT2021 (528 KB)
- EX 21 G2 soft - materiały z projektu technicznegoBudynek spełnia wymagania WT2021 (599 KB)
- ProDeck - system tarasowy TERRA (2189 KB)
Zadaj pytanie do projektu EX 21 G2 soft
Jesteś zainteresowany/a tym projektem? Architekt dyżurny przygotuje dla Ciebie materiały z projektu technicznego. Zostaw nam swoje dane, powiadomimy Cię, gdy pliki będą dostępne.
Zamawiając usługi forum i dzienników budowy, przyjmujesz do wiadomości i wyrażasz zgodę na świadczenie tych usług i przetwarzanie przez Usługodawcę, którym jest Pracownia Projektowa ARCHIPELAG A. Wójciak, R. Wójciak Sp. J., jako Administratora danych, podanych w formularzu danych osobowych, na zasadach wskazanych w Regulaminie i Polityce Prywatności serwisu ARCHIPELAG.pl.
Jeśli chcesz także otrzymywać bonusy i informacje dotyczące akcji promocyjnych naszych i naszych Partnerów, wyraź zgodę dodatkową i zaznacz odpowiednie pole. Wyrażam zgodę na przetwarzanie moich danych osobowych przez administratora, którym jest Pracownia Projektowa ARCHIPELAG A. Wójciak, R. Wójciak Sp. J. z siedzibą: ul. M. Smoluchowskiego 56/3, 50-372 Wrocław, nr KRS 0000123673, NIP: 897-16-05-744, REGON: 931987209:
Na podstawie art. 13 Rozporządzenia Parlamentu Europejskiego i Rady (UE) 2016/679 z dnia 27 kwietnia 2016 r. w sprawie ochrony osób fizycznych w związku z przetwarzaniem danych osobowych i w sprawie swobodnego przepływu takich danych oraz uchylenia dyrektywy 95/46/WE (RODO) informujemy Cię, że (przeczytaj klauzulę informacyjną):
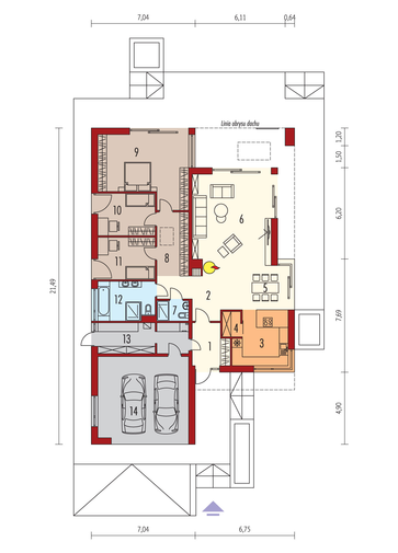
czytaj całość ›Parter
- 1. Wiatrołap 6.71 m²
- 2. Hol 7.31 m²
- 3. Kuchnia 13.00 m²
- 4. Spiżarnia 2.08 m²
- 5. Jadalnia 13.71 m²
- 6. Pokój dzienny 32.77 m²
- 7. Łazienka 2.91 m²
- 8. Korytarz + garderoba 12.56 m²
- 9. Sypialnia 26.40 m²
- 10. Sypialnia 10.99 m²
- 11. Sypialnia 11.01 m²
- 12. Łazienka 9.83 m²
- 13. Kotłownia 12.56 m²
- 14. Garaż 33.67 m²
Zużycie energii
Wskaźnik EP dla domu z wentylacją grawitacyjną (szczegółowe dane w charakterystyce energetycznej)
Pobierz charakterystykę energetyczną:
Wskaźnik EP określa roczne zapotrzebowanie domu na nieodnawialną energię pierwotną do ogrzewania, wentylacji oraz przygotowania ciepłej wody użytkowej.
Szacunkowy koszt budowy
| STANDARDOWE (uśrednione) [zł] |
||
|---|---|---|
| Stan surowy otwarty: | 264 862 (1) | |
| Stan surowy zamknięty: | 325 984 (1) | |
| Stan deweloperski: | 539 911 (1) | |
| Instalacje wewnętrzne: | 53 991 (1) | |
|
(1) Wyliczone według współczynników (2) Wyliczone według kosztorysu |
||
Opinia eksperta
Forum
Dzienniki budowy
Archipelag dla Ciebie
Polecane technologie
Wypełnij formularz, skontaktujemy się z Tobą.
Zamawiając usługi forum i dzienników budowy, przyjmujesz do wiadomości i wyrażasz zgodę na świadczenie tych usług i przetwarzanie przez Usługodawcę, którym jest Pracownia Projektowa ARCHIPELAG A. Wójciak, R. Wójciak Sp. J., jako Administratora danych, podanych w formularzu danych osobowych, na zasadach wskazanych w Regulaminie i Polityce Prywatności serwisu ARCHIPELAG.pl.
Jeśli chcesz także otrzymywać bonusy i informacje dotyczące akcji promocyjnych naszych i naszych Partnerów, wyraź zgodę dodatkową i zaznacz odpowiednie pole. Wyrażam zgodę na przetwarzanie moich danych osobowych przez administratora, którym jest Pracownia Projektowa ARCHIPELAG A. Wójciak, R. Wójciak Sp. J. z siedzibą: ul. M. Smoluchowskiego 56/3, 50-372 Wrocław, nr KRS 0000123673, NIP: 897-16-05-744, REGON: 931987209:
Na podstawie art. 13 Rozporządzenia Parlamentu Europejskiego i Rady (UE) 2016/679 z dnia 27 kwietnia 2016 r. w sprawie ochrony osób fizycznych w związku z przetwarzaniem danych osobowych i w sprawie swobodnego przepływu takich danych oraz uchylenia dyrektywy 95/46/WE (RODO) informujemy Cię, że (przeczytaj klauzulę informacyjną):
czytaj całość ›







W powyższym projekcie domu zastosowany został system okien i drzwi MasterLine 8 od Reynaers Aluminium, który wyróżnia się nie tylko estetyką, ale również funkcjonalnością. Oryginalną ozdobę budynku stanowią drzwi wejściowe z naświetlem bocznym, które zapewniają domownikom bezpieczeństwo, dzięki solidnej konstrukcji i trwałym materiałom. W salonie zastosowano drzwi podnoszono-przesuwne MasterPatio, które charakteryzują się minimalistycznym designem i umożliwiają integrację z różnymi stylami architektonicznymi. Pozwalają na swobodne przejście do ogrodu, tworząc przy tym naturalne przedłużenie strefy dziennej, a dzięki dużym przeszkleniom do wnętrza domu przenika odpowiednia ilość naturalnego światła.
czytaj więcej