Ulubione projekty
Twoja lista jest pusta
Dodano projekt
Usunięto projekt
- Powierzchnia użytkowa 89.19 m²
- Dodatkowo:
- kotłownia 7.08 m²
- wiata samochodowa 30.45 m²
- Powierzchnia zabudowy 173.55 m²
- Pow. netto 148.38 m²
- Kubatura 393.92 m³
- Wymiary budynku 17.56 × 9.94 m
- Wysokość budynku 6.08 m
- Kąt nachylenia dachu 26o
- Powierzchnia dachu 218 m²
- Minimalne wymiary działki 24.56 x 17.94 m
Cena projektu
3 600 pln
4 500 pln
- Katalogowa karta projektu (682 KB)
- Eryk (z wiatą) - charakterystyka energetyczna (wersja domu z wentylacją grawitacyjną)Budynek spełnia wymagania WT2021 (498 KB)
- Eryk (z wiatą) - charakterystyka energetyczna (wersja domu z wentylacją mechaniczną)Budynek spełnia wymagania WT2021 (497 KB)
- NAJWYŻSZA JAKOŚĆ DOKUMENTACJI - widoki elementów konstrukcji domów w 3D (725 KB)
- ProDeck - system tarasowy TERRA (2189 KB)
- Deimic - system inteligentnego domu (564 KB)
Zadaj pytanie do projektu Eryk (z wiatą)
Jesteś zainteresowany/a tym projektem? Architekt dyżurny przygotuje dla Ciebie materiały z projektu technicznego. Zostaw nam swoje dane, powiadomimy Cię, gdy pliki będą dostępne.
Zamawiając usługi forum i dzienników budowy, przyjmujesz do wiadomości i wyrażasz zgodę na świadczenie tych usług i przetwarzanie przez Usługodawcę, którym jest Pracownia Projektowa ARCHIPELAG A. Wójciak, R. Wójciak Sp. J., jako Administratora danych, podanych w formularzu danych osobowych, na zasadach wskazanych w Regulaminie i Polityce Prywatności serwisu ARCHIPELAG.pl.
Jeśli chcesz także otrzymywać bonusy i informacje dotyczące akcji promocyjnych naszych i naszych Partnerów, wyraź zgodę dodatkową i zaznacz odpowiednie pole. Wyrażam zgodę na przetwarzanie moich danych osobowych przez administratora, którym jest Pracownia Projektowa ARCHIPELAG A. Wójciak, R. Wójciak Sp. J. z siedzibą: ul. M. Smoluchowskiego 56/3, 50-372 Wrocław, nr KRS 0000123673, NIP: 897-16-05-744, REGON: 931987209:
Na podstawie art. 13 Rozporządzenia Parlamentu Europejskiego i Rady (UE) 2016/679 z dnia 27 kwietnia 2016 r. w sprawie ochrony osób fizycznych w związku z przetwarzaniem danych osobowych i w sprawie swobodnego przepływu takich danych oraz uchylenia dyrektywy 95/46/WE (RODO) informujemy Cię, że (przeczytaj klauzulę informacyjną):
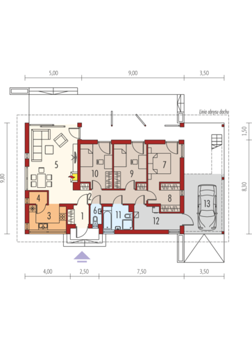
czytaj całość ›Parter
- 1. Wiatrołap 3.01 m²
- 2. Hol 8.07 m²
- 3. Kuchnia 7.02 m²
- 4. Spiżarnia 1.63 m²
- 5. Pokój dzienny + jadalnia 26.21 m²
- 6. Toaleta 1.61 m²
- 7. Sypialnia 11.15 m²
- 8. Garderoba 4.18 m²
- 9. Sypialnia 10.61 m²
- 10. Sypialnia 10.42 m²
- 11. Łazienka 5.28 m²
- 12. Kotłownia 7.08 m²
- 13. Wiata samochodowa 30.45 m²
Zużycie energii
Wskaźnik EP dla domu z wentylacją grawitacyjną (szczegółowe dane w charakterystyce energetycznej)
Pobierz charakterystykę energetyczną:
Wskaźnik EP określa roczne zapotrzebowanie domu na nieodnawialną energię pierwotną do ogrzewania, wentylacji oraz przygotowania ciepłej wody użytkowej.
Szacunkowy koszt budowy
| STANDARDOWE (uśrednione) [zł] |
||
|---|---|---|
| Stan surowy otwarty: | 192 894 (1) | |
| Stan surowy zamknięty: | 237 408 (1) | |
| Stan deweloperski: | 393 207 (1) | |
| Instalacje wewnętrzne: | 39 320 (1) | |
|
(1) Wyliczone według współczynników (2) Wyliczone według kosztorysu |
||
Opinia eksperta
Forum (3)
Ostatnie tematy:
- Błąd projektu [0] gość, 2015-05-04 07:40
- Fundamenty [1] gość, 2013-11-12 09:21
- Kilka pytań [3] gość, 2013-01-15 11:08
Archipelag dla Ciebie
Polecane technologie
Wypełnij formularz, skontaktujemy się z Tobą.
Zamawiając usługi forum i dzienników budowy, przyjmujesz do wiadomości i wyrażasz zgodę na świadczenie tych usług i przetwarzanie przez Usługodawcę, którym jest Pracownia Projektowa ARCHIPELAG A. Wójciak, R. Wójciak Sp. J., jako Administratora danych, podanych w formularzu danych osobowych, na zasadach wskazanych w Regulaminie i Polityce Prywatności serwisu ARCHIPELAG.pl.
Jeśli chcesz także otrzymywać bonusy i informacje dotyczące akcji promocyjnych naszych i naszych Partnerów, wyraź zgodę dodatkową i zaznacz odpowiednie pole. Wyrażam zgodę na przetwarzanie moich danych osobowych przez administratora, którym jest Pracownia Projektowa ARCHIPELAG A. Wójciak, R. Wójciak Sp. J. z siedzibą: ul. M. Smoluchowskiego 56/3, 50-372 Wrocław, nr KRS 0000123673, NIP: 897-16-05-744, REGON: 931987209:
Na podstawie art. 13 Rozporządzenia Parlamentu Europejskiego i Rady (UE) 2016/679 z dnia 27 kwietnia 2016 r. w sprawie ochrony osób fizycznych w związku z przetwarzaniem danych osobowych i w sprawie swobodnego przepływu takich danych oraz uchylenia dyrektywy 95/46/WE (RODO) informujemy Cię, że (przeczytaj klauzulę informacyjną):
czytaj całość ›




Eryk (z wiatą) to ciekawy, przykuwający wzrok projekt domu parterowego z wiatą garażową, pełniącą dodatkowo funkcję antresoli. To połączenie użytkowości z niebanalnymi rozwiązaniami, które spodoba się miłośnikom nowoczesnych budynków. Do dyspozycji przyszłych mieszkańców są m.in. trzy sypialnie, garderoba i pokój dzienny połączony z jadalnią. Nowoczesna elewacja i liczne przeszklenia podkreślają charakter domu, podobnie jak jego otoczenie wykonane z desek kompozytowych ProDeck w kolorze orzech. Sprawdzony system tarasowy zapewnia komfortowe i bezproblemowe użytkowanie, a wysoka jakość materiału – estetyczny wygląd na lata.
czytaj więcej