Ulubione projekty
Twoja lista jest pusta
Dodano projekt
Usunięto projekt
- Powierzchnia użytkowa 157.01 m²
- Dodatkowo:
- kotłownia 6.36 m²
- garaż 18.57 m²
- Powierzchnia zabudowy 148.65 m²
- Pow. netto 232.00 m²
- Kubatura 558.08 m³
- Wymiary budynku 11.50 × 15.80 m
- Wysokość budynku 8.42 m
- Kąt nachylenia dachu 35o
- Powierzchnia dachu 135 m²
- Minimalne wymiary działki 19.50 x 23.80 m
Cena projektu
4 240 pln
5 300 pln
- Katalogowa karta projektu (656 KB)
- Edgar G1 ENERGO - charakterystyka energetyczna (wersja domu z wentylacją grawitacyjną)Budynek spełnia wymagania WT2017 (558 KB)
- Edgar G1 ENERGO - charakterystyka energetyczna (wersja domu z wentylacją mechaniczną)Budynek spełnia wymagania WT2021 (563 KB)
- Edgar G1 ENERGO - materiały z projektu technicznego (1103 KB)
- Edgar G1 ENERGO - materiały z projektu technicznego (odbicie lustrzane) (1096 KB)
- ProDeck - system tarasowy TERRA (2189 KB)
- Deimic- system inteligentnego domu (564 KB)
Zadaj pytanie do projektu Edgar G1 ENERGO
Jesteś zainteresowany/a tym projektem? Architekt dyżurny przygotuje dla Ciebie materiały z projektu technicznego. Zostaw nam swoje dane, powiadomimy Cię, gdy pliki będą dostępne.
Zamawiając usługi forum i dzienników budowy, przyjmujesz do wiadomości i wyrażasz zgodę na świadczenie tych usług i przetwarzanie przez Usługodawcę, którym jest Pracownia Projektowa ARCHIPELAG A. Wójciak, R. Wójciak Sp. J., jako Administratora danych, podanych w formularzu danych osobowych, na zasadach wskazanych w Regulaminie i Polityce Prywatności serwisu ARCHIPELAG.pl.
Jeśli chcesz także otrzymywać bonusy i informacje dotyczące akcji promocyjnych naszych i naszych Partnerów, wyraź zgodę dodatkową i zaznacz odpowiednie pole. Wyrażam zgodę na przetwarzanie moich danych osobowych przez administratora, którym jest Pracownia Projektowa ARCHIPELAG A. Wójciak, R. Wójciak Sp. J. z siedzibą: ul. M. Smoluchowskiego 56/3, 50-372 Wrocław, nr KRS 0000123673, NIP: 897-16-05-744, REGON: 931987209:
Na podstawie art. 13 Rozporządzenia Parlamentu Europejskiego i Rady (UE) 2016/679 z dnia 27 kwietnia 2016 r. w sprawie ochrony osób fizycznych w związku z przetwarzaniem danych osobowych i w sprawie swobodnego przepływu takich danych oraz uchylenia dyrektywy 95/46/WE (RODO) informujemy Cię, że (przeczytaj klauzulę informacyjną):
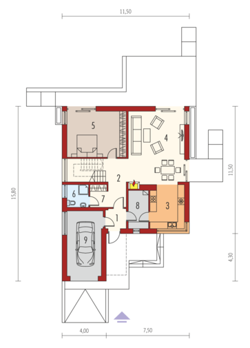
czytaj całość ›Parter
- 1. Wiatrołap 3.08 m²
- 2. Hol + schody 14.71 m²
- 3. Kuchnia 12.12 m²
- 4. Pokój dzienny + jadalnia 33.58 m²
- 5. Sypialnia 21.35 m²
- 6. Łazienka 3.87 m²
- 7. Garderoba 3.21 m²
- 8. Kotłownia 6.36 m²
- 9. Garaż 18.57 m²
Zużycie energii
Wskaźnik EP dla domu z wentylacją grawitacyjną (szczegółowe dane w charakterystyce energetycznej)
Pobierz charakterystykę energetyczną:
Wskaźnik EP określa roczne zapotrzebowanie domu na nieodnawialną energię pierwotną do ogrzewania, wentylacji oraz przygotowania ciepłej wody użytkowej.
Szacunkowy koszt budowy
| STANDARDOWE (uśrednione) [zł] |
||
|---|---|---|
| Stan surowy otwarty: | 301 600 (1) | |
| Stan surowy zamknięty: | 371 200 (1) | |
| Stan deweloperski: | 614 800 (1) | |
| Instalacje wewnętrzne: | 61 480 (1) | |
|
(1) Wyliczone według współczynników (2) Wyliczone według kosztorysu |
||
Forum (1)
Ostatnie tematy:
- Myślisz o... [0] gość, 2017-03-08 11:37
Dzienniki budowy
Archipelag dla Ciebie
Polecane technologie
Wypełnij formularz, skontaktujemy się z Tobą.
Zamawiając usługi forum i dzienników budowy, przyjmujesz do wiadomości i wyrażasz zgodę na świadczenie tych usług i przetwarzanie przez Usługodawcę, którym jest Pracownia Projektowa ARCHIPELAG A. Wójciak, R. Wójciak Sp. J., jako Administratora danych, podanych w formularzu danych osobowych, na zasadach wskazanych w Regulaminie i Polityce Prywatności serwisu ARCHIPELAG.pl.
Jeśli chcesz także otrzymywać bonusy i informacje dotyczące akcji promocyjnych naszych i naszych Partnerów, wyraź zgodę dodatkową i zaznacz odpowiednie pole. Wyrażam zgodę na przetwarzanie moich danych osobowych przez administratora, którym jest Pracownia Projektowa ARCHIPELAG A. Wójciak, R. Wójciak Sp. J. z siedzibą: ul. M. Smoluchowskiego 56/3, 50-372 Wrocław, nr KRS 0000123673, NIP: 897-16-05-744, REGON: 931987209:
Na podstawie art. 13 Rozporządzenia Parlamentu Europejskiego i Rady (UE) 2016/679 z dnia 27 kwietnia 2016 r. w sprawie ochrony osób fizycznych w związku z przetwarzaniem danych osobowych i w sprawie swobodnego przepływu takich danych oraz uchylenia dyrektywy 95/46/WE (RODO) informujemy Cię, że (przeczytaj klauzulę informacyjną):
czytaj całość ›


