Ulubione projekty
Twoja lista jest pusta
Dodano projekt
Usunięto projekt
- Powierzchnia użytkowa 116.50 m²
- Dodatkowo:
- kotłownia 7.85 m²
- Powierzchnia zabudowy 94.39 m²
- Pow. netto 153.73 m²
- Kubatura 380.84 m³
- Wymiary budynku 9.39 × 9.99 m
- Wysokość budynku 9.27 m
- Kąt nachylenia dachu 45o
- Powierzchnia dachu 173 m²
- Minimalne wymiary działki 17.39 x 17.99 m
Cena projektu
3 600 pln
4 500 pln
- Katalogowa karta projektu (663 KB)
- Daga - charakterystyka energetyczna (wersja domu z wentylacja grawitacyjna)Budynek spełnia wymagania WT2021 (501 KB)
- Daga - charakterystyka energetyczna (wersja domu z wentylacja mechaniczna)Budynek spełnia wymagania WT2021 (500 KB)
- Daga - materiały z projektu technicznego (934 KB)
- ProDeck - system tarasowy Terra (2189 KB)
- ISOVER - IZOLACJA poddasza użytkowego i stropu poddasza nieużytkowego (1181 KB)
Zadaj pytanie do projektu Daga
Jesteś zainteresowany/a tym projektem? Architekt dyżurny przygotuje dla Ciebie materiały z projektu technicznego. Zostaw nam swoje dane, powiadomimy Cię, gdy pliki będą dostępne.
Zamawiając usługi forum i dzienników budowy, przyjmujesz do wiadomości i wyrażasz zgodę na świadczenie tych usług i przetwarzanie przez Usługodawcę, którym jest Pracownia Projektowa ARCHIPELAG A. Wójciak, R. Wójciak Sp. J., jako Administratora danych, podanych w formularzu danych osobowych, na zasadach wskazanych w Regulaminie i Polityce Prywatności serwisu ARCHIPELAG.pl.
Jeśli chcesz także otrzymywać bonusy i informacje dotyczące akcji promocyjnych naszych i naszych Partnerów, wyraź zgodę dodatkową i zaznacz odpowiednie pole. Wyrażam zgodę na przetwarzanie moich danych osobowych przez administratora, którym jest Pracownia Projektowa ARCHIPELAG A. Wójciak, R. Wójciak Sp. J. z siedzibą: ul. M. Smoluchowskiego 56/3, 50-372 Wrocław, nr KRS 0000123673, NIP: 897-16-05-744, REGON: 931987209:
Na podstawie art. 13 Rozporządzenia Parlamentu Europejskiego i Rady (UE) 2016/679 z dnia 27 kwietnia 2016 r. w sprawie ochrony osób fizycznych w związku z przetwarzaniem danych osobowych i w sprawie swobodnego przepływu takich danych oraz uchylenia dyrektywy 95/46/WE (RODO) informujemy Cię, że (przeczytaj klauzulę informacyjną):
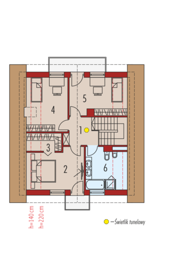
czytaj całość ›Parter
- 1. Wiatrołap 4.38 m²
- 2. Hol + schody 10.74 m²
- 3. Kuchnia 10.18 m²
- 4. Spiżarnia 2.14 m²
- 5. Pokój dzienny + jadalnia 24.55 m²
- 6. Gabinet 9.91 m²
- 7. Łazienka 2.24 m²
- 8. Kotłownia 7.85 m²
Zużycie energii
Wskaźnik EP dla domu z wentylacją grawitacyjną (szczegółowe dane w charakterystyce energetycznej)
Pobierz charakterystykę energetyczną:
Wskaźnik EP określa roczne zapotrzebowanie domu na nieodnawialną energię pierwotną do ogrzewania, wentylacji oraz przygotowania ciepłej wody użytkowej.
Szacunkowy koszt budowy
| STANDARDOWE (uśrednione) [zł] |
||
|---|---|---|
| Stan surowy otwarty: | 199 849 (1) | |
| Stan surowy zamknięty: | 245 968 (1) | |
| Stan deweloperski: | 407 384 (1) | |
| Instalacje wewnętrzne: | 40 738 (1) | |
|
(1) Wyliczone według współczynników (2) Wyliczone według kosztorysu |
||
Opinia eksperta
Forum
Dzienniki budowy
Archipelag dla Ciebie
Polecane technologie
Wypełnij formularz, skontaktujemy się z Tobą.
Zamawiając usługi forum i dzienników budowy, przyjmujesz do wiadomości i wyrażasz zgodę na świadczenie tych usług i przetwarzanie przez Usługodawcę, którym jest Pracownia Projektowa ARCHIPELAG A. Wójciak, R. Wójciak Sp. J., jako Administratora danych, podanych w formularzu danych osobowych, na zasadach wskazanych w Regulaminie i Polityce Prywatności serwisu ARCHIPELAG.pl.
Jeśli chcesz także otrzymywać bonusy i informacje dotyczące akcji promocyjnych naszych i naszych Partnerów, wyraź zgodę dodatkową i zaznacz odpowiednie pole. Wyrażam zgodę na przetwarzanie moich danych osobowych przez administratora, którym jest Pracownia Projektowa ARCHIPELAG A. Wójciak, R. Wójciak Sp. J. z siedzibą: ul. M. Smoluchowskiego 56/3, 50-372 Wrocław, nr KRS 0000123673, NIP: 897-16-05-744, REGON: 931987209:
Na podstawie art. 13 Rozporządzenia Parlamentu Europejskiego i Rady (UE) 2016/679 z dnia 27 kwietnia 2016 r. w sprawie ochrony osób fizycznych w związku z przetwarzaniem danych osobowych i w sprawie swobodnego przepływu takich danych oraz uchylenia dyrektywy 95/46/WE (RODO) informujemy Cię, że (przeczytaj klauzulę informacyjną):
czytaj całość ›





W kompaktowym, funkcjonalnym, a jednocześnie przytulnym i komfortowym projekcie domu Daga, bardzo ważnym elementem jest dach. Zastosowano tu dachówkę płaską BERGAMO w kolorze antracytowym. To modernistyczny i zarazem elegancki wybór. Nowoczesny antracyt i płaska forma dachówki doskonale komponują się z prostą bryłą minimalistycznego budynku. Coraz częściej inwestorzy i architekci stawiają na jej wybór. Dachówkę ceramiczną BERGAMO wyposażono w specjalnie wyprofilowane zamki, które wpływają na szczelność dachu, a także ułatwiają klamrowanie. Pokrycie wykonane tym systemem zapewni wysoką mrozoodporność, wytrzymałość, ale również zwiększy izolację akustyczną budynku.
czytaj więcej