Ulubione projekty
Twoja lista jest pusta
Dodano projekt
Usunięto projekt
- Powierzchnia użytkowa 134.99 m²
- Dodatkowo:
- garaż 18.69 m²
- Powierzchnia zabudowy 112.63 m²
- Pow. netto 192.99 m²
- Kubatura 468.56 m³
- Wymiary budynku 13.20 × 10.20 m
- Wysokość budynku 8.76 m
- Kąt nachylenia dachu 45o
- Powierzchnia dachu 163 m²
- Minimalne wymiary działki 21.20 x 19.80 m
Cena projektu
1 900 pln
3 800 pln
- Katalogowa karta projektu (534 KB)
- Anulka II G1 - charakterystyka energetyczna (wersja domu z wentylacją grawitacyjną)Budynek spełnia wymagania WT2017 (545 KB)
- Anulka II G1 - charakterystyka energetyczna (wersja domu z wentylacją mechaniczną, rekuperacja)Budynek spełnia wymagania WT2017 (544 KB)
- Anulka II G1 - materiały z projektu technicznego (1945 KB)
Zadaj pytanie do projektu Anulka II G1
Jesteś zainteresowany/a tym projektem? Architekt dyżurny przygotuje dla Ciebie materiały z projektu technicznego. Zostaw nam swoje dane, powiadomimy Cię, gdy pliki będą dostępne.
Zamawiając usługi forum i dzienników budowy, przyjmujesz do wiadomości i wyrażasz zgodę na świadczenie tych usług i przetwarzanie przez Usługodawcę, którym jest Pracownia Projektowa ARCHIPELAG A. Wójciak, R. Wójciak Sp. J., jako Administratora danych, podanych w formularzu danych osobowych, na zasadach wskazanych w Regulaminie i Polityce Prywatności serwisu ARCHIPELAG.pl.
Jeśli chcesz także otrzymywać bonusy i informacje dotyczące akcji promocyjnych naszych i naszych Partnerów, wyraź zgodę dodatkową i zaznacz odpowiednie pole. Wyrażam zgodę na przetwarzanie moich danych osobowych przez administratora, którym jest Pracownia Projektowa ARCHIPELAG A. Wójciak, R. Wójciak Sp. J. z siedzibą: ul. M. Smoluchowskiego 56/3, 50-372 Wrocław, nr KRS 0000123673, NIP: 897-16-05-744, REGON: 931987209:
Na podstawie art. 13 Rozporządzenia Parlamentu Europejskiego i Rady (UE) 2016/679 z dnia 27 kwietnia 2016 r. w sprawie ochrony osób fizycznych w związku z przetwarzaniem danych osobowych i w sprawie swobodnego przepływu takich danych oraz uchylenia dyrektywy 95/46/WE (RODO) informujemy Cię, że (przeczytaj klauzulę informacyjną):
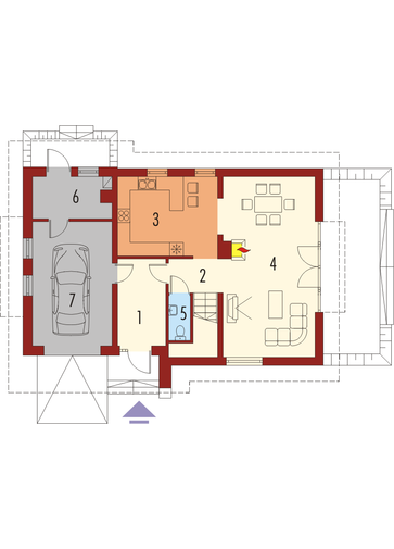
czytaj całość ›Parter
- 1. Wiatrołap 7.99 m²
- 2. Hol 7.32 m²
- 3. Kuchnia 15.25 m²
- 4. Pokój dzienny 31.63 m²
- 5. Toaleta 1.42 m²
- 6. Pom. gospodarcze 5.99 m²
- 7. Garaż 18.69 m²
Zużycie energii
Wskaźnik EP dla domu z wentylacją grawitacyjną (szczegółowe dane w charakterystyce energetycznej)
Pobierz charakterystykę energetyczną:
Wskaźnik EP określa roczne zapotrzebowanie domu na nieodnawialną energię pierwotną do ogrzewania, wentylacji oraz przygotowania ciepłej wody użytkowej.
Szacunkowy koszt budowy
| STANDARDOWE (uśrednione) [zł] |
||
|---|---|---|
| Stan surowy otwarty: | 250 887 (1) | |
| Stan surowy zamknięty: | 308 784 (1) | |
| Stan deweloperski: | 511 423 (1) | |
| Instalacje wewnętrzne: | 51 142 (1) | |
|
(1) Wyliczone według współczynników (2) Wyliczone według kosztorysu |
||
Forum
Dzienniki budowy
Archipelag dla Ciebie
Polecane technologie
Wypełnij formularz, skontaktujemy się z Tobą.
Zamawiając usługi forum i dzienników budowy, przyjmujesz do wiadomości i wyrażasz zgodę na świadczenie tych usług i przetwarzanie przez Usługodawcę, którym jest Pracownia Projektowa ARCHIPELAG A. Wójciak, R. Wójciak Sp. J., jako Administratora danych, podanych w formularzu danych osobowych, na zasadach wskazanych w Regulaminie i Polityce Prywatności serwisu ARCHIPELAG.pl.
Jeśli chcesz także otrzymywać bonusy i informacje dotyczące akcji promocyjnych naszych i naszych Partnerów, wyraź zgodę dodatkową i zaznacz odpowiednie pole. Wyrażam zgodę na przetwarzanie moich danych osobowych przez administratora, którym jest Pracownia Projektowa ARCHIPELAG A. Wójciak, R. Wójciak Sp. J. z siedzibą: ul. M. Smoluchowskiego 56/3, 50-372 Wrocław, nr KRS 0000123673, NIP: 897-16-05-744, REGON: 931987209:
Na podstawie art. 13 Rozporządzenia Parlamentu Europejskiego i Rady (UE) 2016/679 z dnia 27 kwietnia 2016 r. w sprawie ochrony osób fizycznych w związku z przetwarzaniem danych osobowych i w sprawie swobodnego przepływu takich danych oraz uchylenia dyrektywy 95/46/WE (RODO) informujemy Cię, że (przeczytaj klauzulę informacyjną):
czytaj całość ›

