Ulubione projekty
Twoja lista jest pusta
Dodano projekt
Usunięto projekt
- Powierzchnia użytkowa 245.78 m²
- Dodatkowo:
- kotłownia 9.30 m²
- pom. gospodarcze 11.11 m²
- garaż 32.22 m²
- Powierzchnia zabudowy 217.63 m²
- Pow. netto 351.77 m²
- Kubatura 890.23 m³
- Wymiary budynku 17.62 × 18.92 m
- Wysokość budynku 10.03 m
- Kąt nachylenia dachu 45o (2°)
- Powierzchnia dachu 235 m²
- Minimalne wymiary działki 23.62 x 25.42 m
Cena projektu
6 640 pln
8 300 pln
- Katalogowa karta projektu (747 KB)
- Teodor G2 (wersja A) - charakterystyka energetyczna (wersja domu z wentylacją grawitacyjną)Budynek spełnia wymagania WT2021 (562 KB)
- Teodor G2 (wersja A) - charakterystyka energetyczna (wersja domu z wentylacją mechaniczną)Budynek spełnia wymagania WT2021 (564 KB)
- Teodor G2 (wersja A) - materiały z projektu technicznego (1213 KB)
- ProDeck - system tarasowy TERRA (2189 KB)
- ISOVER - IZOLACJA poddasza użytkowego i stropu poddasza nieużytkowego (1181 KB)
- Deimic - system inteligentnego domu (564 KB)
Zadaj pytanie do projektu Teodor G2 (wersja A)
Jesteś zainteresowany/a tym projektem? Architekt dyżurny przygotuje dla Ciebie materiały z projektu technicznego. Zostaw nam swoje dane, powiadomimy Cię, gdy pliki będą dostępne.
Zamawiając usługi forum i dzienników budowy, przyjmujesz do wiadomości i wyrażasz zgodę na świadczenie tych usług i przetwarzanie przez Usługodawcę, którym jest Pracownia Projektowa ARCHIPELAG A. Wójciak, R. Wójciak Sp. J., jako Administratora danych, podanych w formularzu danych osobowych, na zasadach wskazanych w Regulaminie i Polityce Prywatności serwisu ARCHIPELAG.pl.
Jeśli chcesz także otrzymywać bonusy i informacje dotyczące akcji promocyjnych naszych i naszych Partnerów, wyraź zgodę dodatkową i zaznacz odpowiednie pole. Wyrażam zgodę na przetwarzanie moich danych osobowych przez administratora, którym jest Pracownia Projektowa ARCHIPELAG A. Wójciak, R. Wójciak Sp. J. z siedzibą: ul. M. Smoluchowskiego 56/3, 50-372 Wrocław, nr KRS 0000123673, NIP: 897-16-05-744, REGON: 931987209:
Na podstawie art. 13 Rozporządzenia Parlamentu Europejskiego i Rady (UE) 2016/679 z dnia 27 kwietnia 2016 r. w sprawie ochrony osób fizycznych w związku z przetwarzaniem danych osobowych i w sprawie swobodnego przepływu takich danych oraz uchylenia dyrektywy 95/46/WE (RODO) informujemy Cię, że (przeczytaj klauzulę informacyjną):
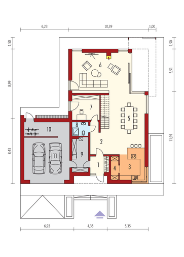
czytaj całość ›Parter
- 1. Wiatrołap 4.92 m²
- 2. Hol + schody 13.57 m²
- 3. Kuchnia 10.74 m²
- 4. Spiżarnia 2.96 m²
- 5. Jadalnia 35.43 m²
- 6. Pokój dzienny 38.38 m²
- 7. Gabinet 11.44 m²
- 8. Łazienka 3.76 m²
- 9. Kotłownia 9.30 m²
- 10. Pom. gospodarcze 11.11 m²
- 11. Garaż 32.22 m²
Zużycie energii
Wskaźnik EP dla domu z wentylacją grawitacyjną (szczegółowe dane w charakterystyce energetycznej)
Pobierz charakterystykę energetyczną:
Wskaźnik EP określa roczne zapotrzebowanie domu na nieodnawialną energię pierwotną do ogrzewania, wentylacji oraz przygotowania ciepłej wody użytkowej.
Szacunkowy koszt budowy
| STANDARDOWE (uśrednione) [zł] |
||
|---|---|---|
| Stan surowy otwarty: | 457 301 (1) | |
| Stan surowy zamknięty: | 562 832 (1) | |
| Stan deweloperski: | 932 190 (1) | |
| Instalacje wewnętrzne: | 93 219 (1) | |
|
(1) Wyliczone według współczynników (2) Wyliczone według kosztorysu |
||
Elewacje
Opinia eksperta
Forum (2)
Ostatnie tematy:
- Teodor G2 realizacja [1] gość, 2018-08-23 12:41
- Realizacje [0] gość, 2018-08-15 10:33
Realizacje(1)
Archipelag dla Ciebie
Polecane technologie
Wypełnij formularz, skontaktujemy się z Tobą.
Zamawiając usługi forum i dzienników budowy, przyjmujesz do wiadomości i wyrażasz zgodę na świadczenie tych usług i przetwarzanie przez Usługodawcę, którym jest Pracownia Projektowa ARCHIPELAG A. Wójciak, R. Wójciak Sp. J., jako Administratora danych, podanych w formularzu danych osobowych, na zasadach wskazanych w Regulaminie i Polityce Prywatności serwisu ARCHIPELAG.pl.
Jeśli chcesz także otrzymywać bonusy i informacje dotyczące akcji promocyjnych naszych i naszych Partnerów, wyraź zgodę dodatkową i zaznacz odpowiednie pole. Wyrażam zgodę na przetwarzanie moich danych osobowych przez administratora, którym jest Pracownia Projektowa ARCHIPELAG A. Wójciak, R. Wójciak Sp. J. z siedzibą: ul. M. Smoluchowskiego 56/3, 50-372 Wrocław, nr KRS 0000123673, NIP: 897-16-05-744, REGON: 931987209:
Na podstawie art. 13 Rozporządzenia Parlamentu Europejskiego i Rady (UE) 2016/679 z dnia 27 kwietnia 2016 r. w sprawie ochrony osób fizycznych w związku z przetwarzaniem danych osobowych i w sprawie swobodnego przepływu takich danych oraz uchylenia dyrektywy 95/46/WE (RODO) informujemy Cię, że (przeczytaj klauzulę informacyjną):
czytaj całość ›














Projekt Teodor G2 (wersja A) już na pierwszy rzut oka łączy tradycję i nowoczesność. Wszystko to za sprawą zastosowanych materiałów. W projekcie użyto dachówki ceramicznej, czyli materiału budowlanego o kilkusetletniej tradycji, jednak zdecydowano się na jej nowoczesną, płaską formę. Użyty model to dachówki BERGAMO, w modnym kolorze antracytowym. Z kolei na elewacji znalazły się płytki licowe, ręcznie formowane, wyglądające na dotknięte duchem czasu. Wybór ceramiki budowlanej zapewnia bardzo dobrą izolacyjność cieplną, a także ułatwia utrzymanie odpowiedniego bilansu energetycznego. W razie jakichkolwiek wątpliwości, związanych z doborem odpowiedniego pokrycia dachowego i materiałów elewacyjnych, zachęcamy do kontaktu z naszymi reprezentantami handlowymi. Kontakty znajdą Państwo na naszej stronie: https://roben.pl/kontakt/reprezentanci-handlowi
czytaj więcej