Ulubione projekty

Twoja lista jest pusta

Dodano projekt

Usunięto projekt

Tanita II G2

5 600 pln

Znajdź projekt domu
Powierzchnia [m²]
Projekt domu Tanita II G2 - wizualizacja ogrodowa nocna
Autor: Artur Wójciak

Tanita II G2

ENERGO

  • Powierzchnia użytkowa 143.66 m²
  • Dodatkowo:
  • kotłownia 11.29 m²
  • garaż 29.90 m²
  • poddasze nieużytkowe 73.84 m²
  • Powierzchnia zabudowy 230.37 m²
  • Pow. netto 191.11 m²
  • Kubatura 537.63 m³
  • Wymiary budynku 14.24 × 21.49 m
  • Wysokość budynku 7.91 m
  • Kąt nachylenia dachu 30o
  • Powierzchnia dachu 375 m²
  • Minimalne wymiary działki 22.24 x 29.49 m

Cena projektu

5 600 pln

Zaloguj się aby pobrać plik
Przypomnij hasło
Zadaj pytanie do projektu Tanita II G2

Jesteś zainteresowany/a tym projektem? Architekt dyżurny przygotuje dla Ciebie materiały z projektu technicznego. Zostaw nam swoje dane, powiadomimy Cię, gdy pliki będą dostępne.

Zamawiając usługi forum i dzienników budowy, przyjmujesz do wiadomości i wyrażasz zgodę na świadczenie tych usług i przetwarzanie przez Usługodawcę, którym jest Pracownia Projektowa ARCHIPELAG A. Wójciak, R. Wójciak Sp. J., jako Administratora danych, podanych w formularzu danych osobowych, na zasadach wskazanych w Regulaminie i Polityce Prywatności serwisu ARCHIPELAG.pl.

Jeśli chcesz także otrzymywać bonusy i informacje dotyczące akcji promocyjnych naszych i naszych Partnerów, wyraź zgodę dodatkową i zaznacz odpowiednie pole. Wyrażam zgodę na przetwarzanie moich danych osobowych przez administratora, którym jest Pracownia Projektowa ARCHIPELAG A. Wójciak, R. Wójciak Sp. J. z siedzibą: ul. M. Smoluchowskiego 56/3, 50-372 Wrocław, nr KRS 0000123673, NIP: 897-16-05-744, REGON: 931987209:

Na podstawie art. 13 Rozporządzenia Parlamentu Europejskiego i Rady (UE) 2016/679 z dnia 27 kwietnia 2016 r. w sprawie ochrony osób fizycznych w związku z przetwarzaniem danych osobowych i w sprawie swobodnego przepływu takich danych oraz uchylenia dyrektywy 95/46/WE (RODO) informujemy Cię, że (przeczytaj klauzulę informacyjną):

czytaj całość ›
Pola oznaczone gwiazdką (*) są obowiązkowe do wypełnienia

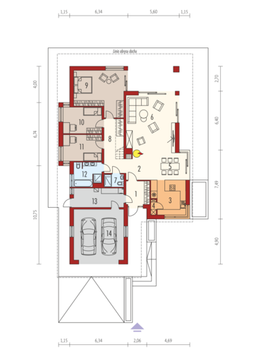
Parter

  • 1. Wiatrołap 6.43 m²
  • 2. Hol 7.89 m²
  • 3. Kuchnia 13.12 m²
  • 4. Spiżarnia 1.03 m²
  • 5. Jadalnia 10.61 m²
  • 6. Pokój dzienny 33.69 m²
  • 7. Łazienka 2.91 m²
  • 8. Korytarz + garderoba 12.56 m²
  • 9. Sypialnia 23.70 m²
  • 10. Sypialnia 11.91 m²
  • 11. Sypialnia 11.93 m²
  • 12. Łazienka 7.88 m²
  • 13. Kotłownia 11.29 m²
  • 14. Garaż 29.90 m²

Poddasze

  • 1. Poddasze nieużytkowe 73.84 m²

Więcej o projekcie domu Tanita II G2

Tanita II G2 to przytulna nowoczesność w połączeniu z doskonałą funkcjonalnością. Dom pięknie prezentuje się zarówno z zewnątrz, jak i od środka. Dzięki szerokim przeszkleniom zastosowanym w projekcie wnętrze jest maksymalnie rozświetlone i przytulne, a domownicy mogą cieszyć się wrażeniem otwartej, niczym nieskrępowanej przestrzeni. Perfekcyjnym dopełnieniem komfortowego układu pomieszczeń jest zadaszony taras, na którym można przyjemnie odpocząć, delektować się śniadaniem na świeżym powietrzu, a wieczorem zorganizować roześmianego grilla z przyjaciółmi.

Budowa zgodna z zastosowaną w dokumentacji technicznej izolacją termiczną i materiałami konstrukcyjnymi gwarantuje:
- założoną izolacyjność cieplną i akustyczną przegród budowlanych
- odpowiednią wytrzymałość i odporność ścian na działanie czynników atmosferycznych
- właściwy bilans energetyczny oraz wymagane przepisami parametry sprawności energetycznej budynku
- komfort termiczny: izolacja od zimna, gorąca i hałasu
- komfort użytkowania, jakość i bezpieczeństwo
- zdrowy mikroklimat wnętrz, czyli zdrowy dom

czytaj więcej

Usytuowanie na działce

Schemat przekroju

Zużycie energii

Projekt domu zgodny z przepisami WT 2021

Wskaźnik EP dla domu z wentylacją grawitacyjną (szczegółowe dane w charakterystyce energetycznej)

EP = 62.05 kWh/m2*rok

Pobierz charakterystykę energetyczną:

Wskaźnik EP określa roczne zapotrzebowanie domu na nieodnawialną energię pierwotną do ogrzewania, wentylacji oraz przygotowania ciepłej wody użytkowej.

Szacunkowy koszt budowy

  STANDARDOWE
(uśrednione)
[zł]
Stan surowy otwarty: 248 443 (1)
Stan surowy zamknięty: 305 776 (1)
Stan deweloperski: 506 441 (1)
Instalacje wewnętrzne: 50 644 (1)

(1) Wyliczone według współczynników

(2) Wyliczone według kosztorysu

Elewacje

frontowa

lewa

tylna

prawa

Inne wersje projektu

Opinia eksperta

Robert Janiak Robert Janiak H+H Polska Sp.z o.o.

Tanita II G2 to pokłon dla światła i otwartości. Tylną i prawą elewację charakteryzuje bardzo duża ilość przeszkleń, które dają użytkownikom obiektu wrażenie niczym nieskrępowanej swobody przestrzennej. Wyjątkowe otwarcie przestrzeni jest dodatkowo natężone przez duży, zadaszony taras mogący dać wytchnienie nawet przy nie całkiem sprzyjających warunkach atmosferycznych. Kontakt z przyrodą, który pozwalają zachować przeszkolone wnętrza, to zaleta szczególnie doceniana przez inwestorów, dla których ekologia jest istotna. Zdrowy i ekologiczny charakter obiektu zapewniają także materiały ścienne – bloczki z betonu komórkowego H+H Gold+ 4,0-500 o grubości 24 cm i 12 cm to nie tylko zapewnienie ciepłych wnętrz ale także nieagresywny chemicznie proces produkcji oraz zdrowe i bezpieczne obiekty.



czytaj więcej

Forum (2)

Ostatnie tematy:

Archipelag dla Ciebie

Polecane technologie

Bezpłatna pomoc architekta

Wypełnij formularz, skontaktujemy się z Tobą.

Zamawiając usługi forum i dzienników budowy, przyjmujesz do wiadomości i wyrażasz zgodę na świadczenie tych usług i przetwarzanie przez Usługodawcę, którym jest Pracownia Projektowa ARCHIPELAG A. Wójciak, R. Wójciak Sp. J., jako Administratora danych, podanych w formularzu danych osobowych, na zasadach wskazanych w Regulaminie i Polityce Prywatności serwisu ARCHIPELAG.pl.

Jeśli chcesz także otrzymywać bonusy i informacje dotyczące akcji promocyjnych naszych i naszych Partnerów, wyraź zgodę dodatkową i zaznacz odpowiednie pole. Wyrażam zgodę na przetwarzanie moich danych osobowych przez administratora, którym jest Pracownia Projektowa ARCHIPELAG A. Wójciak, R. Wójciak Sp. J. z siedzibą: ul. M. Smoluchowskiego 56/3, 50-372 Wrocław, nr KRS 0000123673, NIP: 897-16-05-744, REGON: 931987209:

Na podstawie art. 13 Rozporządzenia Parlamentu Europejskiego i Rady (UE) 2016/679 z dnia 27 kwietnia 2016 r. w sprawie ochrony osób fizycznych w związku z przetwarzaniem danych osobowych i w sprawie swobodnego przepływu takich danych oraz uchylenia dyrektywy 95/46/WE (RODO) informujemy Cię, że (przeczytaj klauzulę informacyjną):

czytaj całość ›
Pola oznaczone gwiazdką (*) są obowiązkowe do wypełnienia