Ulubione projekty
Twoja lista jest pusta
Dodano projekt
Usunięto projekt
- Powierzchnia użytkowa 99.72 m²
- Dodatkowo:
- kotłownia 10.58 m²
- garaż 33.13 m²
- poddasze do adaptacji 48.87 m²
- Powierzchnia zabudowy 198.25 m²
- Pow. netto 167.78 m²
- Kubatura 471.46 m³
- Wymiary budynku 13.49 × 20.30 m
- Wysokość budynku 7.52 m
- Kąt nachylenia dachu 35o
- Powierzchnia dachu 305 m²
- Minimalne wymiary działki 21.49 x 26.55 m
Cena projektu
4 160 pln
5 200 pln
- Katalogowa karta projektu (765 KB)
- Simon (mały) G2 - charakterystyka energetyczna (wersja domu z wentylacją grawitacyjną)Budynek spełnia wymagania WT2021 (516 KB)
- Simon (mały) G2 - charakterystyka energetyczna (wersja domu z wentylacją mechaniczną)Budynek spełnia wymagania WT2021 (514 KB)
- ProDeck - system tarasowy TERRA (2189 KB)
- SIMON (MAŁY) G2 - zestawienie materiałów do ocieplenia w kompletnym systemie TERMO ORGANIKA (215 KB)
- Deimic - system inteligentnego domu (564 KB)
Zadaj pytanie do projektu Simon (mały) G2
Jesteś zainteresowany/a tym projektem? Architekt dyżurny przygotuje dla Ciebie materiały z projektu technicznego. Zostaw nam swoje dane, powiadomimy Cię, gdy pliki będą dostępne.
Zamawiając usługi forum i dzienników budowy, przyjmujesz do wiadomości i wyrażasz zgodę na świadczenie tych usług i przetwarzanie przez Usługodawcę, którym jest Pracownia Projektowa ARCHIPELAG A. Wójciak, R. Wójciak Sp. J., jako Administratora danych, podanych w formularzu danych osobowych, na zasadach wskazanych w Regulaminie i Polityce Prywatności serwisu ARCHIPELAG.pl.
Jeśli chcesz także otrzymywać bonusy i informacje dotyczące akcji promocyjnych naszych i naszych Partnerów, wyraź zgodę dodatkową i zaznacz odpowiednie pole. Wyrażam zgodę na przetwarzanie moich danych osobowych przez administratora, którym jest Pracownia Projektowa ARCHIPELAG A. Wójciak, R. Wójciak Sp. J. z siedzibą: ul. M. Smoluchowskiego 56/3, 50-372 Wrocław, nr KRS 0000123673, NIP: 897-16-05-744, REGON: 931987209:
Na podstawie art. 13 Rozporządzenia Parlamentu Europejskiego i Rady (UE) 2016/679 z dnia 27 kwietnia 2016 r. w sprawie ochrony osób fizycznych w związku z przetwarzaniem danych osobowych i w sprawie swobodnego przepływu takich danych oraz uchylenia dyrektywy 95/46/WE (RODO) informujemy Cię, że (przeczytaj klauzulę informacyjną):
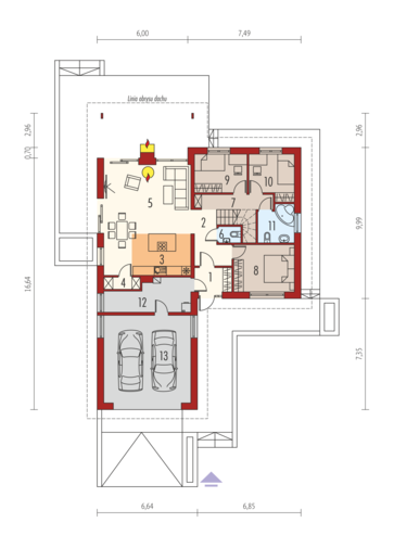
czytaj całość ›Parter
- 1. Wiatrołap 3.87 m²
- 2. Hol + schody 10.35 m²
- 3. Kuchnia + jadalnia 15.70 m²
- 4. Spiżarnia 1.85 m²
- 5. Pokój dzienny 26.48 m²
- 6. Toaleta 1.54 m²
- 7. Korytarz 4.99 m²
- 8. Sypialnia 12.34 m²
- 9. Sypialnia 8.73 m²
- 10. Sypialnia 8.32 m²
- 11. Łazienka 5.55 m²
- 12. Kotłownia 10.58 m²
- 13. Garaż 33.13 m²
Zużycie energii
Wskaźnik EP dla domu z wentylacją grawitacyjną (szczegółowe dane w charakterystyce energetycznej)
Pobierz charakterystykę energetyczną:
Wskaźnik EP określa roczne zapotrzebowanie domu na nieodnawialną energię pierwotną do ogrzewania, wentylacji oraz przygotowania ciepłej wody użytkowej.
Szacunkowy koszt budowy
| STANDARDOWE (uśrednione) [zł] |
||
|---|---|---|
| Stan surowy otwarty: | 218 114 (1) | |
| Stan surowy zamknięty: | 268 448 (1) | |
| Stan deweloperski: | 444 617 (1) | |
| Instalacje wewnętrzne: | 44 461 (1) | |
|
(1) Wyliczone według współczynników (2) Wyliczone według kosztorysu |
||
Opinia eksperta
Forum (1)
Ostatnie tematy:
- Myślisz o... [0] gość, 2016-12-01 11:30
Dzienniki budowy
Archipelag dla Ciebie
Polecane technologie
Wypełnij formularz, skontaktujemy się z Tobą.
Zamawiając usługi forum i dzienników budowy, przyjmujesz do wiadomości i wyrażasz zgodę na świadczenie tych usług i przetwarzanie przez Usługodawcę, którym jest Pracownia Projektowa ARCHIPELAG A. Wójciak, R. Wójciak Sp. J., jako Administratora danych, podanych w formularzu danych osobowych, na zasadach wskazanych w Regulaminie i Polityce Prywatności serwisu ARCHIPELAG.pl.
Jeśli chcesz także otrzymywać bonusy i informacje dotyczące akcji promocyjnych naszych i naszych Partnerów, wyraź zgodę dodatkową i zaznacz odpowiednie pole. Wyrażam zgodę na przetwarzanie moich danych osobowych przez administratora, którym jest Pracownia Projektowa ARCHIPELAG A. Wójciak, R. Wójciak Sp. J. z siedzibą: ul. M. Smoluchowskiego 56/3, 50-372 Wrocław, nr KRS 0000123673, NIP: 897-16-05-744, REGON: 931987209:
Na podstawie art. 13 Rozporządzenia Parlamentu Europejskiego i Rady (UE) 2016/679 z dnia 27 kwietnia 2016 r. w sprawie ochrony osób fizycznych w związku z przetwarzaniem danych osobowych i w sprawie swobodnego przepływu takich danych oraz uchylenia dyrektywy 95/46/WE (RODO) informujemy Cię, że (przeczytaj klauzulę informacyjną):
czytaj całość ›




Simon (mały) G2 to przestronny i funkcjonalny dom parterowy z użytkowym poddaszem. Zastosowana na dachu dachówka ceramiczna BERGAMO to świetne rozwiązanie na poddasza, ponieważ dobrze tłumi odgłosy deszczu i hałas zewnętrzny. Co więcej, docenią ją inwestorzy, którzy poszukują produktu trwałego, ekologicznego oraz wyróżniającego się wysokimi parametrami technicznymi. Dachówkę charakteryzuje płaska powierzchnia, a jej prosta forma sprawia, że doskonale wpisuje się w nowoczesne i minimalistyczne projekty. To rozwiązanie przede wszystkim do dachów dwuspadowych i kopertowych o dużej powierzchni i niewielkim stopniu skomplikowania. W razie jakichkolwiek wątpliwości, związanych z doborem odpowiedniego pokrycia dachowego, zachęcamy do kontaktu z naszymi reprezentantami handlowymi. Kontakty znajdą Państwo na naszej stronie: https://roben.pl/kontakt/reprezentanci-handlowi
czytaj więcej