Ulubione projekty
Twoja lista jest pusta
Dodano projekt
Usunięto projekt
- Powierzchnia użytkowa 110.18 m²
- Dodatkowo:
- kotłownia 8.62 m²
- garaż 17.68 m²
- Powierzchnia zabudowy 100.34 m²
- Pow. netto 159.49 m²
- Kubatura 395.65 m³
- Wymiary budynku 7.98 × 13.98 m
- Wysokość budynku 9.14 m
- Kąt nachylenia dachu 43o
- Powierzchnia dachu 150 m²
- Minimalne wymiary działki 8.00 x 22.70 m
Cena projektu
3 600 pln
4 500 pln
- Katalogowa karta projektu (585 KB)
- Samba G1 - charakterystyka energetyczna (wersja domu z wentylacją grawitacyjną)Budynek spełnia wymagania WT2021 (523 KB)
- Samba G1 - charakterystyka energetyczna (wersja domu z wentylacją mechaniczną)Budynek spełnia wymagania WT2021 (522 KB)
- Samba G1 - materiały z projektu technicznego (920 KB)
Zadaj pytanie do projektu Samba G1
Jesteś zainteresowany/a tym projektem? Architekt dyżurny przygotuje dla Ciebie materiały z projektu technicznego. Zostaw nam swoje dane, powiadomimy Cię, gdy pliki będą dostępne.
Zamawiając usługi forum i dzienników budowy, przyjmujesz do wiadomości i wyrażasz zgodę na świadczenie tych usług i przetwarzanie przez Usługodawcę, którym jest Pracownia Projektowa ARCHIPELAG A. Wójciak, R. Wójciak Sp. J., jako Administratora danych, podanych w formularzu danych osobowych, na zasadach wskazanych w Regulaminie i Polityce Prywatności serwisu ARCHIPELAG.pl.
Jeśli chcesz także otrzymywać bonusy i informacje dotyczące akcji promocyjnych naszych i naszych Partnerów, wyraź zgodę dodatkową i zaznacz odpowiednie pole. Wyrażam zgodę na przetwarzanie moich danych osobowych przez administratora, którym jest Pracownia Projektowa ARCHIPELAG A. Wójciak, R. Wójciak Sp. J. z siedzibą: ul. M. Smoluchowskiego 56/3, 50-372 Wrocław, nr KRS 0000123673, NIP: 897-16-05-744, REGON: 931987209:
Na podstawie art. 13 Rozporządzenia Parlamentu Europejskiego i Rady (UE) 2016/679 z dnia 27 kwietnia 2016 r. w sprawie ochrony osób fizycznych w związku z przetwarzaniem danych osobowych i w sprawie swobodnego przepływu takich danych oraz uchylenia dyrektywy 95/46/WE (RODO) informujemy Cię, że (przeczytaj klauzulę informacyjną):
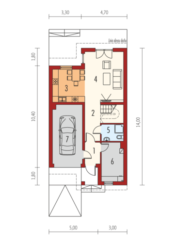
czytaj całość ›Parter
- 1. Wiatrołap 3.39 m²
- 2. Hol + schody 10.45 m²
- 3. Kuchnia + jadalnia 10.97 m²
- 4. Pokój dzienny 20.46 m²
- 5. Łazienka 3.78 m²
- 6. Kotłownia 8.62 m²
- 7. Garaż 17.68 m²
Zużycie energii
Wskaźnik EP dla domu z wentylacją grawitacyjną (szczegółowe dane w charakterystyce energetycznej)
Pobierz charakterystykę energetyczną:
Wskaźnik EP określa roczne zapotrzebowanie domu na nieodnawialną energię pierwotną do ogrzewania, wentylacji oraz przygotowania ciepłej wody użytkowej.
Szacunkowy koszt budowy
| STANDARDOWE (uśrednione) [zł] |
||
|---|---|---|
| Stan surowy otwarty: | 207 337 (1) | |
| Stan surowy zamknięty: | 255 184 (1) | |
| Stan deweloperski: | 422 648 (1) | |
| Instalacje wewnętrzne: | 42 264 (1) | |
|
(1) Wyliczone według współczynników (2) Wyliczone według kosztorysu |
||
Opinia eksperta
Forum
Dzienniki budowy
Archipelag dla Ciebie
Polecane technologie
Wypełnij formularz, skontaktujemy się z Tobą.
Zamawiając usługi forum i dzienników budowy, przyjmujesz do wiadomości i wyrażasz zgodę na świadczenie tych usług i przetwarzanie przez Usługodawcę, którym jest Pracownia Projektowa ARCHIPELAG A. Wójciak, R. Wójciak Sp. J., jako Administratora danych, podanych w formularzu danych osobowych, na zasadach wskazanych w Regulaminie i Polityce Prywatności serwisu ARCHIPELAG.pl.
Jeśli chcesz także otrzymywać bonusy i informacje dotyczące akcji promocyjnych naszych i naszych Partnerów, wyraź zgodę dodatkową i zaznacz odpowiednie pole. Wyrażam zgodę na przetwarzanie moich danych osobowych przez administratora, którym jest Pracownia Projektowa ARCHIPELAG A. Wójciak, R. Wójciak Sp. J. z siedzibą: ul. M. Smoluchowskiego 56/3, 50-372 Wrocław, nr KRS 0000123673, NIP: 897-16-05-744, REGON: 931987209:
Na podstawie art. 13 Rozporządzenia Parlamentu Europejskiego i Rady (UE) 2016/679 z dnia 27 kwietnia 2016 r. w sprawie ochrony osób fizycznych w związku z przetwarzaniem danych osobowych i w sprawie swobodnego przepływu takich danych oraz uchylenia dyrektywy 95/46/WE (RODO) informujemy Cię, że (przeczytaj klauzulę informacyjną):
czytaj całość ›




Samba G1 to projekt domu jednorodzinnego, który charakteryzuje się kompaktowością i szykownością. Zastosowana na dachu dachówka ceramiczna MONZAplus świetnie sprawdza się w przypadku dużych i nieskomplikowanych połaci. Podstawowym wyróżnikiem tej dachówki jest jej rozmiar - ok. 46,4 x 30,4 cm. Duży format sprawia, że montaż jest znacznie szybszy, a na pokrycie 1 m2 połaci wystarczy tylko ok. 9,8 sztuk. MONZAplus przetrwa najtrudniejsze warunki atmosferyczne jak, np. silne wichury, czy ulewne deszcze. Dachówka ta może być zastosowana zarówno w przypadku inwestycji nowoczesnych, jak i tych bardziej tradycyjnych. Ponadto MONZAplus wykonana jest z naturalnego surowca – gliny, jest długowieczna i posiada 30-letnią gwarancję producenta.
czytaj więcej