Ulubione projekty
Twoja lista jest pusta
Dodano projekt
Usunięto projekt
- Powierzchnia użytkowa 129.94 m²
- Dodatkowo:
- kotłownia 11.93 m²
- garaż 32.96 m²
- Powierzchnia zabudowy 145.32 m²
- Pow. netto 188.42 m²
- Kubatura 486.51 m³
- Wymiary budynku 17.03 × 12.48 m
- Wysokość budynku 8.74 m
- Kąt nachylenia dachu 22o (20°)
- Powierzchnia dachu 202 m²
- Minimalne wymiary działki 24.03 x 20.48 m
Cena projektu
4 560 pln
5 700 pln
- Katalogowa karta projektu (730 KB)
- Rodrigo II G2 - materiały z projektu technicznego (odbicie lustrzane) (782 KB)
- Rodrigo II G2 - charakterystyka energetyczna (wersja domu z wentylacją grawitacyjną)Budynek spełnia wymagania WT2021 (542 KB)
- Rodrigo II G2 - charakterystyka energetyczna (wersja domu z wentylacją mechaniczną)Budynek spełnia wymagania WT2021 (541 KB)
- Rodrigo II G2 - zestawienie płyt elewacyjnych firmy PRODEMA (156 KB)
- ProDeck - system tarasowy TERRA (2189 KB)
Zadaj pytanie do projektu Rodrigo II G2
Jesteś zainteresowany/a tym projektem? Architekt dyżurny przygotuje dla Ciebie materiały z projektu technicznego. Zostaw nam swoje dane, powiadomimy Cię, gdy pliki będą dostępne.
Zamawiając usługi forum i dzienników budowy, przyjmujesz do wiadomości i wyrażasz zgodę na świadczenie tych usług i przetwarzanie przez Usługodawcę, którym jest Pracownia Projektowa ARCHIPELAG A. Wójciak, R. Wójciak Sp. J., jako Administratora danych, podanych w formularzu danych osobowych, na zasadach wskazanych w Regulaminie i Polityce Prywatności serwisu ARCHIPELAG.pl.
Jeśli chcesz także otrzymywać bonusy i informacje dotyczące akcji promocyjnych naszych i naszych Partnerów, wyraź zgodę dodatkową i zaznacz odpowiednie pole. Wyrażam zgodę na przetwarzanie moich danych osobowych przez administratora, którym jest Pracownia Projektowa ARCHIPELAG A. Wójciak, R. Wójciak Sp. J. z siedzibą: ul. M. Smoluchowskiego 56/3, 50-372 Wrocław, nr KRS 0000123673, NIP: 897-16-05-744, REGON: 931987209:
Na podstawie art. 13 Rozporządzenia Parlamentu Europejskiego i Rady (UE) 2016/679 z dnia 27 kwietnia 2016 r. w sprawie ochrony osób fizycznych w związku z przetwarzaniem danych osobowych i w sprawie swobodnego przepływu takich danych oraz uchylenia dyrektywy 95/46/WE (RODO) informujemy Cię, że (przeczytaj klauzulę informacyjną):
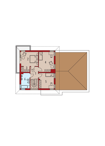
czytaj całość ›Parter
- 1. Wiatrołap 2.71 m²
- 2. Hol + schody 12.53 m²
- 3. Kuchnia 7.06 m²
- 4. Spiżarnia 1.13 m²
- 5. Jadalnia 9.51 m²
- 6. Pokój dzienny 26.98 m²
- 7. Gabinet 7.58 m²
- 8. Łazienka 2.72 m²
- 9. Kotłownia 11.93 m²
- 10. Garaż 32.96 m²
Zużycie energii
Wskaźnik EP dla domu z wentylacją grawitacyjną (szczegółowe dane w charakterystyce energetycznej)
Pobierz charakterystykę energetyczną:
Wskaźnik EP określa roczne zapotrzebowanie domu na nieodnawialną energię pierwotną do ogrzewania, wentylacji oraz przygotowania ciepłej wody użytkowej.
Szacunkowy koszt budowy
| STANDARDOWE (uśrednione) [zł] |
||
|---|---|---|
| Stan surowy otwarty: | 244 946 (1) | |
| Stan surowy zamknięty: | 301 472 (1) | |
| Stan deweloperski: | 499 313 (1) | |
| Instalacje wewnętrzne: | 49 931 (1) | |
|
(1) Wyliczone według współczynników (2) Wyliczone według kosztorysu |
||
Opinia eksperta
Forum
Dzienniki budowy
Archipelag dla Ciebie
Polecane technologie
Wypełnij formularz, skontaktujemy się z Tobą.
Zamawiając usługi forum i dzienników budowy, przyjmujesz do wiadomości i wyrażasz zgodę na świadczenie tych usług i przetwarzanie przez Usługodawcę, którym jest Pracownia Projektowa ARCHIPELAG A. Wójciak, R. Wójciak Sp. J., jako Administratora danych, podanych w formularzu danych osobowych, na zasadach wskazanych w Regulaminie i Polityce Prywatności serwisu ARCHIPELAG.pl.
Jeśli chcesz także otrzymywać bonusy i informacje dotyczące akcji promocyjnych naszych i naszych Partnerów, wyraź zgodę dodatkową i zaznacz odpowiednie pole. Wyrażam zgodę na przetwarzanie moich danych osobowych przez administratora, którym jest Pracownia Projektowa ARCHIPELAG A. Wójciak, R. Wójciak Sp. J. z siedzibą: ul. M. Smoluchowskiego 56/3, 50-372 Wrocław, nr KRS 0000123673, NIP: 897-16-05-744, REGON: 931987209:
Na podstawie art. 13 Rozporządzenia Parlamentu Europejskiego i Rady (UE) 2016/679 z dnia 27 kwietnia 2016 r. w sprawie ochrony osób fizycznych w związku z przetwarzaniem danych osobowych i w sprawie swobodnego przepływu takich danych oraz uchylenia dyrektywy 95/46/WE (RODO) informujemy Cię, że (przeczytaj klauzulę informacyjną):
czytaj całość ›




Projekt Rodrigo II G2 przedstawia nowoczesny i funkcjonalny dom jednorodzinny. Jego ciepły i ekskluzywny obraz nadaje elewacja z naturalnego drewna. Użycie w tym przypadku płyt HPL z naturalną okleiną drewnianą / fornir / firmy Prodema S.A. ma ogromne zalety: 1/ płyta jest całkowicie bezobsługowa, nigdy nie wymaga żadnej impregnacji. 2/ płyta jest wielkoformatowa – 2440 x 1220 mm co daje możliwość pocięcia jej na dowolne rozmiary. 3/ fornir ma dużo bardziej atrakcyjne usłojenie niż klasyczna deska co zapewnia niepowtarzalną i ekskluzywną estetykę 4/ dostępne 9 kolorów okleiny na bazie dwóch fornirów okume i ayous – kolory w katalogu. 5/ możliwość oklejenia drzwi wejściowych i drzwi garażowych tym samym kolorem forniru 6/ możliwa wersja płyty z dwustronnie widocznym fornirem co jest szczególnie istotne w przypadku żaluzji
czytaj więcej