Ulubione projekty
Twoja lista jest pusta
Dodano projekt
Usunięto projekt
- Powierzchnia użytkowa 135.57 m²
- Dodatkowo:
- kotłownia 6.35 m²
- garaż 33.55 m²
- Powierzchnia zabudowy 158.60 m²
- Pow. netto 238.88 m²
- Kubatura 646.02 m³
- Wymiary budynku 11.74 × 15.59 m
- Wysokość budynku 9.02 m
- Kąt nachylenia dachu 45o
- Powierzchnia dachu 191 m²
- Minimalne wymiary działki 18.74 x 23.59 m
Cena projektu
4 400 pln
5 500 pln
- Katalogowa karta projektu (734 KB)
- Riko III G2 - charakterystyka energetyczna (wersja domu z wentylacją grawitacyjną)Budynek spełnia wymagania WT2021 (527 KB)
- Riko III G2 - charakterystyka energetyczna (wersja domu z wentylacją mechaniczną)Budynek spełnia wymagania WT2021 (530 KB)
- Projekt domu Riko III G2 - materiały z projektu technicznego (1129 KB)
- Projekt domu Riko III G2 - materiały z projektu technicznego (odbicie lustrzane) (1129 KB)
- ProDeck - system tarasowy TERRA (2189 KB)
- Riko III G2 - zestawienie materiałów do ocieplenia w kompletnym systemie TERMO ORGANIKA (214 KB)
- ISOVER - IZOLACJA poddasza użytkowego i stropu poddasza nieużytkowego (1181 KB)
- Deimic - system inteligentnego domu (564 KB)
Zadaj pytanie do projektu Riko III G2
Jesteś zainteresowany/a tym projektem? Architekt dyżurny przygotuje dla Ciebie materiały z projektu technicznego. Zostaw nam swoje dane, powiadomimy Cię, gdy pliki będą dostępne.
Zamawiając usługi forum i dzienników budowy, przyjmujesz do wiadomości i wyrażasz zgodę na świadczenie tych usług i przetwarzanie przez Usługodawcę, którym jest Pracownia Projektowa ARCHIPELAG A. Wójciak, R. Wójciak Sp. J., jako Administratora danych, podanych w formularzu danych osobowych, na zasadach wskazanych w Regulaminie i Polityce Prywatności serwisu ARCHIPELAG.pl.
Jeśli chcesz także otrzymywać bonusy i informacje dotyczące akcji promocyjnych naszych i naszych Partnerów, wyraź zgodę dodatkową i zaznacz odpowiednie pole. Wyrażam zgodę na przetwarzanie moich danych osobowych przez administratora, którym jest Pracownia Projektowa ARCHIPELAG A. Wójciak, R. Wójciak Sp. J. z siedzibą: ul. M. Smoluchowskiego 56/3, 50-372 Wrocław, nr KRS 0000123673, NIP: 897-16-05-744, REGON: 931987209:
Na podstawie art. 13 Rozporządzenia Parlamentu Europejskiego i Rady (UE) 2016/679 z dnia 27 kwietnia 2016 r. w sprawie ochrony osób fizycznych w związku z przetwarzaniem danych osobowych i w sprawie swobodnego przepływu takich danych oraz uchylenia dyrektywy 95/46/WE (RODO) informujemy Cię, że (przeczytaj klauzulę informacyjną):
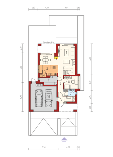
czytaj całość ›Parter
- 1. Wiatrołap 4.63 m²
- 2. Hol + schody 15.28 m²
- 3. Kuchnia 8.89 m²
- 4. Spiżarnia 1.16 m²
- 5. Jadalnia 9.56 m²
- 6. Pokój dzienny 18.37 m²
- 7. Toaleta 2.37 m²
- 8. Gabinet 9.28 m²
- 9. Kotłownia 6.35 m²
- 10. Garaż 33.55 m²
Zużycie energii
Wskaźnik EP dla domu z wentylacją grawitacyjną (szczegółowe dane w charakterystyce energetycznej)
Pobierz charakterystykę energetyczną:
Wskaźnik EP określa roczne zapotrzebowanie domu na nieodnawialną energię pierwotną do ogrzewania, wentylacji oraz przygotowania ciepłej wody użytkowej.
Szacunkowy koszt budowy
| STANDARDOWE (uśrednione) [zł] |
||
|---|---|---|
| Stan surowy otwarty: | 310 544 (1) | |
| Stan surowy zamknięty: | 382 208 (1) | |
| Stan deweloperski: | 633 032 (1) | |
| Instalacje wewnętrzne: | 63 303 (1) | |
|
(1) Wyliczone według współczynników (2) Wyliczone według kosztorysu |
||
Opinia eksperta
Forum (3)
Ostatnie tematy:
- Dopasowanie... [1] gość, 2024-01-19 08:04
- zamiana schodów?? [1] gość, 2018-06-07 10:12
- Myślisz o... [0] gość, 2016-12-01 11:37
Dzienniki budowy
Archipelag dla Ciebie
Polecane technologie
Wypełnij formularz, skontaktujemy się z Tobą.
Zamawiając usługi forum i dzienników budowy, przyjmujesz do wiadomości i wyrażasz zgodę na świadczenie tych usług i przetwarzanie przez Usługodawcę, którym jest Pracownia Projektowa ARCHIPELAG A. Wójciak, R. Wójciak Sp. J., jako Administratora danych, podanych w formularzu danych osobowych, na zasadach wskazanych w Regulaminie i Polityce Prywatności serwisu ARCHIPELAG.pl.
Jeśli chcesz także otrzymywać bonusy i informacje dotyczące akcji promocyjnych naszych i naszych Partnerów, wyraź zgodę dodatkową i zaznacz odpowiednie pole. Wyrażam zgodę na przetwarzanie moich danych osobowych przez administratora, którym jest Pracownia Projektowa ARCHIPELAG A. Wójciak, R. Wójciak Sp. J. z siedzibą: ul. M. Smoluchowskiego 56/3, 50-372 Wrocław, nr KRS 0000123673, NIP: 897-16-05-744, REGON: 931987209:
Na podstawie art. 13 Rozporządzenia Parlamentu Europejskiego i Rady (UE) 2016/679 z dnia 27 kwietnia 2016 r. w sprawie ochrony osób fizycznych w związku z przetwarzaniem danych osobowych i w sprawie swobodnego przepływu takich danych oraz uchylenia dyrektywy 95/46/WE (RODO) informujemy Cię, że (przeczytaj klauzulę informacyjną):
czytaj całość ›







Projekt domu Riko III G2 to ciekawa propozycja dla inwestorów poszukujących niestandardowych i kompleksowych rozwiązań. Charakter domu budują oszczędna biało-antracytowa kolorystyka, dwuspadowy dach, loggie skryte w jego cieniu oraz duże okna tarasowe prowadzące na tarasy. Powierzchnię tarasów mogą wytyczać murowane donice, które uporządkują całość zagospodarowania przestrzeni. Barwione w masie kostki Libet Murja,w kolorze antracytowym świetnie sprawdzą się jako element tworzący donice. Ich mały rozmiar nie przytłoczy kompozycji, ale stworzy idealne dopełnienie całości.
czytaj więcej