Ulubione projekty

Twoja lista jest pusta

Dodano projekt

Usunięto projekt

Znajdź projekt domu
Powierzchnia [m²]
Projekt domu Olaf G2 01 - widok frontowy
Autor: Grzegorz Pik, Artur Wójciak
miniatura
miniatura
miniatura
miniatura

Olaf G2 01

 

  • Wersja:
  • Powierzchnia użytkowa 145.18 m²
  • Dodatkowo:
  • kotłownia 7.83 m²
  • garaż 32.52 m²
  • Powierzchnia zabudowy 183.32 m²
  • Pow. netto 302.00 m²
  • Kubatura 664.44 m³
  • Wymiary budynku 15.70 × 12.80 m
  • Wysokość budynku 7.64 m
  • Kąt nachylenia dachu 36o
  • Powierzchnia dachu 265 m²
  • Minimalne wymiary działki 23.70 x 20.80 m

Cena projektu

4 640 pln

5 800 pln

Zaloguj się aby pobrać plik
Przypomnij hasło
Zadaj pytanie do projektu Olaf G2 01

Jesteś zainteresowany/a tym projektem? Architekt dyżurny przygotuje dla Ciebie materiały z projektu technicznego. Zostaw nam swoje dane, powiadomimy Cię, gdy pliki będą dostępne.

Zamawiając usługi forum i dzienników budowy, przyjmujesz do wiadomości i wyrażasz zgodę na świadczenie tych usług i przetwarzanie przez Usługodawcę, którym jest Pracownia Projektowa ARCHIPELAG A. Wójciak, R. Wójciak Sp. J., jako Administratora danych, podanych w formularzu danych osobowych, na zasadach wskazanych w Regulaminie i Polityce Prywatności serwisu ARCHIPELAG.pl.

Jeśli chcesz także otrzymywać bonusy i informacje dotyczące akcji promocyjnych naszych i naszych Partnerów, wyraź zgodę dodatkową i zaznacz odpowiednie pole. Wyrażam zgodę na przetwarzanie moich danych osobowych przez administratora, którym jest Pracownia Projektowa ARCHIPELAG A. Wójciak, R. Wójciak Sp. J. z siedzibą: ul. M. Smoluchowskiego 56/3, 50-372 Wrocław, nr KRS 0000123673, NIP: 897-16-05-744, REGON: 931987209:

Na podstawie art. 13 Rozporządzenia Parlamentu Europejskiego i Rady (UE) 2016/679 z dnia 27 kwietnia 2016 r. w sprawie ochrony osób fizycznych w związku z przetwarzaniem danych osobowych i w sprawie swobodnego przepływu takich danych oraz uchylenia dyrektywy 95/46/WE (RODO) informujemy Cię, że (przeczytaj klauzulę informacyjną):

czytaj całość ›
Pola oznaczone gwiazdką (*) są obowiązkowe do wypełnienia

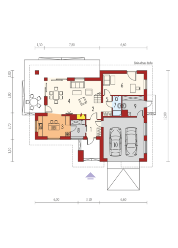
Parter

  • 1. Wiatrołap 4.74 m²
  • 2. Hol + schody 11.52 m²
  • 3. Kuchnia 12.55 m²
  • 4. Pokój dzienny + jadalnia 26.83 m²
  • 5. Korytarz 3.45 m²
  • 6. Gabinet 17.10 m²
  • 7. Łazienka 3.42 m²
  • 8. Pom. gospodarcze 4.69 m²
  • 9. Kotłownia 7.83 m²
  • 10. Garaż 32.52 m²

Poddasze

  • 1. Korytarz 7.38 m²
  • 2. Sypialnia 17.16 m²
  • 3. Garderoba 4.27 m²
  • 4. Sypialnia 11.63 m²
  • 5. Sypialnia 10.10 m²
  • 6. Łazienka 10.34 m²

Więcej o projekcie domu Olaf G2 01

Olaf G2 01 to nowoczesny dom, zaprojektowany z myślą o inwestorach, którzy chcą mieszkać modnie, przestronnie i blisko zieleni. Oprócz atrakcyjnego wyglądu zewnętrznego, dom wyróżniają znakomite parametry cieplne oraz świetnie zorganizowany układ funkcjonalny. 

Budowa zgodna z zastosowaną w dokumentacji technicznej izolacją termiczną i materiałami konstrukcyjnymi gwarantuje:
- założoną izolacyjność cieplną i akustyczną przegród budowlanych
- odpowiednią wytrzymałość i odporność ścian na działanie czynników atmosferycznych
- właściwy bilans energetyczny oraz wymagane przepisami parametry sprawności energetycznej budynku
- komfort termiczny: izolacja od zimna, gorąca i hałasu
- komfort użytkowania, jakość i bezpieczeństwo
- zdrowy mikroklimat wnętrz, czyli zdrowy dom

czytaj więcej

Usytuowanie na działce

Schemat przekroju

Zużycie energii

Projekt domu zgodny z przepisami WT 2021

Wskaźnik EP dla domu z wentylacją mechaniczną (szczegółowe dane w charakterystyce energetycznej)

EP = 54.10 kWh/m2*rok

Pobierz charakterystykę energetyczną:

Wskaźnik EP określa roczne zapotrzebowanie domu na nieodnawialną energię pierwotną do ogrzewania, wentylacji oraz przygotowania ciepłej wody użytkowej.

Szacunkowy koszt budowy

  STANDARDOWE
(uśrednione)
[zł]
Stan surowy otwarty: 392 600 (1)
Stan surowy zamknięty: 483 200 (1)
Stan deweloperski: 800 300 (1)
Instalacje wewnętrzne: 80 030 (1)

(1) Wyliczone według współczynników

(2) Wyliczone według kosztorysu

Elewacje

frontowa

lewa

tylna

prawa

Inne wersje projektu

Dzienniki budowy

Archipelag dla Ciebie

Polecane technologie

Bezpłatna pomoc architekta

Wypełnij formularz, skontaktujemy się z Tobą.

Zamawiając usługi forum i dzienników budowy, przyjmujesz do wiadomości i wyrażasz zgodę na świadczenie tych usług i przetwarzanie przez Usługodawcę, którym jest Pracownia Projektowa ARCHIPELAG A. Wójciak, R. Wójciak Sp. J., jako Administratora danych, podanych w formularzu danych osobowych, na zasadach wskazanych w Regulaminie i Polityce Prywatności serwisu ARCHIPELAG.pl.

Jeśli chcesz także otrzymywać bonusy i informacje dotyczące akcji promocyjnych naszych i naszych Partnerów, wyraź zgodę dodatkową i zaznacz odpowiednie pole. Wyrażam zgodę na przetwarzanie moich danych osobowych przez administratora, którym jest Pracownia Projektowa ARCHIPELAG A. Wójciak, R. Wójciak Sp. J. z siedzibą: ul. M. Smoluchowskiego 56/3, 50-372 Wrocław, nr KRS 0000123673, NIP: 897-16-05-744, REGON: 931987209:

Na podstawie art. 13 Rozporządzenia Parlamentu Europejskiego i Rady (UE) 2016/679 z dnia 27 kwietnia 2016 r. w sprawie ochrony osób fizycznych w związku z przetwarzaniem danych osobowych i w sprawie swobodnego przepływu takich danych oraz uchylenia dyrektywy 95/46/WE (RODO) informujemy Cię, że (przeczytaj klauzulę informacyjną):

czytaj całość ›
Pola oznaczone gwiazdką (*) są obowiązkowe do wypełnienia