Ulubione projekty
Twoja lista jest pusta
Dodano projekt
Usunięto projekt
- Powierzchnia użytkowa 89.57 m²
- Dodatkowo:
- kotłownia 5.19 m²
- Powierzchnia zabudowy 69.79 m²
- Pow. netto 107.34 m²
- Kubatura 289.43 m³
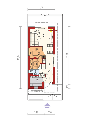
- Wymiary budynku 5.59 × 12.74 m
- Wysokość budynku 8.39 m
- Kąt nachylenia dachu 45o
- Powierzchnia dachu 133 m²
- Minimalne wymiary działki 13.59 x 21.24 m
Cena projektu
3 760 pln
4 700 pln
- Katalogowa karta projektu (741 KB)
- Moniczka II (wersja A) - charakterystyka energetyczna (wersja domu z wentylacją grawitacyjną)Budynek spełnia wymagania WT2021 (517 KB)
- Moniczka II (wersja A) - charakterystyka energetyczna (wersja domu z wentylacją mechaniczną)Budynek spełnia wymagania WT2021 (517 KB)
- Moniczka II (wersja A) - rysunki koncepcyjne (535 KB)
- Moniczka II (wersja A) - pokrycia elewacji CEDRAL (480 KB)
Zadaj pytanie do projektu Moniczka II (wersja A)
Jesteś zainteresowany/a tym projektem? Architekt dyżurny przygotuje dla Ciebie materiały z projektu technicznego. Zostaw nam swoje dane, powiadomimy Cię, gdy pliki będą dostępne.
Zamawiając usługi forum i dzienników budowy, przyjmujesz do wiadomości i wyrażasz zgodę na świadczenie tych usług i przetwarzanie przez Usługodawcę, którym jest Pracownia Projektowa ARCHIPELAG A. Wójciak, R. Wójciak Sp. J., jako Administratora danych, podanych w formularzu danych osobowych, na zasadach wskazanych w Regulaminie i Polityce Prywatności serwisu ARCHIPELAG.pl.
Jeśli chcesz także otrzymywać bonusy i informacje dotyczące akcji promocyjnych naszych i naszych Partnerów, wyraź zgodę dodatkową i zaznacz odpowiednie pole. Wyrażam zgodę na przetwarzanie moich danych osobowych przez administratora, którym jest Pracownia Projektowa ARCHIPELAG A. Wójciak, R. Wójciak Sp. J. z siedzibą: ul. M. Smoluchowskiego 56/3, 50-372 Wrocław, nr KRS 0000123673, NIP: 897-16-05-744, REGON: 931987209:
Na podstawie art. 13 Rozporządzenia Parlamentu Europejskiego i Rady (UE) 2016/679 z dnia 27 kwietnia 2016 r. w sprawie ochrony osób fizycznych w związku z przetwarzaniem danych osobowych i w sprawie swobodnego przepływu takich danych oraz uchylenia dyrektywy 95/46/WE (RODO) informujemy Cię, że (przeczytaj klauzulę informacyjną):
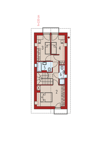
czytaj całość ›Parter
- 1. Wiatrołap 2.89 m²
- 2. Hol + schody 10.20 m²
- 3. Kuchnia + jadalnia 10.87 m²
- 4. Schowek/spiżarnia 2.35 m²
- 5. Pokój dzienny 17.17 m²
- 6. Toaleta 1.84 m²
- 7. Kotłownia 5.19 m²
Zużycie energii
Wskaźnik EP dla domu z wentylacją grawitacyjną (szczegółowe dane w charakterystyce energetycznej)
Pobierz charakterystykę energetyczną:
Wskaźnik EP określa roczne zapotrzebowanie domu na nieodnawialną energię pierwotną do ogrzewania, wentylacji oraz przygotowania ciepłej wody użytkowej.
Szacunkowy koszt budowy
| STANDARDOWE (uśrednione) [zł] |
||
|---|---|---|
| Stan surowy otwarty: | 139 542 (1) | |
| Stan surowy zamknięty: | 171 744 (1) | |
| Stan deweloperski: | 284 451 (1) | |
| Instalacje wewnętrzne: | 28 445 (1) | |
|
(1) Wyliczone według współczynników (2) Wyliczone według kosztorysu |
||
Opinia eksperta
Forum
Dzienniki budowy
Archipelag dla Ciebie
Polecane technologie
Wypełnij formularz, skontaktujemy się z Tobą.
Zamawiając usługi forum i dzienników budowy, przyjmujesz do wiadomości i wyrażasz zgodę na świadczenie tych usług i przetwarzanie przez Usługodawcę, którym jest Pracownia Projektowa ARCHIPELAG A. Wójciak, R. Wójciak Sp. J., jako Administratora danych, podanych w formularzu danych osobowych, na zasadach wskazanych w Regulaminie i Polityce Prywatności serwisu ARCHIPELAG.pl.
Jeśli chcesz także otrzymywać bonusy i informacje dotyczące akcji promocyjnych naszych i naszych Partnerów, wyraź zgodę dodatkową i zaznacz odpowiednie pole. Wyrażam zgodę na przetwarzanie moich danych osobowych przez administratora, którym jest Pracownia Projektowa ARCHIPELAG A. Wójciak, R. Wójciak Sp. J. z siedzibą: ul. M. Smoluchowskiego 56/3, 50-372 Wrocław, nr KRS 0000123673, NIP: 897-16-05-744, REGON: 931987209:
Na podstawie art. 13 Rozporządzenia Parlamentu Europejskiego i Rady (UE) 2016/679 z dnia 27 kwietnia 2016 r. w sprawie ochrony osób fizycznych w związku z przetwarzaniem danych osobowych i w sprawie swobodnego przepływu takich danych oraz uchylenia dyrektywy 95/46/WE (RODO) informujemy Cię, że (przeczytaj klauzulę informacyjną):
czytaj całość ›






Moniczka II to kolejny projekt domu, który może zostać usytuowany na niewielkiej działce. Fasadę budynku zdobią aplikacje wykonane z desek Cedral. Połączenie trzech, kontrastujących ze sobą kolorów, pozwoliło na uzyskanie dynamicznego i nowoczesnego efektu. Deski elewacyjne Cedral są objęte 10-letnią gwarancją. Są niezwykle trwałe i proste w utrzymaniu, dzięki czemu można na długie lata zapomnieć o remoncie i uciążliwej konserwacji. Ponadto włóknocement, z którego są wykonane to materiał ognioodporny i przyjazny dla środowiska. Okres ich eksploatacji wynosi ponad 50 lat. To idealne rozwiązanie dla ceniących czas i wygodę. Dostępne w szerokiej gamie kolorów, pozwalają na realizację najbardziej śmiałych projektów.
czytaj więcej