Ulubione projekty

Twoja lista jest pusta

Dodano projekt

Usunięto projekt

Znajdź projekt domu
Powierzchnia [m²]
Projekt domu Moniczka - wizualizacja frontowa
Autor: Artur Wójciak
miniatura
miniatura
miniatura
miniatura
miniatura

Moniczka

ENERGO

  • Powierzchnia użytkowa 76.92 m²
  • Dodatkowo:
  • kotłownia 5.19 m²
  • Powierzchnia zabudowy 59.67 m²
  • Pow. netto 90.93 m²
  • Kubatura 236.13 m³
  • Wymiary budynku 5.59 × 10.94 m
  • Wysokość budynku 7.90 m
  • Kąt nachylenia dachu 30o
  • Powierzchnia dachu 95 m²
  • Minimalne wymiary działki 13.59 x 19.44 m

Cena projektu

3 760 pln

4 700 pln

Zaloguj się aby pobrać plik
Przypomnij hasło
Zadaj pytanie do projektu Moniczka

Jesteś zainteresowany/a tym projektem? Architekt dyżurny przygotuje dla Ciebie materiały z projektu technicznego. Zostaw nam swoje dane, powiadomimy Cię, gdy pliki będą dostępne.

Zamawiając usługi forum i dzienników budowy, przyjmujesz do wiadomości i wyrażasz zgodę na świadczenie tych usług i przetwarzanie przez Usługodawcę, którym jest Pracownia Projektowa ARCHIPELAG A. Wójciak, R. Wójciak Sp. J., jako Administratora danych, podanych w formularzu danych osobowych, na zasadach wskazanych w Regulaminie i Polityce Prywatności serwisu ARCHIPELAG.pl.

Jeśli chcesz także otrzymywać bonusy i informacje dotyczące akcji promocyjnych naszych i naszych Partnerów, wyraź zgodę dodatkową i zaznacz odpowiednie pole. Wyrażam zgodę na przetwarzanie moich danych osobowych przez administratora, którym jest Pracownia Projektowa ARCHIPELAG A. Wójciak, R. Wójciak Sp. J. z siedzibą: ul. M. Smoluchowskiego 56/3, 50-372 Wrocław, nr KRS 0000123673, NIP: 897-16-05-744, REGON: 931987209:

Na podstawie art. 13 Rozporządzenia Parlamentu Europejskiego i Rady (UE) 2016/679 z dnia 27 kwietnia 2016 r. w sprawie ochrony osób fizycznych w związku z przetwarzaniem danych osobowych i w sprawie swobodnego przepływu takich danych oraz uchylenia dyrektywy 95/46/WE (RODO) informujemy Cię, że (przeczytaj klauzulę informacyjną):

czytaj całość ›
Pola oznaczone gwiazdką (*) są obowiązkowe do wypełnienia

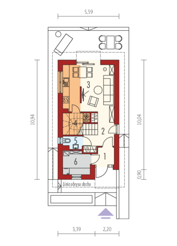
Parter

  • 1. Wiatrołap 2.89 m²
  • 2. Hol + schody 10.20 m²
  • 3. Pokój dzienny + kuchnia 19.88 m²
  • 4. Schowek/spiżarnia 2.35 m²
  • 5. Toaleta 1.84 m²
  • 6. Kotłownia 5.19 m²

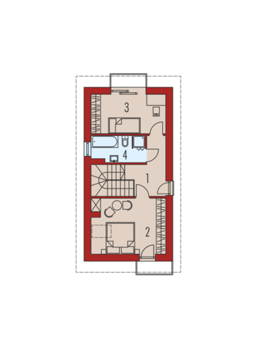
Piętro I

  • 1. Korytarz 6.63 m²
  • 2. Sypialnia 16.15 m²
  • 3. Sypialnia 11.51 m²
  • 4. Łazienka 5.47 m²

Więcej o projekcie domu Moniczka

Projekt domu Moniczka to idealny dom na małą i wąską działkę. Prosty i kompaktowy, a do tego tani w budowie i późniejszym użytkowaniu. W jego jasnym i komfortowo zorganizowanym wnętrzu znakomicie odnajdzie się rodzina ceniąca spokój i ponadczasowe rozwiązania funkcjonalne. Niezwykły urok domu to także zasługa atrakcyjnej elewacji, na której biel, drewno i modny odcień koloru magenta tworzą efekt nowoczesności połączonej z przytulnością. Plusem projektu jest także taras będący harmonijnym przedłużeniem salonu i jadalni.

Projekt z kolekcji BEZ POZWOLENIA 70 - na zgłoszenie. Od 3 stycznia 2022 r. każdy, kto ma działkę budowlaną, może wybudować na niej - w uproszczonej procedurze, bez pozwolenia na budowę - dom do 70 m² powierzchni zabudowy do celów mieszkaniowych lub rekreacyjnych.

Budowa zgodna z zastosowaną w dokumentacji technicznej izolacją termiczną i materiałami konstrukcyjnymi gwarantuje:
- założoną izolacyjność cieplną i akustyczną przegród budowlanych
- odpowiednią wytrzymałość i odporność ścian na działanie czynników atmosferycznych
- właściwy bilans energetyczny oraz wymagane przepisami parametry sprawności energetycznej budynku
- komfort termiczny: izolacja od zimna, gorąca i hałasu
- komfort użytkowania, jakość i bezpieczeństwo
- zdrowy mikroklimat wnętrz, czyli zdrowy dom

czytaj więcej

Usytuowanie na działce

Schemat przekroju

Zużycie energii

Projekt domu zgodny z przepisami WT 2021

Wskaźnik EP dla domu z wentylacją grawitacyjną (szczegółowe dane w charakterystyce energetycznej)

EP = 65.91 kWh/m2*rok

Pobierz charakterystykę energetyczną:

Wskaźnik EP określa roczne zapotrzebowanie domu na nieodnawialną energię pierwotną do ogrzewania, wentylacji oraz przygotowania ciepłej wody użytkowej.

Szacunkowy koszt budowy

  STANDARDOWE
(uśrednione)
[zł]
Stan surowy otwarty: 118 209 (1)
Stan surowy zamknięty: 145 488 (1)
Stan deweloperski: 240 964 (1)
Instalacje wewnętrzne: 24 096 (1)

(1) Wyliczone według współczynników

(2) Wyliczone według kosztorysu

Elewacje

frontowa

lewa

tylna

prawa

Inne wersje projektu

Opinia eksperta

Agata  Lamot Agata Lamot Product Manager Cedral

Moniczka to projekt, który pokazuje, że nawet na niewielkiej działce możemy wybudować dom, który spełni wszystkie nasze oczekiwania i będzie ciekawą alternatywą dla mieszkania w bloku. Zastosowane na elewacji deski Cedral nadają jej wyjątkowego charakteru i pozwalają cieszyć się domem, nie tracąc przy tym czasu na ciągłą konserwację i naprawy. Włóknocement, z którego wykonane są materiały Cedral jest bardzo trwały oraz prosty w utrzymaniu. Ponadto jest to materiał ognioodporny (klasyfikacja A2 s1-d0) i co bardzo ważne w dzisiejszych czasach, przyjazny dla środowiska.



czytaj więcej

Dzienniki budowy

Podobne projekty domów

Archipelag dla Ciebie

Polecane technologie

Bezpłatna pomoc architekta

Wypełnij formularz, skontaktujemy się z Tobą.

Zamawiając usługi forum i dzienników budowy, przyjmujesz do wiadomości i wyrażasz zgodę na świadczenie tych usług i przetwarzanie przez Usługodawcę, którym jest Pracownia Projektowa ARCHIPELAG A. Wójciak, R. Wójciak Sp. J., jako Administratora danych, podanych w formularzu danych osobowych, na zasadach wskazanych w Regulaminie i Polityce Prywatności serwisu ARCHIPELAG.pl.

Jeśli chcesz także otrzymywać bonusy i informacje dotyczące akcji promocyjnych naszych i naszych Partnerów, wyraź zgodę dodatkową i zaznacz odpowiednie pole. Wyrażam zgodę na przetwarzanie moich danych osobowych przez administratora, którym jest Pracownia Projektowa ARCHIPELAG A. Wójciak, R. Wójciak Sp. J. z siedzibą: ul. M. Smoluchowskiego 56/3, 50-372 Wrocław, nr KRS 0000123673, NIP: 897-16-05-744, REGON: 931987209:

Na podstawie art. 13 Rozporządzenia Parlamentu Europejskiego i Rady (UE) 2016/679 z dnia 27 kwietnia 2016 r. w sprawie ochrony osób fizycznych w związku z przetwarzaniem danych osobowych i w sprawie swobodnego przepływu takich danych oraz uchylenia dyrektywy 95/46/WE (RODO) informujemy Cię, że (przeczytaj klauzulę informacyjną):

czytaj całość ›
Pola oznaczone gwiazdką (*) są obowiązkowe do wypełnienia