Ulubione projekty
Twoja lista jest pusta
Dodano projekt
Usunięto projekt
- Powierzchnia użytkowa 136.95 m²
- Dodatkowo:
- kotłownia 7.04 m²
- garaż 21.11 m²
- strych 15.41 m²
- Powierzchnia zabudowy 139.76 m²
- Pow. netto 226.60 m²
- Kubatura 559.43 m³
- Wymiary budynku 14.34 × 9.94 m
- Wysokość budynku 9.21 m
- Kąt nachylenia dachu 42o
- Powierzchnia dachu 230 m²
- Minimalne wymiary działki 21.34 x 20.44 m
Cena projektu
4 480 pln
5 600 pln
- Katalogowa karta projektu (796 KB)
- Mini 8 w.II G1 - charakterystyka energetyczna (wersja domu z wentylacją grawitacyjną)Budynek spełnia wymagania WT2021 (520 KB)
- Mini 8 w.II G1 - charakterystyka energetyczna (wersja domu z wentylacją mechaniczną)Budynek spełnia wymagania WT2021 (521 KB)
- Mini 8 w. II G1 - materiały z projektu technicznego (odbicie lustrzane) (1186 KB)
- ISOVER - IZOLACJA poddasza użytkowego i stropu poddasza nieużytkowego (1181 KB)
- ProDeck - system tarasowy Terra (2189 KB)
- Deimic - system inteligentnego domu (564 KB)
Zadaj pytanie do projektu Mini 8 w. II G1
Jesteś zainteresowany/a tym projektem? Architekt dyżurny przygotuje dla Ciebie materiały z projektu technicznego. Zostaw nam swoje dane, powiadomimy Cię, gdy pliki będą dostępne.
Zamawiając usługi forum i dzienników budowy, przyjmujesz do wiadomości i wyrażasz zgodę na świadczenie tych usług i przetwarzanie przez Usługodawcę, którym jest Pracownia Projektowa ARCHIPELAG A. Wójciak, R. Wójciak Sp. J., jako Administratora danych, podanych w formularzu danych osobowych, na zasadach wskazanych w Regulaminie i Polityce Prywatności serwisu ARCHIPELAG.pl.
Jeśli chcesz także otrzymywać bonusy i informacje dotyczące akcji promocyjnych naszych i naszych Partnerów, wyraź zgodę dodatkową i zaznacz odpowiednie pole. Wyrażam zgodę na przetwarzanie moich danych osobowych przez administratora, którym jest Pracownia Projektowa ARCHIPELAG A. Wójciak, R. Wójciak Sp. J. z siedzibą: ul. M. Smoluchowskiego 56/3, 50-372 Wrocław, nr KRS 0000123673, NIP: 897-16-05-744, REGON: 931987209:
Na podstawie art. 13 Rozporządzenia Parlamentu Europejskiego i Rady (UE) 2016/679 z dnia 27 kwietnia 2016 r. w sprawie ochrony osób fizycznych w związku z przetwarzaniem danych osobowych i w sprawie swobodnego przepływu takich danych oraz uchylenia dyrektywy 95/46/WE (RODO) informujemy Cię, że (przeczytaj klauzulę informacyjną):
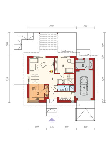
czytaj całość ›Parter
- 1. Wiatrołap + garderoba 8.20 m²
- 2. Hol + schody 13.18 m²
- 3. Kuchnia 10.99 m²
- 4. Spiżarnia 1.88 m²
- 5. Pokój dzienny + jadalnia 27.93 m²
- 6. Gabinet 13.11 m²
- 7. Łazienka 4.19 m²
- 8. Kotłownia 7.04 m²
- 9. Garaż 21.11 m²
Zużycie energii
Wskaźnik EP dla domu z wentylacją grawitacyjną (szczegółowe dane w charakterystyce energetycznej)
Pobierz charakterystykę energetyczną:
Wskaźnik EP określa roczne zapotrzebowanie domu na nieodnawialną energię pierwotną do ogrzewania, wentylacji oraz przygotowania ciepłej wody użytkowej.
Szacunkowy koszt budowy
| STANDARDOWE (uśrednione) [zł] |
||
|---|---|---|
| Stan surowy otwarty: | 294 580 (1) | |
| Stan surowy zamknięty: | 362 560 (1) | |
| Stan deweloperski: | 600 490 (1) | |
| Instalacje wewnętrzne: | 60 049 (1) | |
|
(1) Wyliczone według współczynników (2) Wyliczone według kosztorysu |
||
Opinia eksperta
Forum
Dzienniki budowy
Archipelag dla Ciebie
Polecane technologie
Wypełnij formularz, skontaktujemy się z Tobą.
Zamawiając usługi forum i dzienników budowy, przyjmujesz do wiadomości i wyrażasz zgodę na świadczenie tych usług i przetwarzanie przez Usługodawcę, którym jest Pracownia Projektowa ARCHIPELAG A. Wójciak, R. Wójciak Sp. J., jako Administratora danych, podanych w formularzu danych osobowych, na zasadach wskazanych w Regulaminie i Polityce Prywatności serwisu ARCHIPELAG.pl.
Jeśli chcesz także otrzymywać bonusy i informacje dotyczące akcji promocyjnych naszych i naszych Partnerów, wyraź zgodę dodatkową i zaznacz odpowiednie pole. Wyrażam zgodę na przetwarzanie moich danych osobowych przez administratora, którym jest Pracownia Projektowa ARCHIPELAG A. Wójciak, R. Wójciak Sp. J. z siedzibą: ul. M. Smoluchowskiego 56/3, 50-372 Wrocław, nr KRS 0000123673, NIP: 897-16-05-744, REGON: 931987209:
Na podstawie art. 13 Rozporządzenia Parlamentu Europejskiego i Rady (UE) 2016/679 z dnia 27 kwietnia 2016 r. w sprawie ochrony osób fizycznych w związku z przetwarzaniem danych osobowych i w sprawie swobodnego przepływu takich danych oraz uchylenia dyrektywy 95/46/WE (RODO) informujemy Cię, że (przeczytaj klauzulę informacyjną):
czytaj całość ›







Projekt Mini 8 w. II G1 jest doskonałym przykładem połączenia funkcjonalności z nowoczesnością. Zastosowana na dachu dachówka ceramiczna BERGAMO to świetne rozwiązanie dla inwestorów, którzy poszukują produktu trwałego, ekologicznego oraz wyróżniającego się wysokimi parametrami technicznymi. Dachówka ceramiczna BERGAMO marki Rӧben to jeden z częściej wybieranych produktów. Dachówkę tę wyróżnia płaska powierzchnia, a jej prosta forma sprawia, że doskonale wpisuje się w nowoczesne i minimalistyczne projekty. To rozwiązanie przede wszystkim do dachów dwuspadowych i kopertowych o niewielkim stopniu skomplikowania.
czytaj więcej