Ulubione projekty
Twoja lista jest pusta
Dodano projekt
Usunięto projekt
- Powierzchnia użytkowa 75.52 m²
- Dodatkowo:
- kotłownia 5.41 m²
- Powierzchnia zabudowy 69.33 m²
- Pow. netto 101.46 m²
- Kubatura 233.95 m³
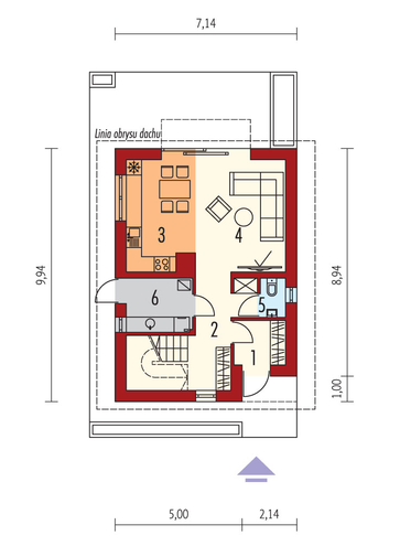
- Wymiary budynku 7.14 × 9.94 m
- Wysokość budynku 7.60 m
- Kąt nachylenia dachu 45o
- Powierzchnia dachu 120 m²
- Minimalne wymiary działki 15.45 x 17.94 m
Cena projektu
3 760 pln
4 700 pln
- Mini 15 - materiały z projektu technicznego (631 KB)
- Mini 15 - charakterystyka energetyczna (wersja domu z wentylacją grawitacyjną)Budynek spełnia wymagania WT2021 (521 KB)
- Mini 15 - charakterystyka energetyczna (wersja domu z wentylacją mechaniczną)Budynek spełnia wymagania WT2021 (517 KB)
Zadaj pytanie do projektu Mini 15
Jesteś zainteresowany/a tym projektem? Architekt dyżurny przygotuje dla Ciebie materiały z projektu technicznego. Zostaw nam swoje dane, powiadomimy Cię, gdy pliki będą dostępne.
Zamawiając usługi forum i dzienników budowy, przyjmujesz do wiadomości i wyrażasz zgodę na świadczenie tych usług i przetwarzanie przez Usługodawcę, którym jest Pracownia Projektowa ARCHIPELAG A. Wójciak, R. Wójciak Sp. J., jako Administratora danych, podanych w formularzu danych osobowych, na zasadach wskazanych w Regulaminie i Polityce Prywatności serwisu ARCHIPELAG.pl.
Jeśli chcesz także otrzymywać bonusy i informacje dotyczące akcji promocyjnych naszych i naszych Partnerów, wyraź zgodę dodatkową i zaznacz odpowiednie pole. Wyrażam zgodę na przetwarzanie moich danych osobowych przez administratora, którym jest Pracownia Projektowa ARCHIPELAG A. Wójciak, R. Wójciak Sp. J. z siedzibą: ul. M. Smoluchowskiego 56/3, 50-372 Wrocław, nr KRS 0000123673, NIP: 897-16-05-744, REGON: 931987209:
Na podstawie art. 13 Rozporządzenia Parlamentu Europejskiego i Rady (UE) 2016/679 z dnia 27 kwietnia 2016 r. w sprawie ochrony osób fizycznych w związku z przetwarzaniem danych osobowych i w sprawie swobodnego przepływu takich danych oraz uchylenia dyrektywy 95/46/WE (RODO) informujemy Cię, że (przeczytaj klauzulę informacyjną):
czytaj całość ›Parter
- 1. Wiatrołap 3.46 m²
- 2. Hol + schody 13.70 m²
- 3. Kuchnia 7.83 m²
- 4. Pokój dzienny 18.75 m²
- 5. Toaleta 1.47 m²
- 6. Kotłownia 5.41 m²
Zużycie energii
Wskaźnik EP dla domu z wentylacją grawitacyjną (szczegółowe dane w charakterystyce energetycznej)
Pobierz charakterystykę energetyczną:
Wskaźnik EP określa roczne zapotrzebowanie domu na nieodnawialną energię pierwotną do ogrzewania, wentylacji oraz przygotowania ciepłej wody użytkowej.
Szacunkowy koszt budowy
| STANDARDOWE (uśrednione) [zł] |
||
|---|---|---|
| Stan surowy otwarty: | 131 898 (1) | |
| Stan surowy zamknięty: | 162 336 (1) | |
| Stan deweloperski: | 268 869 (1) | |
| Instalacje wewnętrzne: | 26 886 (1) | |
|
(1) Wyliczone według współczynników (2) Wyliczone według kosztorysu |
||
Opinia eksperta
Forum
Dzienniki budowy
Archipelag dla Ciebie
Polecane technologie
Wypełnij formularz, skontaktujemy się z Tobą.
Zamawiając usługi forum i dzienników budowy, przyjmujesz do wiadomości i wyrażasz zgodę na świadczenie tych usług i przetwarzanie przez Usługodawcę, którym jest Pracownia Projektowa ARCHIPELAG A. Wójciak, R. Wójciak Sp. J., jako Administratora danych, podanych w formularzu danych osobowych, na zasadach wskazanych w Regulaminie i Polityce Prywatności serwisu ARCHIPELAG.pl.
Jeśli chcesz także otrzymywać bonusy i informacje dotyczące akcji promocyjnych naszych i naszych Partnerów, wyraź zgodę dodatkową i zaznacz odpowiednie pole. Wyrażam zgodę na przetwarzanie moich danych osobowych przez administratora, którym jest Pracownia Projektowa ARCHIPELAG A. Wójciak, R. Wójciak Sp. J. z siedzibą: ul. M. Smoluchowskiego 56/3, 50-372 Wrocław, nr KRS 0000123673, NIP: 897-16-05-744, REGON: 931987209:
Na podstawie art. 13 Rozporządzenia Parlamentu Europejskiego i Rady (UE) 2016/679 z dnia 27 kwietnia 2016 r. w sprawie ochrony osób fizycznych w związku z przetwarzaniem danych osobowych i w sprawie swobodnego przepływu takich danych oraz uchylenia dyrektywy 95/46/WE (RODO) informujemy Cię, że (przeczytaj klauzulę informacyjną):
czytaj całość ›






Projekt Mini 15, to niewielki, nowoczesny dom z poddaszem użytkowym. W projekcie uwzględniono zarówno funkcjonalność, ale również bardzo istotną ergonomię. Na dachu zastosowano dachówkę ceramiczną BERGAMO antracytową angobowaną. Dachówki ceramiczne są wyjątkowo trwałe, odporne na działanie niekorzystnych czynników atmosferycznych, bezpieczne dla zdrowia i środowiska, a co najważniejsze energooszczędne. Jako materiał długowieczny wygrywają z pokryciami lekkimi, które nie są tak odporne na eksploatację, wymagają stałej konserwacji i w efekcie kolejnych nakładów finansowych. W przypadku jakichkolwiek wątpliwości, związanych z doborem odpowiedniego pokrycia dachowego, zachęcamy do kontaktu z naszymi reprezentantami handlowymi, którzy je wyjaśnią. Kontakty znajdą Państwo tutaj: https://roben.pl/kontakt/reprezentanci-handlowi
czytaj więcej