Ulubione projekty
Twoja lista jest pusta
Dodano projekt
Usunięto projekt
- Powierzchnia użytkowa 137.94 m²
- Dodatkowo:
- pom. techniczne 6.82 m²
- Powierzchnia zabudowy 117.39 m²
- Pow. netto 175.36 m²
- Kubatura 444.08 m³
- Wymiary budynku 10.54 × 11.74 m
- Wysokość budynku 8.74 m
- Kąt nachylenia dachu 40o
- Powierzchnia dachu 132 m²
- Minimalne wymiary działki 18.54 x 21.24 m
Cena projektu
6 240 pln
7 800 pln
- Mini 13 PLUS (wersja A) - charakterystyka energetyczna (wersja domu z wentylacją mechaniczną)Budynek spełnia wymagania WT2021 (517 KB)
- Mini 13 PLUS (wersja A) - materiały z projektu technicznego (1017 KB)
- Mini 13 PLUS (wersja A) - materiały z projektu technicznego (odbicie lustrzane) (1012 KB)
- SOLBET - polecane materiały (1137 KB)
Zadaj pytanie do projektu Mini 13 PLUS (wersja A)
Jesteś zainteresowany/a tym projektem? Architekt dyżurny przygotuje dla Ciebie materiały z projektu technicznego. Zostaw nam swoje dane, powiadomimy Cię, gdy pliki będą dostępne.
Zamawiając usługi forum i dzienników budowy, przyjmujesz do wiadomości i wyrażasz zgodę na świadczenie tych usług i przetwarzanie przez Usługodawcę, którym jest Pracownia Projektowa ARCHIPELAG A. Wójciak, R. Wójciak Sp. J., jako Administratora danych, podanych w formularzu danych osobowych, na zasadach wskazanych w Regulaminie i Polityce Prywatności serwisu ARCHIPELAG.pl.
Jeśli chcesz także otrzymywać bonusy i informacje dotyczące akcji promocyjnych naszych i naszych Partnerów, wyraź zgodę dodatkową i zaznacz odpowiednie pole. Wyrażam zgodę na przetwarzanie moich danych osobowych przez administratora, którym jest Pracownia Projektowa ARCHIPELAG A. Wójciak, R. Wójciak Sp. J. z siedzibą: ul. M. Smoluchowskiego 56/3, 50-372 Wrocław, nr KRS 0000123673, NIP: 897-16-05-744, REGON: 931987209:
Na podstawie art. 13 Rozporządzenia Parlamentu Europejskiego i Rady (UE) 2016/679 z dnia 27 kwietnia 2016 r. w sprawie ochrony osób fizycznych w związku z przetwarzaniem danych osobowych i w sprawie swobodnego przepływu takich danych oraz uchylenia dyrektywy 95/46/WE (RODO) informujemy Cię, że (przeczytaj klauzulę informacyjną):
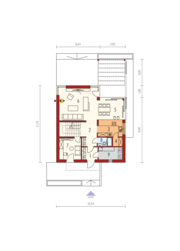
czytaj całość ›Parter
- 1. Wiatrołap 4.53 m²
- 2. Hol + schody 15.89 m²
- 3. Kuchnia 9.25 m²
- 4. Spiżarnia 1.94 m²
- 5. Pokój dzienny 28.46 m²
- 6. Jadalnia 12.04 m²
- 7. Gabinet 10.67 m²
- 8. Łazienka 2.89 m²
- 9. Pom. techniczne 6.82 m²
Zużycie energii - domy z kolekcji ENERGO PLUS
Wskaźnik EP dla domu z wentylacją mechaniczną, pompą ciepła oraz kolektorami słonecznymi (szczegółowe dane w charakterystyce energetycznej)
Pobierz charakterystykę energetyczną:
Wskaźnik EP określa roczne zapotrzebowanie domu na nieodnawialną energię pierwotną do ogrzewania, wentylacji oraz przygotowania ciepłej wody użytkowej.
Szacunkowy koszt budowy
| STANDARDOWE (uśrednione) [zł] |
||
|---|---|---|
| Stan surowy otwarty: | 227 968 (1) | |
| Stan surowy zamknięty: | 280 576 (1) | |
| Stan deweloperski: | 464 704 (1) | |
|
(1) Wyliczone według współczynników (2) Wyliczone według kosztorysu |
||
Opinia eksperta
Forum
Dzienniki budowy
Archipelag dla Ciebie
Polecane technologie
Wypełnij formularz, skontaktujemy się z Tobą.
Zamawiając usługi forum i dzienników budowy, przyjmujesz do wiadomości i wyrażasz zgodę na świadczenie tych usług i przetwarzanie przez Usługodawcę, którym jest Pracownia Projektowa ARCHIPELAG A. Wójciak, R. Wójciak Sp. J., jako Administratora danych, podanych w formularzu danych osobowych, na zasadach wskazanych w Regulaminie i Polityce Prywatności serwisu ARCHIPELAG.pl.
Jeśli chcesz także otrzymywać bonusy i informacje dotyczące akcji promocyjnych naszych i naszych Partnerów, wyraź zgodę dodatkową i zaznacz odpowiednie pole. Wyrażam zgodę na przetwarzanie moich danych osobowych przez administratora, którym jest Pracownia Projektowa ARCHIPELAG A. Wójciak, R. Wójciak Sp. J. z siedzibą: ul. M. Smoluchowskiego 56/3, 50-372 Wrocław, nr KRS 0000123673, NIP: 897-16-05-744, REGON: 931987209:
Na podstawie art. 13 Rozporządzenia Parlamentu Europejskiego i Rady (UE) 2016/679 z dnia 27 kwietnia 2016 r. w sprawie ochrony osób fizycznych w związku z przetwarzaniem danych osobowych i w sprawie swobodnego przepływu takich danych oraz uchylenia dyrektywy 95/46/WE (RODO) informujemy Cię, że (przeczytaj klauzulę informacyjną):
czytaj całość ›






Mini 13 PLUS (wersja A) to kompaktowy budynek o tradycyjnej i zwartej formie, która decyduje o jego dużej energooszczędności. Ściany zewnętrzne, których wpływ na ekonomię energetyczną budynku jest istotny zaprojektowano z bloczków z betonu komórkowego, który jest bardzo dobrym izolatorem. Ściany wewnętrzne nośne i działowe zaprojektowano również z betonu komórkowego dzięki czemu łatwo dopasować ich kształt do kąta nachylenia połaci dachowych. Ściany działowe z betonu komórkowego 12 cm zapewnią wymaganą izolacyjność akustyczną dla ścian w obrębie jednego mieszkania. Do przesklepienia otworów w ścianach nośnych i działowych o szerokości do 180 cm najlepiej zastosować nadproża ze zbrojonego betonu komórkowego. Nadproża w miejscach zamontowanych okien narożnych należy wykonać jako żelbetowe wylewane na budowie. Projekt Mini w różnych jego wersjach, to optymalna przestrzeń do mieszkania. Wiele elementów budynku można wykonać w systemie SOLBET stosując: bloczki, nadproża zbrojone z betonu komórkowego, zaprawę do cienkich spoin 0.1, system ocieplenia SOLBET Termo, tynki wewnętrzne i zewnętrzne oraz inne materiały.
czytaj więcej