Ulubione projekty
Twoja lista jest pusta
Dodano projekt
Usunięto projekt
- Powierzchnia użytkowa 142.81 m²
- Dodatkowo:
- kotłownia 5.90 m²
- garaż 19.54 m²
- Powierzchnia zabudowy 143.75 m²
- Pow. netto 213.44 m²
- Kubatura 343.84 m³
- Wymiary budynku 13.60 × 11.60 m
- Wysokość budynku 8.25 m
- Kąt nachylenia dachu 45o
- Powierzchnia dachu 107 m²
- Minimalne wymiary działki 20.60 x 19.60 m
Cena projektu
4 080 pln
5 100 pln
- Katalogowa karta projektu (698 KB)
- Markus G1 - charakterystyka energetyczna (wersja domu z wentylacją grawitacyjną)Budynek spełnia wymagania WT2017 (539 KB)
- Markus G1 - charakterystyka energetyczna (wersja domu z wentylacją mechaniczną)Budynek spełnia wymagania WT2021 (538 KB)
- Markus G1 - materiały z projektu technicznego (1016 KB)
- ISOVER - IZOLACJA poddasza użytkowego i stropu poddasza nieużytkowego (1181 KB)
- Deimic - system inteligentnego domu (564 KB)
Zadaj pytanie do projektu Markus G1
Jesteś zainteresowany/a tym projektem? Architekt dyżurny przygotuje dla Ciebie materiały z projektu technicznego. Zostaw nam swoje dane, powiadomimy Cię, gdy pliki będą dostępne.
Zamawiając usługi forum i dzienników budowy, przyjmujesz do wiadomości i wyrażasz zgodę na świadczenie tych usług i przetwarzanie przez Usługodawcę, którym jest Pracownia Projektowa ARCHIPELAG A. Wójciak, R. Wójciak Sp. J., jako Administratora danych, podanych w formularzu danych osobowych, na zasadach wskazanych w Regulaminie i Polityce Prywatności serwisu ARCHIPELAG.pl.
Jeśli chcesz także otrzymywać bonusy i informacje dotyczące akcji promocyjnych naszych i naszych Partnerów, wyraź zgodę dodatkową i zaznacz odpowiednie pole. Wyrażam zgodę na przetwarzanie moich danych osobowych przez administratora, którym jest Pracownia Projektowa ARCHIPELAG A. Wójciak, R. Wójciak Sp. J. z siedzibą: ul. M. Smoluchowskiego 56/3, 50-372 Wrocław, nr KRS 0000123673, NIP: 897-16-05-744, REGON: 931987209:
Na podstawie art. 13 Rozporządzenia Parlamentu Europejskiego i Rady (UE) 2016/679 z dnia 27 kwietnia 2016 r. w sprawie ochrony osób fizycznych w związku z przetwarzaniem danych osobowych i w sprawie swobodnego przepływu takich danych oraz uchylenia dyrektywy 95/46/WE (RODO) informujemy Cię, że (przeczytaj klauzulę informacyjną):
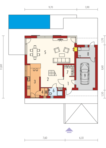
czytaj całość ›Parter
- 1. Wiatrołap 3.94 m²
- 2. Hol z klatką schodową 17.48 m²
- 3. Kuchnia 13.72 m²
- 4. Spiżarnia 1.85 m²
- 5. Pokój dzienny + jadalnia 43.65 m²
- 6. Łazienka 3.27 m²
- 7. Garderoba 3.98 m²
- 8. Kotłownia 5.90 m²
- 9. Garaż 19.54 m²
Zużycie energii
Wskaźnik EP dla domu z wentylacją grawitacyjną (szczegółowe dane w charakterystyce energetycznej)
Pobierz charakterystykę energetyczną:
Wskaźnik EP określa roczne zapotrzebowanie domu na nieodnawialną energię pierwotną do ogrzewania, wentylacji oraz przygotowania ciepłej wody użytkowej.
Szacunkowy koszt budowy
| STANDARDOWE (uśrednione) [zł] |
||
|---|---|---|
| Stan surowy otwarty: | 277 472 (1) | |
| Stan surowy zamknięty: | 341 504 (1) | |
| Stan deweloperski: | 565 616 (1) | |
| Instalacje wewnętrzne: | 56 561 (1) | |
|
(1) Wyliczone według współczynników (2) Wyliczone według kosztorysu |
||
Opinia eksperta
Forum
Dzienniki budowy
Archipelag dla Ciebie
Polecane technologie
Wypełnij formularz, skontaktujemy się z Tobą.
Zamawiając usługi forum i dzienników budowy, przyjmujesz do wiadomości i wyrażasz zgodę na świadczenie tych usług i przetwarzanie przez Usługodawcę, którym jest Pracownia Projektowa ARCHIPELAG A. Wójciak, R. Wójciak Sp. J., jako Administratora danych, podanych w formularzu danych osobowych, na zasadach wskazanych w Regulaminie i Polityce Prywatności serwisu ARCHIPELAG.pl.
Jeśli chcesz także otrzymywać bonusy i informacje dotyczące akcji promocyjnych naszych i naszych Partnerów, wyraź zgodę dodatkową i zaznacz odpowiednie pole. Wyrażam zgodę na przetwarzanie moich danych osobowych przez administratora, którym jest Pracownia Projektowa ARCHIPELAG A. Wójciak, R. Wójciak Sp. J. z siedzibą: ul. M. Smoluchowskiego 56/3, 50-372 Wrocław, nr KRS 0000123673, NIP: 897-16-05-744, REGON: 931987209:
Na podstawie art. 13 Rozporządzenia Parlamentu Europejskiego i Rady (UE) 2016/679 z dnia 27 kwietnia 2016 r. w sprawie ochrony osób fizycznych w związku z przetwarzaniem danych osobowych i w sprawie swobodnego przepływu takich danych oraz uchylenia dyrektywy 95/46/WE (RODO) informujemy Cię, że (przeczytaj klauzulę informacyjną):
czytaj całość ›




Dach skośny stanowi niezwykle istotny element budynku jeśli chodzi o jego zapotrzebowanie na energię do ogrzewania czy chłodzenia. Latem bardzo się nagrzewa, zaś zimą przez swoją sporą powierzchnię będzie tracił ciepło. Dlatego też trzeba zadbać, aby bez względu na porę roku zapewniał nam komfort cieplny. Najlepszym sposobem na to jest zastosowanie dwóch warstw (jedna pomiędzy krokwie, druga pod krokwiami) wełny szklanej ISOVER Super-Mata. Ma ona optymalny stosunek izolacyjności do ceny. Bardzo niski współczynnik przewodzenia ciepła (lambda) 0,033 W/mK powoduje, że stosując ją oszczędzamy na grubości w porównaniu z izolacjami o gorszych parametrach. W razie jakichkolwiek wątpliwości związanych z doborem rozwiązań z zakresu izolacji termicznej, polecam skorzystać z bezpłatnych konsultacji z inżynierami Biura Doradztwa Technicznego ISOVER. Bezpłatna infolinia o numerze 800 163 121 czynna jest od poniedziałku do piątku w godzinach 8.00-17.00, e-mail: konsultanci.isover@saint-gobain.com.
czytaj więcej