Ulubione projekty
Twoja lista jest pusta
Dodano projekt
Usunięto projekt
- Powierzchnia użytkowa 216.58 m²
- Dodatkowo:
- kotłownia 7.29 m²
- garaż 41.10 m²
- Powierzchnia zabudowy 196.33 m²
- Pow. netto 319.10 m²
- Kubatura 820.75 m³
- Wymiary budynku 18.80 × 15.30 m
- Wysokość budynku 8.75 m
- Kąt nachylenia dachu 22o
- Powierzchnia dachu 228 m²
- Minimalne wymiary działki 25.80 x 23.40 m
Cena projektu
6 160 pln
7 700 pln
- Katalogowa karta projektu (738 KB)
- Lorenzo G2 - materiały z projektu technicznegoBudynek spełnia wymagania WT2021 (1446 KB)
- Lorenzo G2 - charakterystyka energetyczna (wersja domu z wentylacją grawitacyjną)Budynek spełnia wymagania WT2021 (520 KB)
- Lorenzo G2 - charakterystyka energetyczna (wersja domu z wentylacją mechaniczną)Budynek spełnia wymagania WT20121 (522 KB)
- Lorenzo G2 - projekt prefabrykowanej więźby dachowejProjekt prefabrykowanej więźby dachowej (2901 KB)
Zadaj pytanie do projektu Lorenzo G2
Jesteś zainteresowany/a tym projektem? Architekt dyżurny przygotuje dla Ciebie materiały z projektu technicznego. Zostaw nam swoje dane, powiadomimy Cię, gdy pliki będą dostępne.
Zamawiając usługi forum i dzienników budowy, przyjmujesz do wiadomości i wyrażasz zgodę na świadczenie tych usług i przetwarzanie przez Usługodawcę, którym jest Pracownia Projektowa ARCHIPELAG A. Wójciak, R. Wójciak Sp. J., jako Administratora danych, podanych w formularzu danych osobowych, na zasadach wskazanych w Regulaminie i Polityce Prywatności serwisu ARCHIPELAG.pl.
Jeśli chcesz także otrzymywać bonusy i informacje dotyczące akcji promocyjnych naszych i naszych Partnerów, wyraź zgodę dodatkową i zaznacz odpowiednie pole. Wyrażam zgodę na przetwarzanie moich danych osobowych przez administratora, którym jest Pracownia Projektowa ARCHIPELAG A. Wójciak, R. Wójciak Sp. J. z siedzibą: ul. M. Smoluchowskiego 56/3, 50-372 Wrocław, nr KRS 0000123673, NIP: 897-16-05-744, REGON: 931987209:
Na podstawie art. 13 Rozporządzenia Parlamentu Europejskiego i Rady (UE) 2016/679 z dnia 27 kwietnia 2016 r. w sprawie ochrony osób fizycznych w związku z przetwarzaniem danych osobowych i w sprawie swobodnego przepływu takich danych oraz uchylenia dyrektywy 95/46/WE (RODO) informujemy Cię, że (przeczytaj klauzulę informacyjną):
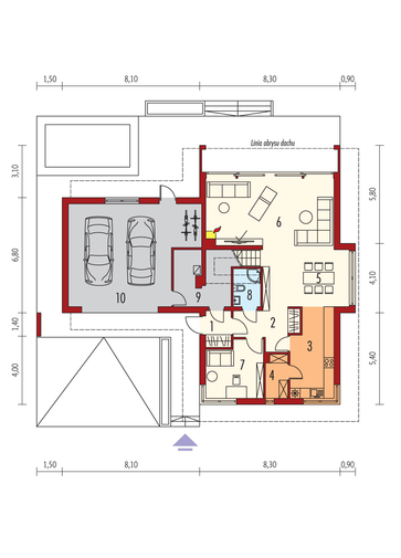
czytaj całość ›Parter
- 1. Wiatrołap 3.15 m²
- 2. Hol 18.28 m²
- 3. Kuchnia 12.66 m²
- 4. Spiżarnia 3.21 m²
- 5. Jadalnia 12.74 m²
- 6. Pokój dzienny 29.48 m²
- 7. Gabinet 10.70 m²
- 8. Łazienka 2.97 m²
- 9. Kotłownia 7.29 m²
- 10. Garaż 41.10 m²
Zużycie energii
Wskaźnik EP dla domu z wentylacją grawitacyjną (szczegółowe dane w charakterystyce energetycznej)
Pobierz charakterystykę energetyczną:
Wskaźnik EP określa roczne zapotrzebowanie domu na nieodnawialną energię pierwotną do ogrzewania, wentylacji oraz przygotowania ciepłej wody użytkowej.
Szacunkowy koszt budowy
| STANDARDOWE (uśrednione) [zł] |
||
|---|---|---|
| Stan surowy otwarty: | 414 830 (1) | |
| Stan surowy zamknięty: | 510 560 (1) | |
| Stan deweloperski: | 845 615 (1) | |
| Instalacje wewnętrzne: | 84 561 (1) | |
|
(1) Wyliczone według współczynników (2) Wyliczone według kosztorysu |
||
Opinia eksperta
Forum
Dzienniki budowy
Archipelag dla Ciebie
Polecane technologie
Wypełnij formularz, skontaktujemy się z Tobą.
Zamawiając usługi forum i dzienników budowy, przyjmujesz do wiadomości i wyrażasz zgodę na świadczenie tych usług i przetwarzanie przez Usługodawcę, którym jest Pracownia Projektowa ARCHIPELAG A. Wójciak, R. Wójciak Sp. J., jako Administratora danych, podanych w formularzu danych osobowych, na zasadach wskazanych w Regulaminie i Polityce Prywatności serwisu ARCHIPELAG.pl.
Jeśli chcesz także otrzymywać bonusy i informacje dotyczące akcji promocyjnych naszych i naszych Partnerów, wyraź zgodę dodatkową i zaznacz odpowiednie pole. Wyrażam zgodę na przetwarzanie moich danych osobowych przez administratora, którym jest Pracownia Projektowa ARCHIPELAG A. Wójciak, R. Wójciak Sp. J. z siedzibą: ul. M. Smoluchowskiego 56/3, 50-372 Wrocław, nr KRS 0000123673, NIP: 897-16-05-744, REGON: 931987209:
Na podstawie art. 13 Rozporządzenia Parlamentu Europejskiego i Rady (UE) 2016/679 z dnia 27 kwietnia 2016 r. w sprawie ochrony osób fizycznych w związku z przetwarzaniem danych osobowych i w sprawie swobodnego przepływu takich danych oraz uchylenia dyrektywy 95/46/WE (RODO) informujemy Cię, że (przeczytaj klauzulę informacyjną):
czytaj całość ›



Dom Lorenzo G2 jest nowoczesny w odbiorze, ale uzupełniony elementami klasycznymi. Uwagę zwraca bardzo ciekawie rozwiązana elewacja z cegłami klinkierowymi w dwóch kolorach – Sydney antracytowa cieniowana i Sorrento piaskowobiała. Cegła o ciepłym, słonecznym odcieniu, ukształtowanie bryły oraz dach o niskim kącie nachylenia przywodzi na myśl styl śródziemnomorski. Zlokalizowanie garażu w głównym skrzydle domu i przykrycie „jednolitym” dachem sprawia, że całość robi spójne, harmonijne wrażenie. W efekcie dach jest jednak stosunkowo skomplikowany, doskonale sprawdzi się tu więc nie za duża, przesuwna dachówka Piemont, w projekcie wykorzystana w kolorze antracytowym. Dzięki niej unikniemy większych strat materiałowych w załamaniach połaci. Należy też zadbać o fachowe wykonawstwo.
czytaj więcej