Ulubione projekty
Twoja lista jest pusta
Dodano projekt
Usunięto projekt
- Powierzchnia użytkowa 139.83 m²
- Dodatkowo:
- kotłownia 8.18 m²
- garaż 20.51 m²
- Powierzchnia zabudowy 135.25 m²
- Pow. netto 211.44 m²
- Kubatura 512.34 m³
- Wymiary budynku 15.94 × 9.49 m
- Wysokość budynku 8.53 m
- Kąt nachylenia dachu 40o
- Powierzchnia dachu 178 m²
- Minimalne wymiary działki 22.94 x 17.49 m
Cena projektu
4 160 pln
5 200 pln
- Katalogowa karta projektu (742 KB)
- Logan G1 - charakterystyka energetyczna (wersja domu z wentylacją grawitacyjną)Budynek spełnia wymagania WT2021 (534 KB)
- Logan G1 - charakterystyka energetyczna (wersja domu z wentylacją mechaniczną)Budynek spełnia wymagania WT2021 (533 KB)
- Logan G1 - materiały z projektu technicznego (980 KB)
- Logan G1 - materiały z projektu technicznego (odbicie lustrzane) (980 KB)
- ProDeck - system tarasowy TERRA (2189 KB)
- Logan G1 - zestawienie materiałów do ocieplenia w kompletnym systemie TERMO ORGANIKA (214 KB)
Zadaj pytanie do projektu Logan G1
Jesteś zainteresowany/a tym projektem? Architekt dyżurny przygotuje dla Ciebie materiały z projektu technicznego. Zostaw nam swoje dane, powiadomimy Cię, gdy pliki będą dostępne.
Zamawiając usługi forum i dzienników budowy, przyjmujesz do wiadomości i wyrażasz zgodę na świadczenie tych usług i przetwarzanie przez Usługodawcę, którym jest Pracownia Projektowa ARCHIPELAG A. Wójciak, R. Wójciak Sp. J., jako Administratora danych, podanych w formularzu danych osobowych, na zasadach wskazanych w Regulaminie i Polityce Prywatności serwisu ARCHIPELAG.pl.
Jeśli chcesz także otrzymywać bonusy i informacje dotyczące akcji promocyjnych naszych i naszych Partnerów, wyraź zgodę dodatkową i zaznacz odpowiednie pole. Wyrażam zgodę na przetwarzanie moich danych osobowych przez administratora, którym jest Pracownia Projektowa ARCHIPELAG A. Wójciak, R. Wójciak Sp. J. z siedzibą: ul. M. Smoluchowskiego 56/3, 50-372 Wrocław, nr KRS 0000123673, NIP: 897-16-05-744, REGON: 931987209:
Na podstawie art. 13 Rozporządzenia Parlamentu Europejskiego i Rady (UE) 2016/679 z dnia 27 kwietnia 2016 r. w sprawie ochrony osób fizycznych w związku z przetwarzaniem danych osobowych i w sprawie swobodnego przepływu takich danych oraz uchylenia dyrektywy 95/46/WE (RODO) informujemy Cię, że (przeczytaj klauzulę informacyjną):
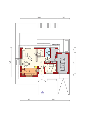
czytaj całość ›Parter
- 1. Wiatrołap 2.49 m²
- 2. Hol + schody 13.38 m²
- 3. Kuchnia 9.04 m²
- 4. Spiżarnia 2.04 m²
- 5. Pokój dzienny 30.11 m²
- 6. Gabinet 10.23 m²
- 7. Łazienka 4.31 m²
- 8. Garderoba 3.73 m²
- 9. Kotłownia 8.18 m²
- 10. Garaż 20.51 m²
Zużycie energii
Wskaźnik EP dla domu z wentylacją grawitacyjną (szczegółowe dane w charakterystyce energetycznej)
Pobierz charakterystykę energetyczną:
Wskaźnik EP określa roczne zapotrzebowanie domu na nieodnawialną energię pierwotną do ogrzewania, wentylacji oraz przygotowania ciepłej wody użytkowej.
Szacunkowy koszt budowy
| STANDARDOWE (uśrednione) [zł] |
||
|---|---|---|
| Stan surowy otwarty: | 274 872 (1) | |
| Stan surowy zamknięty: | 338 304 (1) | |
| Stan deweloperski: | 560 316 (1) | |
| Instalacje wewnętrzne: | 56 031 (1) | |
|
(1) Wyliczone według współczynników (2) Wyliczone według kosztorysu |
||
Opinia eksperta
Forum (1)
Ostatnie tematy:
- Myślisz o... [0] gość, 2016-12-01 10:28
Dzienniki budowy
Archipelag dla Ciebie
Polecane technologie
Wypełnij formularz, skontaktujemy się z Tobą.
Zamawiając usługi forum i dzienników budowy, przyjmujesz do wiadomości i wyrażasz zgodę na świadczenie tych usług i przetwarzanie przez Usługodawcę, którym jest Pracownia Projektowa ARCHIPELAG A. Wójciak, R. Wójciak Sp. J., jako Administratora danych, podanych w formularzu danych osobowych, na zasadach wskazanych w Regulaminie i Polityce Prywatności serwisu ARCHIPELAG.pl.
Jeśli chcesz także otrzymywać bonusy i informacje dotyczące akcji promocyjnych naszych i naszych Partnerów, wyraź zgodę dodatkową i zaznacz odpowiednie pole. Wyrażam zgodę na przetwarzanie moich danych osobowych przez administratora, którym jest Pracownia Projektowa ARCHIPELAG A. Wójciak, R. Wójciak Sp. J. z siedzibą: ul. M. Smoluchowskiego 56/3, 50-372 Wrocław, nr KRS 0000123673, NIP: 897-16-05-744, REGON: 931987209:
Na podstawie art. 13 Rozporządzenia Parlamentu Europejskiego i Rady (UE) 2016/679 z dnia 27 kwietnia 2016 r. w sprawie ochrony osób fizycznych w związku z przetwarzaniem danych osobowych i w sprawie swobodnego przepływu takich danych oraz uchylenia dyrektywy 95/46/WE (RODO) informujemy Cię, że (przeczytaj klauzulę informacyjną):
czytaj całość ›





Logan G1 to projekt prostego, przytulnego budynku parterowego z poddaszem użytkowym, dachem dwuspadowym i garażem jednostanowiskowym. Idealny dla rodzin, które oczekują ekonomicznych rozwiązań technologicznych i instalacyjnych oraz wyraźnego podziału na strefę dzienną i nocną. Na szczególną uwagę zasługuje liczba miejsc, które można wykorzystać jako strefy relaksu – m.in. przestrzeń nad garażem, a także salon, którego przedłużeniem jest taras wykonany z desek kompozytowych ProDeck. System tarasowy w kolorze złoty dąb nie tylko podkreśla charakter i wygląd domu, ale przede wszystkim zapewnia wieloletni komfort użytkowania, bez konieczności impregnacji oraz odświeżania.
czytaj więcej