Ulubione projekty
Twoja lista jest pusta
Dodano projekt
Usunięto projekt
- Powierzchnia użytkowa 105.68 m²
- Dodatkowo:
- kotłownia 7.47 m²
- Powierzchnia zabudowy 83.07 m²
- Pow. netto 129.60 m²
- Kubatura 317.79 m³
- Wymiary budynku 10.54 × 8.14 m
- Wysokość budynku 8.30 m
- Kąt nachylenia dachu 42o
- Powierzchnia dachu 142 m²
- Minimalne wymiary działki 18.54 x 16.14 m
Cena projektu
3 600 pln
4 500 pln
- Katalogowa karta projektu (641 KB)
- Lila ECONOMIC - charakterystyka energetyczna (wersja domu z wentylacją grawitacyjną)Budynek spełnia wymagania WT2021 (522 KB)
- Lila ECONOMIC - charakterystyka energetyczna (wersja domu z wentylacją mechaniczną)Budynek spełnia wymagania WT2021 (522 KB)
- Lila ECONOMIC - materiały z projektu technicznego (935 KB)
- Lila ECONOMIC - materiały z projektu technicznego (odbicie lustrzane) (931 KB)
- ProDeck - system tarasowy TERRA (2189 KB)
Zadaj pytanie do projektu Lila ECONOMIC
Jesteś zainteresowany/a tym projektem? Architekt dyżurny przygotuje dla Ciebie materiały z projektu technicznego. Zostaw nam swoje dane, powiadomimy Cię, gdy pliki będą dostępne.
Zamawiając usługi forum i dzienników budowy, przyjmujesz do wiadomości i wyrażasz zgodę na świadczenie tych usług i przetwarzanie przez Usługodawcę, którym jest Pracownia Projektowa ARCHIPELAG A. Wójciak, R. Wójciak Sp. J., jako Administratora danych, podanych w formularzu danych osobowych, na zasadach wskazanych w Regulaminie i Polityce Prywatności serwisu ARCHIPELAG.pl.
Jeśli chcesz także otrzymywać bonusy i informacje dotyczące akcji promocyjnych naszych i naszych Partnerów, wyraź zgodę dodatkową i zaznacz odpowiednie pole. Wyrażam zgodę na przetwarzanie moich danych osobowych przez administratora, którym jest Pracownia Projektowa ARCHIPELAG A. Wójciak, R. Wójciak Sp. J. z siedzibą: ul. M. Smoluchowskiego 56/3, 50-372 Wrocław, nr KRS 0000123673, NIP: 897-16-05-744, REGON: 931987209:
Na podstawie art. 13 Rozporządzenia Parlamentu Europejskiego i Rady (UE) 2016/679 z dnia 27 kwietnia 2016 r. w sprawie ochrony osób fizycznych w związku z przetwarzaniem danych osobowych i w sprawie swobodnego przepływu takich danych oraz uchylenia dyrektywy 95/46/WE (RODO) informujemy Cię, że (przeczytaj klauzulę informacyjną):
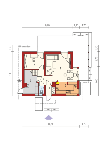
czytaj całość ›Parter
- 1. Wiatrołap 2.20 m²
- 2. Hol + schody 8.39 m²
- 3. Kuchnia 7.82 m²
- 4. Pokój dzienny + jadalnia 24.57 m²
- 5. Gabinet 10.02 m²
- 6. Łazienka 1.25 m²
- 7. Kotłownia 7.47 m²
Zużycie energii
Wskaźnik EP dla domu z wentylacją grawitacyjną (szczegółowe dane w charakterystyce energetycznej)
Pobierz charakterystykę energetyczną:
Wskaźnik EP określa roczne zapotrzebowanie domu na nieodnawialną energię pierwotną do ogrzewania, wentylacji oraz przygotowania ciepłej wody użytkowej.
Szacunkowy koszt budowy
| STANDARDOWE (uśrednione) [zł] |
||
|---|---|---|
| Stan surowy otwarty: | 168 480 (1) | |
| Stan surowy zamknięty: | 207 360 (1) | |
| Stan deweloperski: | 343 440 (1) | |
| Instalacje wewnętrzne: | 34 344 (1) | |
|
(1) Wyliczone według współczynników (2) Wyliczone według kosztorysu |
||
Opinia eksperta
Forum (1)
Ostatnie tematy:
- Budowa [0] gość, 2018-08-07 18:48
Dzienniki budowy
Archipelag dla Ciebie
Polecane technologie
Wypełnij formularz, skontaktujemy się z Tobą.
Zamawiając usługi forum i dzienników budowy, przyjmujesz do wiadomości i wyrażasz zgodę na świadczenie tych usług i przetwarzanie przez Usługodawcę, którym jest Pracownia Projektowa ARCHIPELAG A. Wójciak, R. Wójciak Sp. J., jako Administratora danych, podanych w formularzu danych osobowych, na zasadach wskazanych w Regulaminie i Polityce Prywatności serwisu ARCHIPELAG.pl.
Jeśli chcesz także otrzymywać bonusy i informacje dotyczące akcji promocyjnych naszych i naszych Partnerów, wyraź zgodę dodatkową i zaznacz odpowiednie pole. Wyrażam zgodę na przetwarzanie moich danych osobowych przez administratora, którym jest Pracownia Projektowa ARCHIPELAG A. Wójciak, R. Wójciak Sp. J. z siedzibą: ul. M. Smoluchowskiego 56/3, 50-372 Wrocław, nr KRS 0000123673, NIP: 897-16-05-744, REGON: 931987209:
Na podstawie art. 13 Rozporządzenia Parlamentu Europejskiego i Rady (UE) 2016/679 z dnia 27 kwietnia 2016 r. w sprawie ochrony osób fizycznych w związku z przetwarzaniem danych osobowych i w sprawie swobodnego przepływu takich danych oraz uchylenia dyrektywy 95/46/WE (RODO) informujemy Cię, że (przeczytaj klauzulę informacyjną):
czytaj całość ›





Lila ECONOMIC to niewielki dom jednorodzinny z poddaszem użytkowym. Na parterowej przestrzeni budynku wyodrębniono strefę dzienną i a na poddaszu nocną. Komfort cieplny oraz akustyczny zapewnią m.in. ściany zewnętrzne i wewnętrzne, oddzielające strefę mieszkalną od sypialnej, na które najlepiej zastosować bloczki SOLBET 24cm o klasie gęstości 500 lub 600. Mogą to być bloczki profilowane na pióra i wpusty, czyli do murowania z wypełnionymi zaprawą spoinami poziomymi i bez wypełnienia spoin pionowych. Drugą opcją są bloczki, które muruje się z wypełnieniem spoin poziomych i pionowych, czyli bloczki profilowane na wpust-wpust lub bez profilowania. Na ściany działowe dobrym rozwiązaniem będą bloczki 12cm. Do przekrycia otworów przydadzą się nadproża z betonu komórkowego SOLBET. Do murowania będzie potrzebna zaprawa do cienkich spoin SOLBET 0.1. Do wykończenia ścian można wybrać również: system ocieplenia Termo: klej do styropianu, klej do siatki zbrojącej, tynk zewnętrzny oraz tynk wewnętrzny, gładzie i środki gruntujące. Przytulny, komfortowy dom z materiałów SOLBET
czytaj więcej